Faisons un tour d'horizon
Référence de l’annonce : 3566GREANN
Au cœur du quartier recherché du Gros Caillou, rue Saint-Dominique, à proximité immédiate des jardins du Champ de Mars, découvrez ce studio intégralement rénové, calme et lumineux.
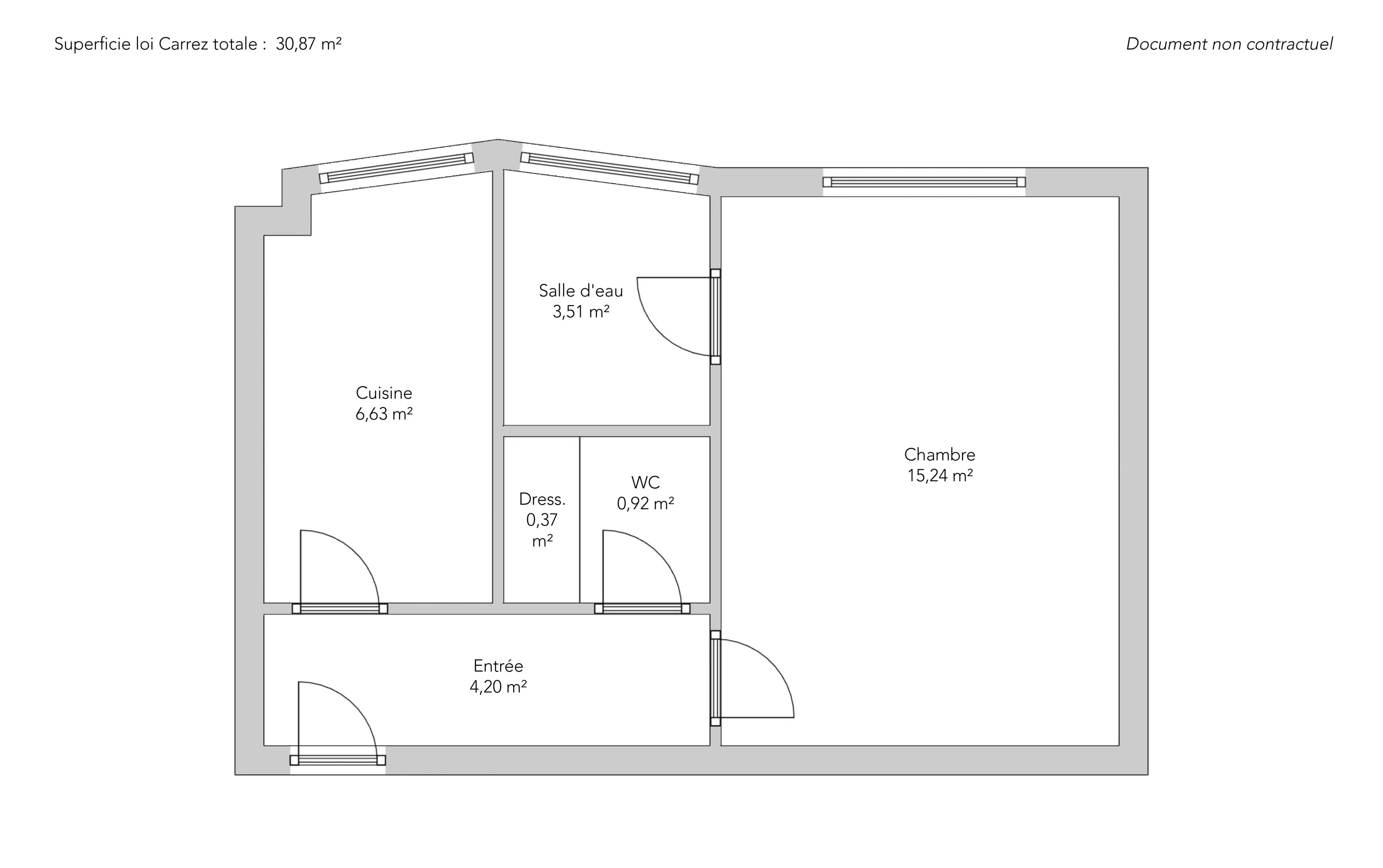
Situé au cinquième étage par ascenseur d’une élégante résidence Art déco édifiée en 1934 avec gardien, cet appartement offre une surface de 30,87m² loi Carrez.
Une agréable pièce de vie, une cuisine aménagée et équipée séparée, une jolie salle de douche et des toilettes séparées composent ce bien très clair grâce à ses ouvertures. Toutes les pièces profitent d’une vue agréable sur la verdure d’une large cour, au calme absolu.
Une cave complète cette offre.
- Habitable : 30,87 m²
- 1 pièce
- suite
- 1 salle de douche
- Étage 5/8
- Exposition Nord
- Bon état
Ce qui nous séduit
- Adresse très recherchée
- Gardien
- Lumineux
- Calme
- Ascenseur
- Cave
On vous en dit plus
Réglementations & éléments financiers
Les informations sur les risques auxquels ce bien est exposé sont disponibles sur le site Géorisques : www.georisques.gouv.fr
| Diagnostics |
|---|
Consommation énergie finale : a - 223 kWh/m²/an.
Montant estimé des dépenses annuelles d’énergie pour un usage standard : entre 740,00 € et 1 060,00 € /an (abonnement compris).
Prix moyen des énergies indexées au 01/01/2023.
| Éléments financiers |
|---|
Taxe foncière : 1 055,00 € /an
Détails de l’intérieur & de l’extérieur
| Pièce | Surface | Détail |
|---|---|---|
| 1x Cave | Étage : Sous-sol | |
| 1x Entrée | 4.2 m² | Étage : 5ème |
| 1x Cuisine | 6.63 m² | Étage : 5ème |
| 1x Toilettes | 0.92 m² | Étage : 5ème |
| 1x Placard | 0.37 m² | Étage : 5ème |
| 1x Séjour | 15.24 m² |
Étage : 5ème Exposition : Nord |
| 1x Salle de douche | 3.51 m² | Étage : 5ème |
Prestations
Bâtiment & Copropriété
| Bâtiment |
|---|
-
Construit en : 1934
-
Nombre d'étages : 8
-
Niveau de qualité : Normal
| Copropriété |
|---|
283 lots d'habitation
Montant moyen annuel de la quote part de charges courantes : 1 800 €
Procédure en cours : Non
Rencontrez votre agence
Simulateur de financement
Calculez le montant des mensualités de votre prêt immobilier correspondant à l'emprunt que vous souhaitez effectuer.
Prix du bien HAI
525 000 €
€
par mois
Vous devez vendre pour acheter ?
Nos consultants immobiliers se tiennent à votre disposition pour réaliser une estimation de la valeur de votre bien. Toutes nos estimations sont offertes.
Je fais estimer mon bienUn lieu de vie à votre image
Junot vous fait visiter les quartiers dans lesquels nos agences vous accueillent, et vous présente les spécificités et bonnes adresses.
Parcourir les quartiers











