Faisons un tour d'horizon
Référence de l’annonce : 3521GREANN
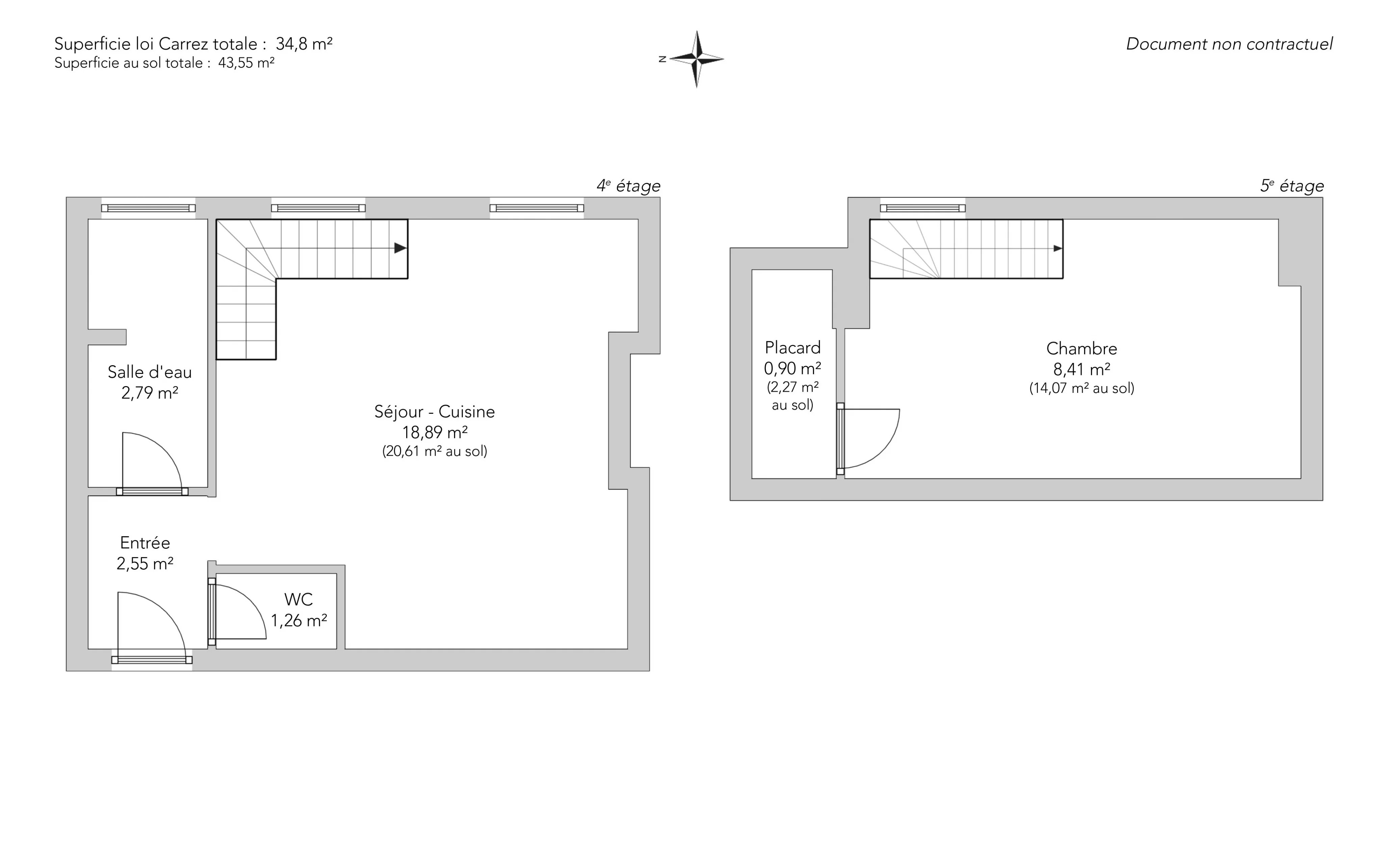
Situé dans la partie piétonne de la rue Cler, au quatrième et dernier étage par escalier d’un immeuble bien entretenu, cet appartement entièrement rénové de 34,80m² loi Carrez et 43,55m² au sol offre un agencement optimal avec un espace nuit en mezzanine.
On accède directement à un séjour lumineux qui bénéficie de deux grandes fenêtres et d'une cuisine ouverte, équipée et aménagée. Au calme absolu, ce bien donne sur une agréable cour bien aérée. Une salle de douche ainsi que des toilettes séparées complètent le premier niveau.
À l'étage, en mezzanine, une charmante chambre de 14,77m² au sol avec poutres apparentes et agrémentée de nombreux rangements.
Une cave complète cette offre.
- Habitable : 34,80 m² Total : 43,55 m²
- 2 pièces
- 1 chambre
- 1 salle de douche
- Exposition Est
- Excellent état
Ce qui nous séduit
- Adresse très recherchée
- Dernier étage
- Lumineux
- Calme
On vous en dit plus
Réglementations & éléments financiers
Les informations sur les risques auxquels ce bien est exposé sont disponibles sur le site Géorisques : www.georisques.gouv.fr
| Diagnostics |
|---|
Consommation énergie finale : a - 346 kWh/m²/an.
Logement à consommation énergétique excessive : classe F
Montant estimé des dépenses annuelles d’énergie pour un usage standard : entre 990,00 € et 1 380,00 € /an (abonnement compris).
Prix moyen des énergies indexées au 01/01/2023.
| Éléments financiers |
|---|
Détails de l’intérieur & de l’extérieur
| Pièce | Surface | Détail |
|---|---|---|
| 1x Entrée | 2.55 m² | Étage : 4ème |
| 1x Salle de douche | 2.79 m² | Étage : 4ème |
| 1x Toilettes | 1.26 m² | Étage : 4ème |
| 1x Séjour/cuisine | 18.89 m² |
Étage : 4ème Exposition : Est |
| 1x Chambre | 8.41 m² |
Étage : 4ème Exposition : Est |
| 1x Placard | 0.9 m² | Étage : 4ème |
Prestations
Bâtiment & Copropriété
| Bâtiment |
|---|
-
Construit en : 1750
-
Nombre d'étages : 4
-
Niveau de qualité : Standing
| Copropriété |
|---|
112 lots d'habitation
Montant moyen annuel de la quote part de charges courantes : 2 400 €
Procédure en cours : Non
Rencontrez votre agence
Simulateur de financement
Calculez le montant des mensualités de votre prêt immobilier correspondant à l'emprunt que vous souhaitez effectuer.
Prix du bien HAI
575 000 €
€
par mois
Vous devez vendre pour acheter ?
Nos consultants immobiliers se tiennent à votre disposition pour réaliser une estimation de la valeur de votre bien. Toutes nos estimations sont offertes.
Je fais estimer mon bienUn lieu de vie à votre image
Junot vous fait visiter les quartiers dans lesquels nos agences vous accueillent, et vous présente les spécificités et bonnes adresses.
Parcourir les quartiers












