Faisons un tour d'horizon
Référence de l’annonce : 3377GREANN
Au cœur du quartier des Antiquaires, ce superbe appartement de 71,06m² loi Carrez traversant, ensoleillé, parfaitement rénové et climatisé se situa au cinquième étage par ascenseur d'un bel immeuble du XVIIIe siècle avec gardien.
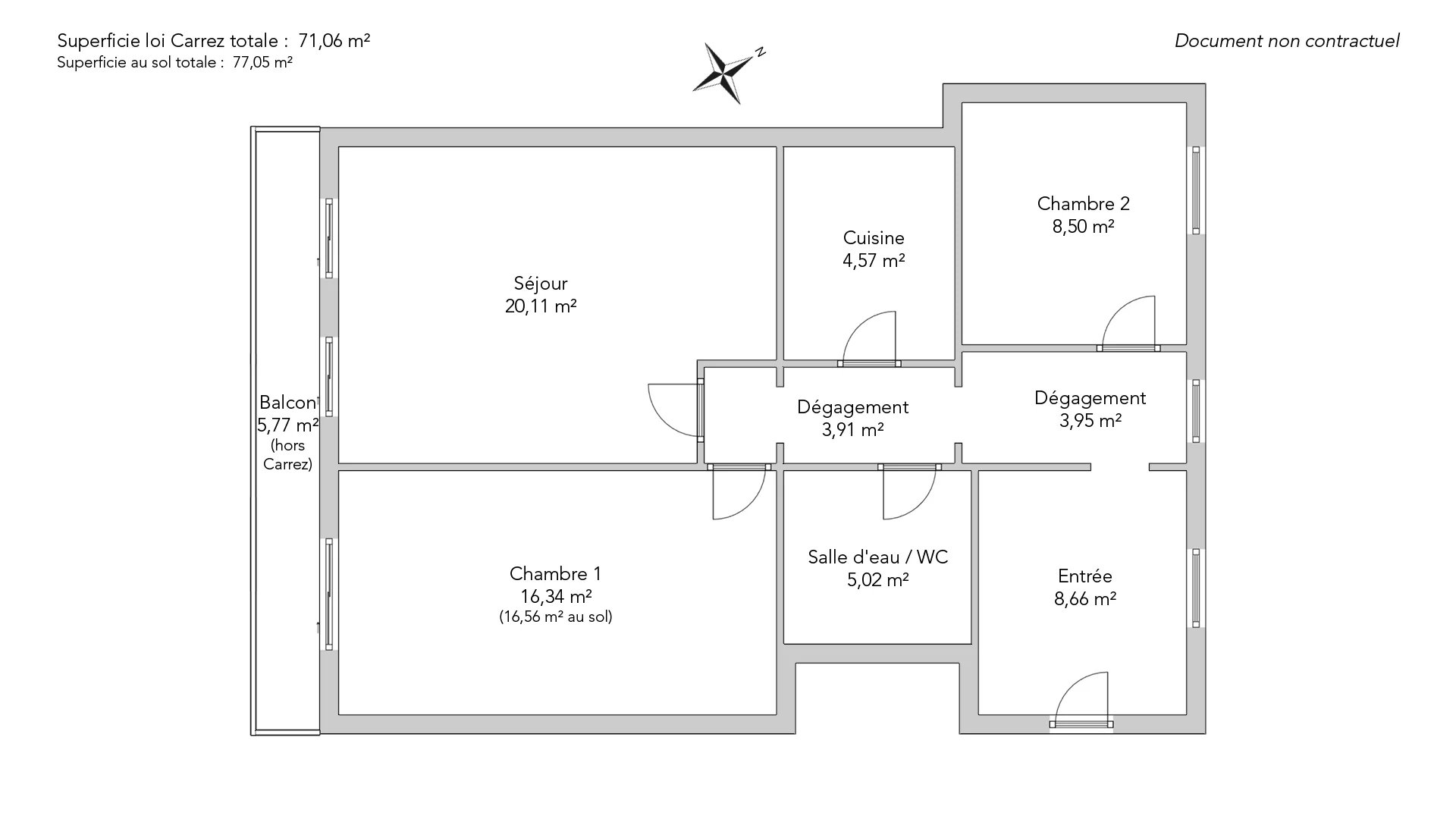
Le plan optimisé propose une entrée, un séjour orienté au sud-ouest avec un large balcon qui offre de belles vues dégagées, une cuisine séparée aménagée et équipée, une spacieuse chambre avec accès au balcon, une seconde chambre au calme sur la cour et une salle de douche avec des toilettes.
Les prestations haut de gamme et le choix raffiné des matériaux subliment le charme de l’ancien soigneusement préservé.
L'ensemble est au grand calme, à deux pas de la Seine et du musée d'Orsay, dans l'un des quartiers les plus prisés de la capitale.
Deux places de parking situées rue de Verneuil en supplément.
- Habitable : 71,06 m² Total : 71,28 m²
- 4 pièces
- 2 chambres
- 1 salle de douche
- Étage 5/6
- Cheminée
- Exposition Sud-ouest
- Excellent état
- Meublé
Ce qui nous séduit
- Balcon/Terrasse
- Adresse très recherchée
- Prestations exceptionnelles
- Gardien
- Lumineux
- Calme
- Traversant
- Parking
- Ascenseur
On vous en dit plus
Réglementations & éléments financiers
Les informations sur les risques auxquels ce bien est exposé sont disponibles sur le site Géorisques : www.georisques.gouv.fr
| Diagnostics |
|---|
Consommation énergie finale : a - 223 kWh/m²/an.
Montant estimé des dépenses annuelles d’énergie pour un usage standard : entre 1 490,00 € et 2 080,00 € /an (abonnement compris).
Prix moyen des énergies indexées au 01/01/2023.
| Éléments financiers |
|---|
Taxe foncière : 2 243,00 € /an
Détails de l’intérieur & de l’extérieur
| Pièce | Surface | Détail |
|---|---|---|
| 2x Parking | Étage : Sous-sol | |
| 1x Entrée | 8.66 m² |
Étage : 5ème Exposition : Nord |
| 1x Dégagement | 3.95 m² | Étage : 5ème |
| 1x Séjour | 20.11 m² |
Étage : 5ème Exposition : Sud Plafond : 2.15m |
| 1x Balcon | 5.77 m² |
Étage : 5ème Exposition : Sud |
| 1x Cuisine | 4.57 m² | Étage : 5ème |
| 1x Dégagement | 3.91 m² | Étage : 5ème |
| 1x Chambre | 16.34 m² |
Étage : 5ème Exposition : Sud |
| 1x Chambre | 8.5 m² |
Étage : 5ème Exposition : Nord |
| 1x Salle de douche / toilettes | 5.02 m² | Étage : 5ème |
Prestations
Bâtiment & Copropriété
| Bâtiment |
|---|
-
Construit en : 1860
-
Nombre d'étages : 6
-
Niveau de qualité : Grand Luxe
| Copropriété |
|---|
83 lots d'habitation
Montant moyen annuel de la quote part de charges courantes : 3 120 €
Procédure en cours : Non
Rencontrez votre agence
Simulateur de financement
Calculez le montant des mensualités de votre prêt immobilier correspondant à l'emprunt que vous souhaitez effectuer.
Prix du bien HAI
1 750 000 €
€
par mois
Vous devez vendre pour acheter ?
Nos consultants immobiliers se tiennent à votre disposition pour réaliser une estimation de la valeur de votre bien. Toutes nos estimations sont offertes.
Je fais estimer mon bienUn lieu de vie à votre image
Junot vous fait visiter les quartiers dans lesquels nos agences vous accueillent, et vous présente les spécificités et bonnes adresses.
Parcourir les quartiers









