Faisons un tour d'horizon
Référence de l’annonce : 1768CHMGIR06
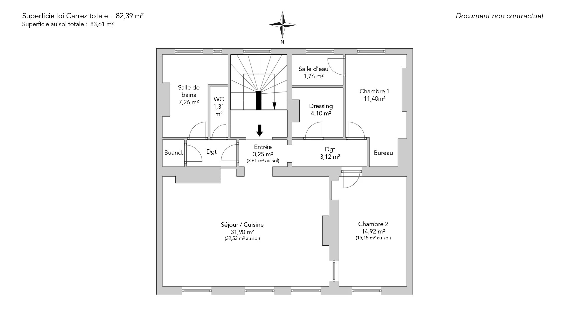
À la lisière des 6e et 7e arrondissements, au cœur du quartier Sèvres-Babylone, idéalement situé entre le Bon Marché et le Lutetia, au troisième étage par escalier d'un bel immeuble en pierre de taille, découvrez un splendide appartement de 82,39m² loi Carrez sublimé par une rénovation de qualité.
Il comprend une entrée, un vaste double séjour avec une belle cuisine en pierre, trois grandes fenêtres sur la rue et une jolie cheminée avec son miroir d'époque.
L'espace nuit comporte une grande chambre avec des rangements, une seconde chambre sur la cour avec des rangements, un espace bureau et une salle de douche.
Un dressing, une buanderie et une grande salle de bains avec douche et baignoire complètent ce plan optimal.
Le bien est climatisé, calme et lumineux.
Une cave complète cette offre.
EXCLUSIVITÉ.
- Habitable : 82,39 m² Total : 83,61 m²
- 4 pièces
- 2 chambres
- 1 salle de bains
- 1 salle de douche
- Étage 3/6
- Cheminée
- Exposition Sud-est, Nord-ouest
- Excellent état
Ce qui nous séduit
- Adresse très recherchée
- Prestations exceptionnelles
- Calme
- Traversant
- Cave
On vous en dit plus
Réglementations & éléments financiers
Les informations sur les risques auxquels ce bien est exposé sont disponibles sur le site Géorisques : www.georisques.gouv.fr
| Diagnostics |
|---|
Consommation énergie finale : a - 121 kWh/m²/an.
Montant estimé des dépenses annuelles d’énergie pour un usage standard : entre 1 770,00 € et 2 420,00 € /an (abonnement compris).
| Éléments financiers |
|---|
Détails de l’intérieur & de l’extérieur
| Pièce | Surface | Détail |
|---|---|---|
| 1x Cave | ||
| 1x Entrée | 3.25 m² | Étage : 3ème |
| 1x Séjour | 31.9 m² |
Étage : 3ème Exposition : Nord-ouest Plafond : 2.76m |
| 1x Dégagement | 3.12 m² | Étage : 3ème |
| 1x Chambre | 11.4 m² | Étage : 3ème |
| 1x Chambre | 14.92 m² | Étage : 3ème |
| 1x Salle de douche | 1.76 m² | Étage : 3ème |
| 1x Salle de bains | 7.26 m² | Étage : 3ème |
| 1x Toilettes | 1.31 m² | Étage : 3ème |
| 1x Dressing | 4.1 m² | Étage : 3ème |
| 1x Dégagement | 3.37 m² | Étage : 3ème |
Prestations
Bâtiment & Copropriété
| Bâtiment |
|---|
-
Construit en : 1900
-
Type : Pierre de taille
-
Nombre d'étages : 6
-
Niveau de qualité : Grand Luxe
| Copropriété |
|---|
Montant moyen annuel de la quote part de charges courantes : 3 000 €
Procédure en cours : Non
Rencontrez votre agence
Simulateur de financement
Calculez le montant des mensualités de votre prêt immobilier correspondant à l'emprunt que vous souhaitez effectuer.
Prix du bien HAI
2 000 000 €
€
par mois
Vous devez vendre pour acheter ?
Nos consultants immobiliers se tiennent à votre disposition pour réaliser une estimation de la valeur de votre bien. Toutes nos estimations sont offertes.
Je fais estimer mon bienUn lieu de vie à votre image
Junot vous fait visiter les quartiers dans lesquels nos agences vous accueillent, et vous présente les spécificités et bonnes adresses.
Parcourir les quartiers












