Faisons un tour d'horizon
Référence de l’annonce : 1088POIGON
Au cœur d’un quartier animé et recherché, à proximité immédiate des commerces, transports et théâtres, tout en bénéficiant d’un calme absolu sur cour dégagée, ce superbe duplex de 127,14 m² loi Carrez conjugue avec élégance le charme de l’ancien et une rénovation contemporaine.
Situé dans un immeuble de caractère, l’appartement se déploie sur deux niveaux.
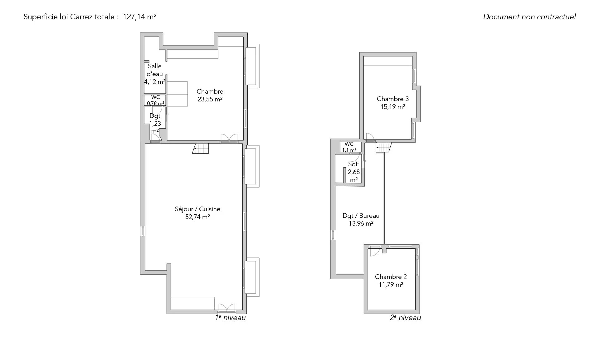
Le premier niveau accueille un vaste séjour avec cuisine ouverte de 52,74 m², baigné de lumière naturelle grâce à une hauteur sous plafond de 4 mètres et prolongé par un balcon. Une suite parentale de 22 m² avec salle de douche privative ainsi que des toilettes séparées complètent cet étage.
À l’étage supérieur, deux chambres confortables, un espace bureau, une salle de douche et des toilettes indépendantes offrent une distribution harmonieuse.
L’ensemble a fait l’objet d’une rénovation sur-mesure, réalisée avec soin par les propriétaires et leur architecte. Une cave complète ce bien rare.
- Habitable : 127,14 m² Total : 128,98 m²
- 5 pièces
- 3 chambres
- 2 salles de douche
- Étage 2/3
- Exposition Sud
- Excellent état
Ce qui nous séduit
- Balcon/Terrasse
- Calme
- Cave
On vous en dit plus
Réglementations & éléments financiers
Les informations sur les risques auxquels ce bien est exposé sont disponibles sur le site Géorisques : www.georisques.gouv.fr
| Diagnostics |
|---|
Consommation énergie finale : a - 276 kWh/m²/an.
Montant estimé des dépenses annuelles d’énergie pour un usage standard : entre 3 140,00 € et 4 290,00 € /an (abonnement compris).
Prix moyen des énergies indexées au 01/01/2021.
| Éléments financiers |
|---|
Taxe foncière : 1 935,00 € /an
Détails de l’intérieur & de l’extérieur
| Pièce | Surface | Détail |
|---|---|---|
| 1x Cave | Étage : Sous-sol | |
| 1x Séjour/cuisine | 52.74 m² | Étage : 1er |
| 1x Dégagement | 1.23 m² | Étage : 1er |
| 1x Toilettes | 0.78 m² | Étage : 1er |
| 1x Chambre | 23.55 m² | Étage : 1er |
| 1x Salle de douche | 4.12 m² | Étage : 1er |
| 1x Balcon | 7.35 m² | Étage : 1er |
| 1x Bureau | 13.96 m² | Étage : 2ème |
| 1x Chambre | 11.79 m² | Étage : 2ème |
| 1x Chambre | 15.19 m² | Étage : 2ème |
| 1x Salle de douche | 2.68 m² | Étage : 2ème |
| 1x Toilettes | 1.1 m² | Étage : 2ème |
Prestations
Bâtiment & Copropriété
| Bâtiment |
|---|
-
Construit en : 1800
-
Type : Pierre de taille
-
Nombre d'étages : 3
| Copropriété |
|---|
61 lots d'habitation
Montant moyen annuel de la quote part de charges courantes : 3 000 €
Procédure en cours : Non
Rencontrez votre agence
Simulateur de financement
Calculez le montant des mensualités de votre prêt immobilier correspondant à l'emprunt que vous souhaitez effectuer.
Prix du bien HAI
1 830 000 €
€
par mois
Vous devez vendre pour acheter ?
Nos consultants immobiliers se tiennent à votre disposition pour réaliser une estimation de la valeur de votre bien. Toutes nos estimations sont offertes.
Je fais estimer mon bienUn lieu de vie à votre image
Junot vous fait visiter les quartiers dans lesquels nos agences vous accueillent, et vous présente les spécificités et bonnes adresses.
Parcourir les quartiers










