Faisons un tour d'horizon
Référence de l’annonce : 3386GREANN
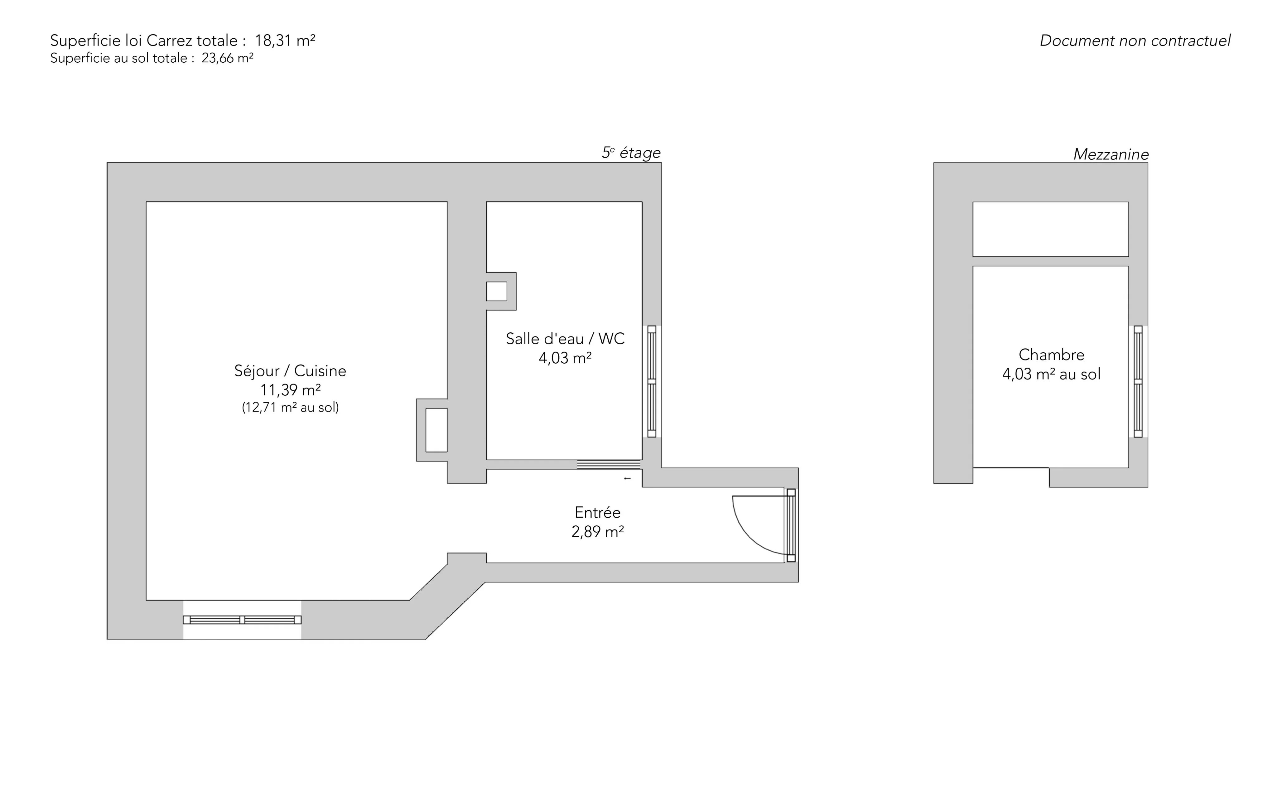
Situé au cinquième et dernier étage par ascenseur d'un bel immeuble ancien, cet appartement proposé meublé de 23,66m² au sol et 18,31m² loi Carrez allie parfaitement le charme, l'élégance et le confort moderne.
Entièrement repensé, rénové et décoré par architecte, chaque détail a été minutieusement réfléchi pour offrir un cadre de vie à la fois raffiné et fonctionnel.
Il comprend un salon lumineux et son espace dînatoire, une cuisine intégralement équipée, une chambre en mezzanine et une spacieuse salle de douche avec des toilettes. La décoration soignée, le choix de matériaux de qualité et la lumière naturelle font de ce bien un véritable cocon en plein cœur du 7e arrondissement.
Doté de splendides vues sur la tour Eiffel et les toits parisiens, l’appartement bénéficie de généreux volumes grâce à 3,10m de hauteur sous plafond, d'un espace optimisé de nombreux rangements, de la climatisation réversible et du chauffage au sol. L’immeuble dispose également d'un cadre de vie paisible et sécurisé avec un gardien.
- Habitable : 23,66 m²
- 2 pièces
- 1 chambre
- 1 salle de douche
- Cheminée
- Exposition Sud-ouest
- Neuf
Ce qui nous séduit
- Vue exceptionnelle
- Adresse très recherchée
- Prestations exceptionnelles
- Dernier étage
- Gardien
- Vue monument historique
- Lumineux
- Calme
- Ascenseur
- Vue dégagée
On vous en dit plus
Réglementations & éléments financiers
Les informations sur les risques auxquels ce bien est exposé sont disponibles sur le site Géorisques : www.georisques.gouv.fr
| Diagnostics |
|---|
Consommation énergie finale : a - 150 kWh/m²/an.
Montant estimé des dépenses annuelles d’énergie pour un usage standard : entre 550,00 € et 800,00 € /an (abonnement compris).
Prix moyen des énergies indexées au 01/01/2023.
| Éléments financiers |
|---|
Détails de l’intérieur & de l’extérieur
| Pièce | Surface | Détail |
|---|---|---|
| 1x Entrée | 2.89 m² | Étage : 5ème |
| 1x Salle de douche / toilettes | 4.03 m² | Étage : 5ème |
| 1x Séjour/cuisine | 11.39 m² |
Étage : 5ème Plafond : 3.1m |
| 1x Chambre | 4.03 m² | Étage : 5ème |
Prestations
Bâtiment & Copropriété
| Bâtiment |
|---|
-
Construit en : 1900
-
Type : Pierre de taille
-
Nombre d'étages : 5
-
Niveau de qualité : Grand Luxe
| Copropriété |
|---|
92 lots d'habitation
Montant moyen annuel de la quote part de charges courantes : 804 €
Procédure en cours : Non
Rencontrez votre agence
Simulateur de financement
Calculez le montant des mensualités de votre prêt immobilier correspondant à l'emprunt que vous souhaitez effectuer.
Prix du bien HAI
420 000 €
€
par mois
Vous devez vendre pour acheter ?
Nos consultants immobiliers se tiennent à votre disposition pour réaliser une estimation de la valeur de votre bien. Toutes nos estimations sont offertes.
Je fais estimer mon bienUn lieu de vie à votre image
Junot vous fait visiter les quartiers dans lesquels nos agences vous accueillent, et vous présente les spécificités et bonnes adresses.
Parcourir les quartiers












