Faisons un tour d'horizon
Référence de l’annonce : 2271PASFAR
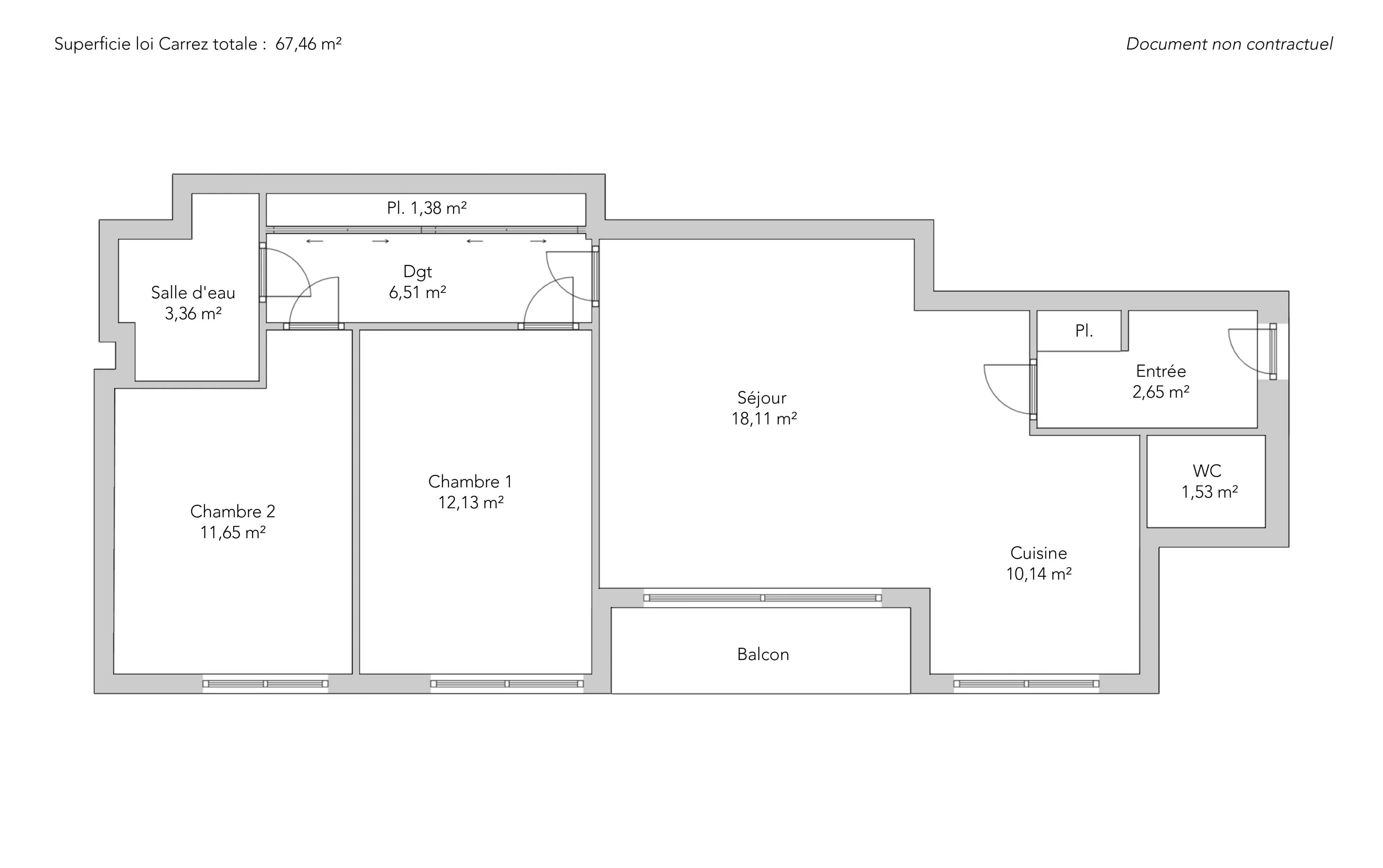
À proximité immédiate de la rue Molitor, au sixième étage par ascenseur d'une belle copropriété très bien entretenue avec gardien, appartement d'une superficie de 67,46m² loi Carrez en excellent état.
Le plan comporte une entrée, un séjour avec balcon, une cuisine américaine, deux chambres, une salle de douche et des toilettes séparées. De nombreux rangements complètent ce bien.
Une cave en sous-sol est incluse.
EXCLUSIVITÉ
- Habitable : 67,46 m² Total : 67,81 m²
- 3 pièces
- 2 chambres
- 1 salle de douche
- Exposition Ouest
- Excellent état
Ce qui nous séduit
- Balcon/Terrasse
- Gardien
- Lumineux
- Calme
- Ascenseur
- Cave
On vous en dit plus
Réglementations & éléments financiers
Les informations sur les risques auxquels ce bien est exposé sont disponibles sur le site Géorisques : www.georisques.gouv.fr
| Diagnostics |
|---|
Consommation énergie finale : D - 236 kWh/m²/an.
Montant estimé des dépenses annuelles d’énergie pour un usage standard : entre 1 300,00 € et 1 800,00 € /an (abonnement compris).
Prix moyen des énergies indexées au 01/01/2023.
| Éléments financiers |
|---|
Taxe foncière : 1 787,00 € /an
Détails de l’intérieur & de l’extérieur
| Pièce | Surface | Détail |
|---|---|---|
| 1x Cave | ||
| 1x Entrée | 2.65 m² | Étage : 6ème |
| 1x Séjour | 18.11 m² | Étage : 6ème |
| 1x Balcon | 4.07 m² | Étage : 6ème |
| 1x Cuisine américaine | 10.14 m² | Étage : 6ème |
| 1x Chambre | 12.13 m² | Étage : 6ème |
| 1x Chambre | 11.65 m² | Étage : 6ème |
| 1x Salle de douche | 3.36 m² | Étage : 6ème |
| 1x Toilettes | 1.53 m² | Étage : 6ème |
| 1x Dégagement | 1.38 m² | Étage : 6ème |
| 1x Dégagement | 6.51 m² | Étage : 6ème |
Prestations
Bâtiment & Copropriété
| Bâtiment |
|---|
-
Construit en : 1955
-
Niveau de qualité : Normal
| Copropriété |
|---|
52 lots d'habitation
Montant moyen annuel de la quote part de charges courantes : 3 019 €
Procédure en cours : Non
Rencontrez votre agence
Simulateur de financement
Calculez le montant des mensualités de votre prêt immobilier correspondant à l'emprunt que vous souhaitez effectuer.
Prix du bien HAI
750 000 €
€
par mois
Vous devez vendre pour acheter ?
Nos consultants immobiliers se tiennent à votre disposition pour réaliser une estimation de la valeur de votre bien. Toutes nos estimations sont offertes.
Je fais estimer mon bienUn lieu de vie à votre image
Junot vous fait visiter les quartiers dans lesquels nos agences vous accueillent, et vous présente les spécificités et bonnes adresses.
Parcourir les quartiers











