Faisons un tour d'horizon
Référence de l’annonce :
Idéalement situé dans le quartier d’Auteuil, à deux pas de la place Jean Lorrain.
Au quatrième étage d’un immeuble de 1974 bien entretenu, appartement de 110,23m² loi Carrez.
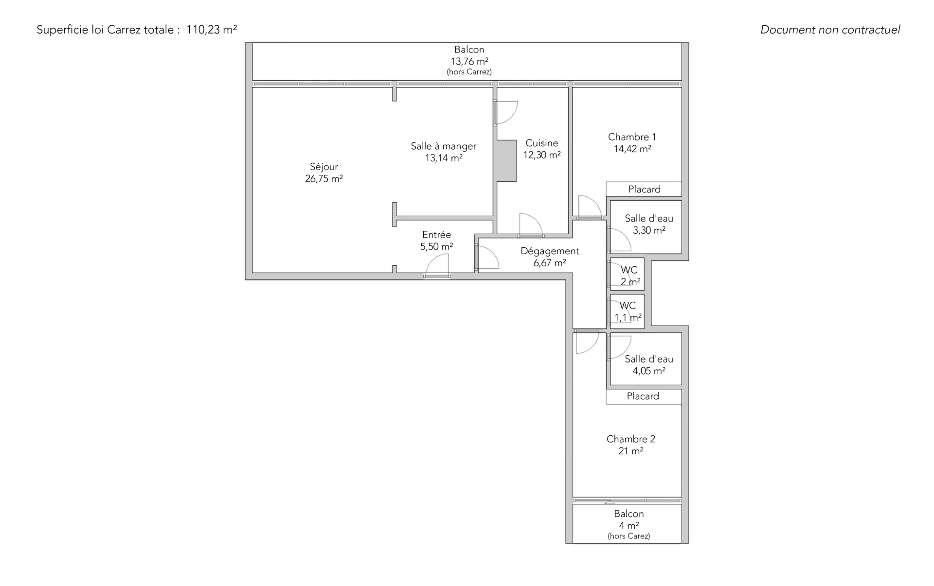
Le plan en étoile s’organise autour d’une entrée qui dessert un salon et une salle à manger, ouverts sur un large balcon de 21m² exposé sud-est, offrant une agréable luminosité. La cuisine dinatoire, séparée, bénéficie d’un espace repas convivial.
L’espace nuit se compose de deux grandes chambres, toutes deux prolongées par un second balcon, dont une suite parentale au calme sur jardin avec salle de douche attenante. Une seconde salle de douche ainsi que deux toilettes séparées complètent l’ensemble.
De nombreux rangements, la présence d’une gardienne à demeure et une cave viennent parfaire ce bien.
Un box en sous-sol est proposé en option.
EXCLUSIVITÉ
- Habitable : 110,23 m² Total : 127,99 m²
- 4 pièces
- 3 chambres
- 2 salles de douche
- Étage 4/9
- Exposition Sud-est
- Excellent état
Ce qui nous séduit
- Balcon/Terrasse
- Gardien
- Lumineux
- Calme
- Ascenseur
- Cave
- Vue dégagée
On vous en dit plus
Réglementations & éléments financiers
Les informations sur les risques auxquels ce bien est exposé sont disponibles sur le site Géorisques : www.georisques.gouv.fr
| Diagnostics |
|---|
Consommation énergie finale : E - 267 kWh/m²/an.
Montant estimé des dépenses annuelles d’énergie pour un usage standard : entre 2 400,00 € et 3 280,00 € /an (abonnement compris).
| Éléments financiers |
|---|
Taxe foncière : 3 083,00 € /an
Détails de l’intérieur & de l’extérieur
| Pièce | Surface | Détail |
|---|---|---|
| 1x Cave | ||
| 1x Box | ||
| 1x Entrée | 5.5 m² | Étage : 4ème |
| 1x Séjour | 26.75 m² | Étage : 4ème |
| 1x Balcon | 13.76 m² | Étage : 4ème |
| 1x Balcon | 4 m² | Étage : 4ème |
| 1x Chambre | 13.14 m² | Étage : 4ème |
| 1x Cuisine | 12.3 m² | Étage : 4ème |
| 1x Chambre | 21 m² | Étage : 4ème |
| 1x Chambre | 14.42 m² | Étage : 4ème |
| 1x Salle de douche | 4.05 m² | Étage : 4ème |
| 1x Salle de douche | 3.3 m² | Étage : 4ème |
| 1x Toilettes | 2 m² | Étage : 4ème |
| 1x Toilettes | 1.1 m² | Étage : 4ème |
| 1x Dégagement | 6.67 m² | Étage : 4ème |
Prestations
Bâtiment & Copropriété
| Bâtiment |
|---|
-
Construit en : 1974
-
Nombre d'étages : 9
| Copropriété |
|---|
47 lots d'habitation
Montant moyen annuel de la quote part de charges courantes : 6 768 €
Procédure en cours : Non
Rencontrez votre agence
Simulateur de financement
Calculez le montant des mensualités de votre prêt immobilier correspondant à l'emprunt que vous souhaitez effectuer.
Prix du bien HAI
1 250 000 €
€
par mois
Vous devez vendre pour acheter ?
Nos consultants immobiliers se tiennent à votre disposition pour réaliser une estimation de la valeur de votre bien. Toutes nos estimations sont offertes.
Je fais estimer mon bienUn lieu de vie à votre image
Junot vous fait visiter les quartiers dans lesquels nos agences vous accueillent, et vous présente les spécificités et bonnes adresses.
Parcourir les quartiers







