Faisons un tour d'horizon
Référence de l’annonce : 2888TERGUI
Rare. À proximité du parc Monceau.
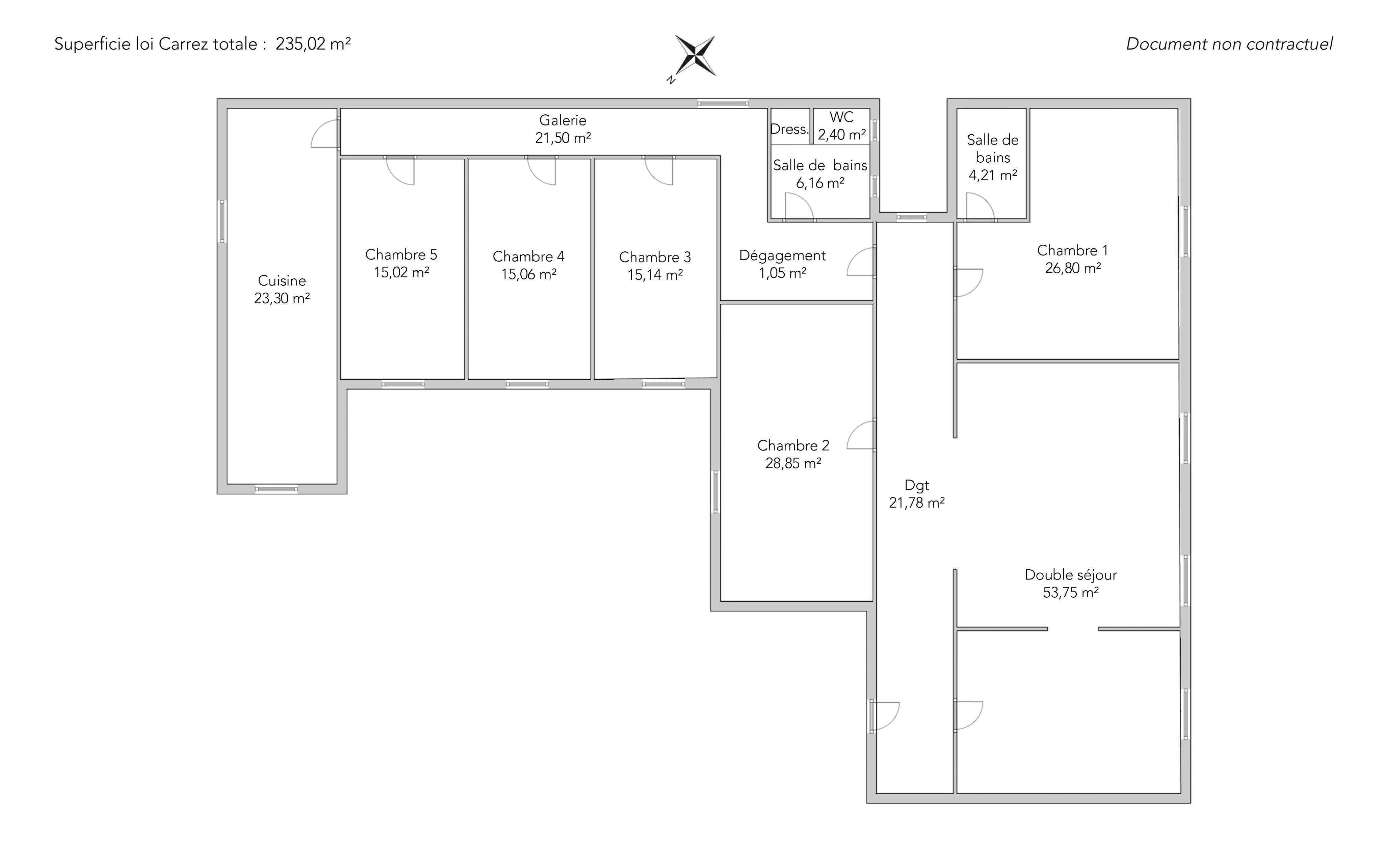
Dans un magnifique immeuble haussmannien, au quatrième étage avec ascenseur, très bel appartement de sept pièces d’une superficie de 234,65m² loi Carrez.
L’excellent plan propose une magnifique galerie d’entrée, un très beau double séjour avec cheminées, quatre chambres, deux salles de bains, une très belle cuisine dinatoire, de nombreux rangements et des toilettes indépendantes.
Deux caves complètent cet élégant ensemble. Deux places de parking sont proposées en option.
Ce bien bénéficie d’un cachet incomparable, de très beaux volumes avec 3,15m de hauteur sous plafond et d’un très bel ensoleillement.
- Habitable : 234,65 m²
- 7 pièces
- 4 chambres
- 2 salles de bains
- Étage 4/6
- Cheminée
- Exposition Sud-ouest
- À rénover
Ce qui nous séduit
- Adresse très recherchée
- Gardien
- Lumineux
- Calme
- Traversant
- Ascenseur
- Vue dégagée
On vous en dit plus
Réglementations & éléments financiers
Les informations sur les risques auxquels ce bien est exposé sont disponibles sur le site Géorisques : www.georisques.gouv.fr
| Diagnostics |
|---|
| Éléments financiers |
|---|
Détails de l’intérieur & de l’extérieur
| Pièce | Surface | Détail |
|---|---|---|
| 1x Séjour | 54.2 m² |
Exposition : Sud-ouest Revêtement : Parquet Plafond : 3.15m |
| 1x Chambre | 28.7 m² |
Exposition : Nord-est |
| 1x Chambre | 15.09 m² | |
| 1x Chambre | 15.22 m² | |
| 1x Chambre | 14.96 m² | |
| 1x Cuisine | 22.73 m² | |
| 1x Dégagement | 1.04 m² | |
| 1x Toilettes | 2.41 m² | |
| 1x Salle de bains | 6.21 m² | |
| 1x Salle à manger | 27.07 m² | |
| 1x Salle de bains | 4.21 m² | |
| 1x Dégagement | 21.33 m² | |
| 1x Galerie | 21.48 m² | Étage : 3ème |
Prestations
Bâtiment & Copropriété
| Bâtiment |
|---|
-
Construit en : 1904
-
Type : Pierre de taille
-
Nombre d'étages : 6
-
Niveau de qualité : Standing
| Copropriété |
|---|
Montant moyen annuel de la quote part de charges courantes : 14 400 €
Procédure en cours : Non
Rencontrez votre agence
Simulateur de financement
Calculez le montant des mensualités de votre prêt immobilier correspondant à l'emprunt que vous souhaitez effectuer.
Prix du bien HAI
2 850 000 €
€
par mois
Vous devez vendre pour acheter ?
Nos consultants immobiliers se tiennent à votre disposition pour réaliser une estimation de la valeur de votre bien. Toutes nos estimations sont offertes.
Je fais estimer mon bienUn lieu de vie à votre image
Junot vous fait visiter les quartiers dans lesquels nos agences vous accueillent, et vous présente les spécificités et bonnes adresses.
Parcourir les quartiers











