Faisons un tour d'horizon
Référence de l’annonce : 2835WAGBOU
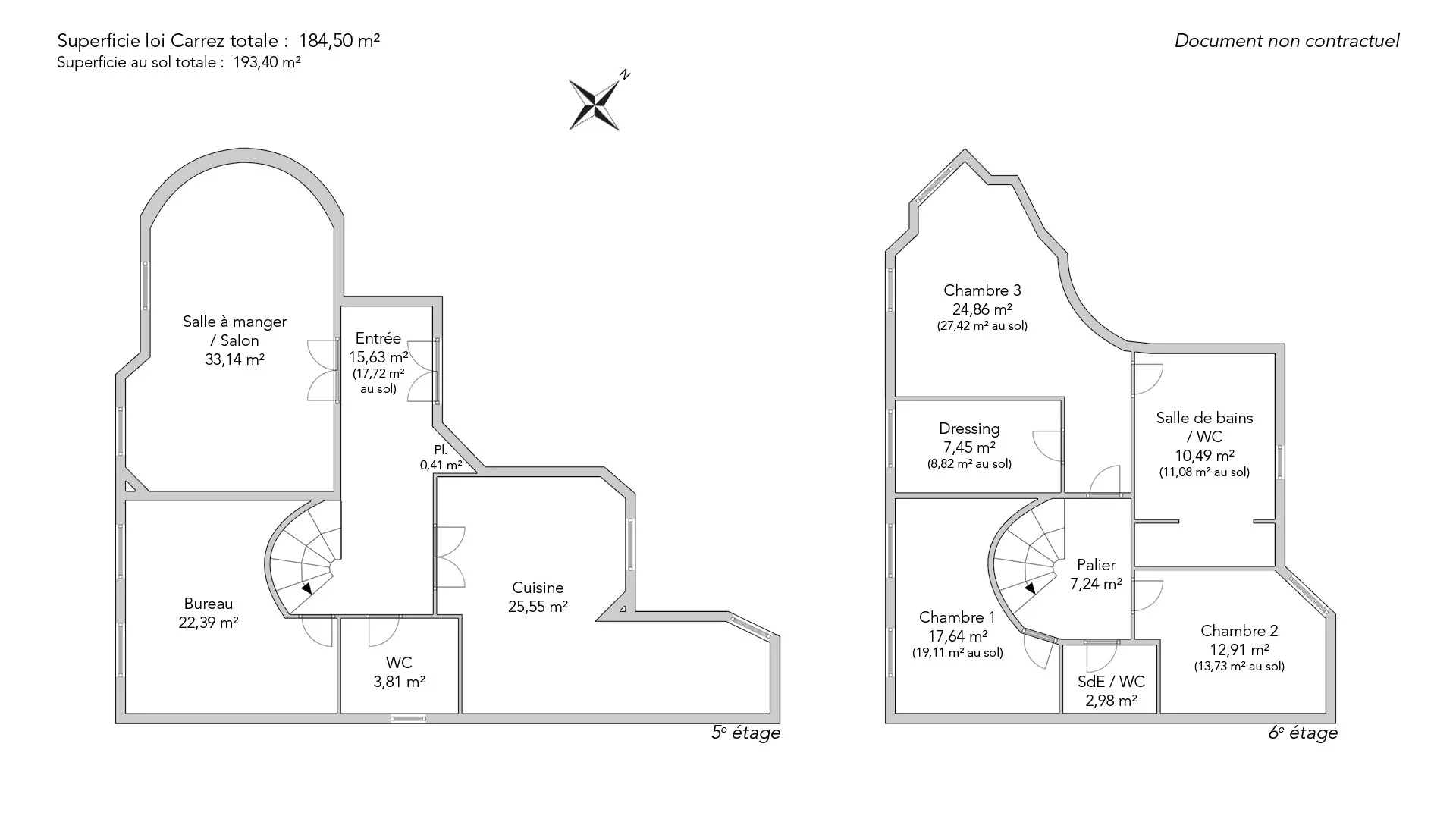
Rue Sergent Hoff, à proximité des transports, des commodités et des écoles, dans un immeuble Haussmannien de grand standing, superbe duplex de 184,50m² loi Carrez situé au cinquième et dernier étage par ascenseur.
Dans un esprit maison, cet appartement traversant comporte au premier niveau une galerie d’entrée, une double réception baignée de lumière ouvrant sur un balcon avec une vue dégagée exposée sud-ouest, une superbe cuisine/salle à manger, une agréable chambre et des toilettes invités.
À l'étage, une sublime suite parentale avec une grande chambre d'angle, son vaste dressing et sa salle de bains; deux autres agréables chambres et une salle de douche.
Une double cave complète cette offre. Possibilité d'acquérir en supplément un parking à proximité immédiate.
Vous serez séduit par les très beaux volumes, la luminosité, et le charme indéniable qui se dégage de cet appartement unique. Sectorisation Pierre de Ronsard.
EXCLUSIVITÉ.
- Habitable : 184,50 m² Total : 193,40 m²
- 7 pièces
- 3 chambres
- 1 salle de bains
- 1 salle de douche
- Étage 5/6
- Exposition Sud-ouest
- À rafraîchir
Ce qui nous séduit
- Vue exceptionnelle
- Balcon/Terrasse
- Adresse très recherchée
- Prestations exceptionnelles
- Dernier étage
- Gardien
- Lumineux
- Calme
- Traversant
- Ascenseur
- Cave
- Vue dégagée
On vous en dit plus
Réglementations & éléments financiers
Les informations sur les risques auxquels ce bien est exposé sont disponibles sur le site Géorisques : www.georisques.gouv.fr
| Diagnostics |
|---|
Consommation énergie finale : E - 253 kWh/m²/an.
Montant estimé des dépenses annuelles d’énergie pour un usage standard : entre 3 820,00 € et 5 220,00 € /an (abonnement compris).
Prix moyen des énergies indexées au 01/01/2023.
| Éléments financiers |
|---|
Détails de l’intérieur & de l’extérieur
| Pièce | Surface | Détail |
|---|---|---|
| 1x Balcon | ||
| 1x Cave | Étage : Sous-sol | |
| 1x Entrée | 15.63 m² |
Étage : 5ème Plafond : 3m |
| 1x Salon | 33.14 m² | Étage : 5ème |
| 1x Placard | 0.41 m² | Étage : 5ème |
| 1x Cuisine | 25.55 m² | Étage : 5ème |
| 1x Bureau | 22.39 m² | Étage : 5ème |
| 1x Toilettes | 3.81 m² | Étage : 5ème |
| 1x Palier | 7.24 m² | Étage : 6ème |
| 1x Chambre | 17.64 m² | Étage : 6ème |
| 1x Salle de douche / toilettes | 2.98 m² | Étage : 6ème |
| 1x Chambre | 12.91 m² | Étage : 6ème |
| 1x Chambre | 24.86 m² | Étage : 6ème |
| 1x Salle de bains / toilettes | 10.49 m² | Étage : 6ème |
| 1x Dressing | 7.45 m² | Étage : 6ème |
Prestations
Bâtiment & Copropriété
| Bâtiment |
|---|
-
Construit en : 1909
-
Nombre d'étages : 6
-
Niveau de qualité : Luxe
| Copropriété |
|---|
40 lots d'habitation
Montant moyen annuel de la quote part de charges courantes : 7 888 €
Procédure en cours : Non
Rencontrez votre agence
Simulateur de financement
Calculez le montant des mensualités de votre prêt immobilier correspondant à l'emprunt que vous souhaitez effectuer.
Prix du bien HAI
2 550 000 €
€
par mois
Vous devez vendre pour acheter ?
Nos consultants immobiliers se tiennent à votre disposition pour réaliser une estimation de la valeur de votre bien. Toutes nos estimations sont offertes.
Je fais estimer mon bienUn lieu de vie à votre image
Junot vous fait visiter les quartiers dans lesquels nos agences vous accueillent, et vous présente les spécificités et bonnes adresses.
Parcourir les quartiers












