Faisons un tour d'horizon
Référence de l’annonce : 1879VHUVER
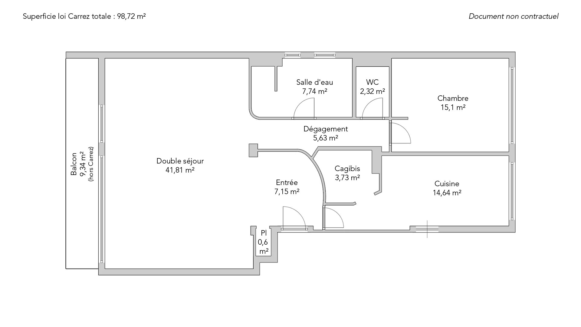
Idéalement situé dans une élégante rue du quartier Passy, c'est au 5ème par ascenseur d'une copropriété semi-récente très bien entretenue que se trouve cet appartement traversant de 98,72m² Carrez. Il comprend, côté Est, un grand séjour de près de 40m², baigné de soleil et longé d'un large balcon avec vue ciel et Tour Eiffel. A l'Ouest se trouvent la cuisine et l'office ainsi que la chambre. La salle de bains est assez grande pour installer douche et baignoire. Les toilettes sont indépendantes. L'appartement est à rénover. Il est facilement possible de créer une deuxième chambre, comme dans son plan d'origine. Une cave complète cette offre. Un parking est proposé en supplément à 60 000€.
EXCLUSIVITÉ.
- Habitable : 98,72 m²
- 4 pièces
- 2 chambres
- 1 salle de douche
- Étage 5/7
- Exposition Est
- Bon état
Ce qui nous séduit
- Balcon/Terrasse
- Adresse très recherchée
- Gardien
- Vue monument historique
- Calme
- Ascenseur
- Cave
On vous en dit plus
Réglementations & éléments financiers
Les informations sur les risques auxquels ce bien est exposé sont disponibles sur le site Géorisques : www.georisques.gouv.fr
| Diagnostics |
|---|
Consommation énergie finale : C - 158 kWh/m²/an.
Montant estimé des dépenses annuelles d’énergie pour un usage standard : entre 1 300,00 € et 1 800,00 € /an (abonnement compris).
Prix moyen des énergies indexées au 01/01/2021.
| Éléments financiers |
|---|
Détails de l’intérieur & de l’extérieur
| Pièce | Surface | Détail |
|---|---|---|
| 1x Cave | ||
| 1x Box | ||
| 1x Chambre | ||
| 1x Entrée | 7.15 m² | Étage : 5ème |
| 1x Placard | 0.6 m² | Étage : 5ème |
| 1x Cuisine | 14.64 m² | Étage : 5ème |
| 1x Débarras | 3.73 m² | Étage : 5ème |
| 1x Double réception | 41.81 m² | Étage : 5ème |
| 1x Dégagement | 5.63 m² | Étage : 5ème |
| 1x Salle de douche | 7.74 m² | Étage : 5ème |
| 1x Toilettes | 2.32 m² | Étage : 5ème |
| 1x Chambre | 15.1 m² | Étage : 5ème |
| 1x Terrasse | Étage : 5ème |
Prestations
Bâtiment & Copropriété
| Bâtiment |
|---|
-
Construit en : 1964
-
Type : Béton
-
Nombre d'étages : 7
-
Niveau de qualité : Standing
| Copropriété |
|---|
Montant moyen annuel de la quote part de charges courantes : 6 000 €
Procédure en cours : Non
Rencontrez votre agence
Simulateur de financement
Calculez le montant des mensualités de votre prêt immobilier correspondant à l'emprunt que vous souhaitez effectuer.
Prix du bien HAI
1 320 000 €
€
par mois
Vous devez vendre pour acheter ?
Nos consultants immobiliers se tiennent à votre disposition pour réaliser une estimation de la valeur de votre bien. Toutes nos estimations sont offertes.
Je fais estimer mon bienUn lieu de vie à votre image
Junot vous fait visiter les quartiers dans lesquels nos agences vous accueillent, et vous présente les spécificités et bonnes adresses.
Parcourir les quartiers













