Faisons un tour d'horizon
Référence de l’annonce : 3460GREGEN/5851JUN
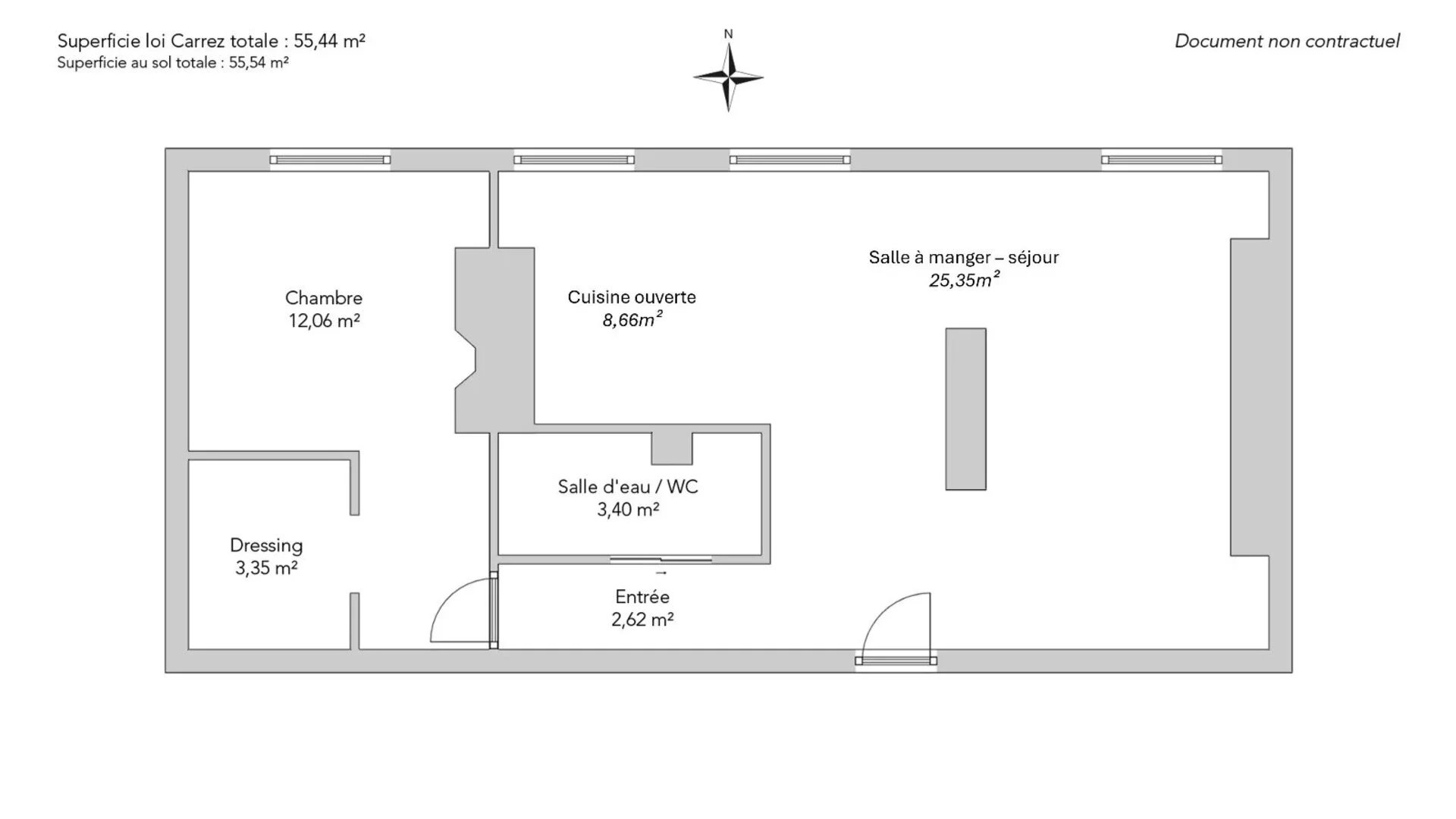
Au sein d'une rue calme et d'une copropriété aux parties communes rénovées, un charmant deux pièces de 55,44m² loi Carrez situé au cinquième étage par ascenseur.
Le plan compact comprend un double séjour avec sa cuisine dînatoire intégralement équipée, une chambre avec dressing et une salle de douche avec ses toilettes.
Une cave et un local à vélos complètent ce bien.
Il saura séduire par son emplacement prisé, son étage élevé, sa vue dégagée sur le ciel et son charme de l'ancien préservé avec son parquet et sa cheminée fonctionnelle.
EXCLUSIVITÉ.
- Habitable : 55,44 m²
- 2 pièces
- 1 chambre
- 1 salle de douche
- Étage 5/6
- Cheminée
- Exposition Nord
- Bon état
Ce qui nous séduit
- Calme
- Ascenseur
- Cave
- Vue dégagée
On vous en dit plus
Réglementations & éléments financiers
Les informations sur les risques auxquels ce bien est exposé sont disponibles sur le site Géorisques : www.georisques.gouv.fr
| Diagnostics |
|---|
Consommation énergie finale : a - 102 kWh/m²/an.
Montant estimé des dépenses annuelles d’énergie pour un usage standard : entre 1 057,00 € et 1 429,00 € /an (abonnement compris).
Prix moyen des énergies indexées au 01/01/2023.
| Éléments financiers |
|---|
Taxe foncière : 1 105,00 € /an
Détails de l’intérieur & de l’extérieur
| Pièce | Surface | Détail |
|---|---|---|
| 1x Cave | 3 m² |
Étage : Sous-sol Revêtement : Terre battue |
| 1x Entrée | 2.62 m² |
Étage : 5ème Revêtement : Parquet Plafond : 2.6m |
| 1x Séjour | 25.35 m² |
Étage : 5ème Exposition : Nord Revêtement : Parquet Plafond : 2.6m |
| 1x Cuisine équipée | 8.66 m² |
Étage : 5ème Exposition : Nord Revêtement : Parquet Plafond : 2.6m |
| 1x Chambre | 12.06 m² |
Étage : 5ème Exposition : Nord Revêtement : Parquet Plafond : 2.6m |
| 1x Dressing | 3.35 m² |
Étage : 5ème Exposition : Nord Revêtement : Parquet Plafond : 2.6m |
| 1x Salle de douche / toilettes | 3.4 m² |
Étage : 5ème Revêtement : Carrelage Plafond : 2.6m |
Prestations
Bâtiment & Copropriété
| Bâtiment |
|---|
-
Construit en : 1880
-
Type : Pierre
-
Nombre d'étages : 6
-
Niveau de qualité : Normal
| Copropriété |
|---|
22 lots d'habitation
Montant moyen annuel de la quote part de charges courantes : 2 136 €
Procédure en cours : Non
Rencontrez votre agence
Simulateur de financement
Calculez le montant des mensualités de votre prêt immobilier correspondant à l'emprunt que vous souhaitez effectuer.
Prix du bien HAI
650 000 €
€
par mois
Vous devez vendre pour acheter ?
Nos consultants immobiliers se tiennent à votre disposition pour réaliser une estimation de la valeur de votre bien. Toutes nos estimations sont offertes.
Je fais estimer mon bienUn lieu de vie à votre image
Junot vous fait visiter les quartiers dans lesquels nos agences vous accueillent, et vous présente les spécificités et bonnes adresses.
Parcourir les quartiers











