Faisons un tour d'horizon
Référence de l’annonce : 838JFPFRA/2323NEU
Situé dans l’un des quartiers les plus élégants et recherchés de Neuilly-sur-Seine.
Cet appartement se niche dans un petit hôtel particulier du secteur Saint-James / Madrid. L’adresse offre une atmosphère préservée et confidentielle.
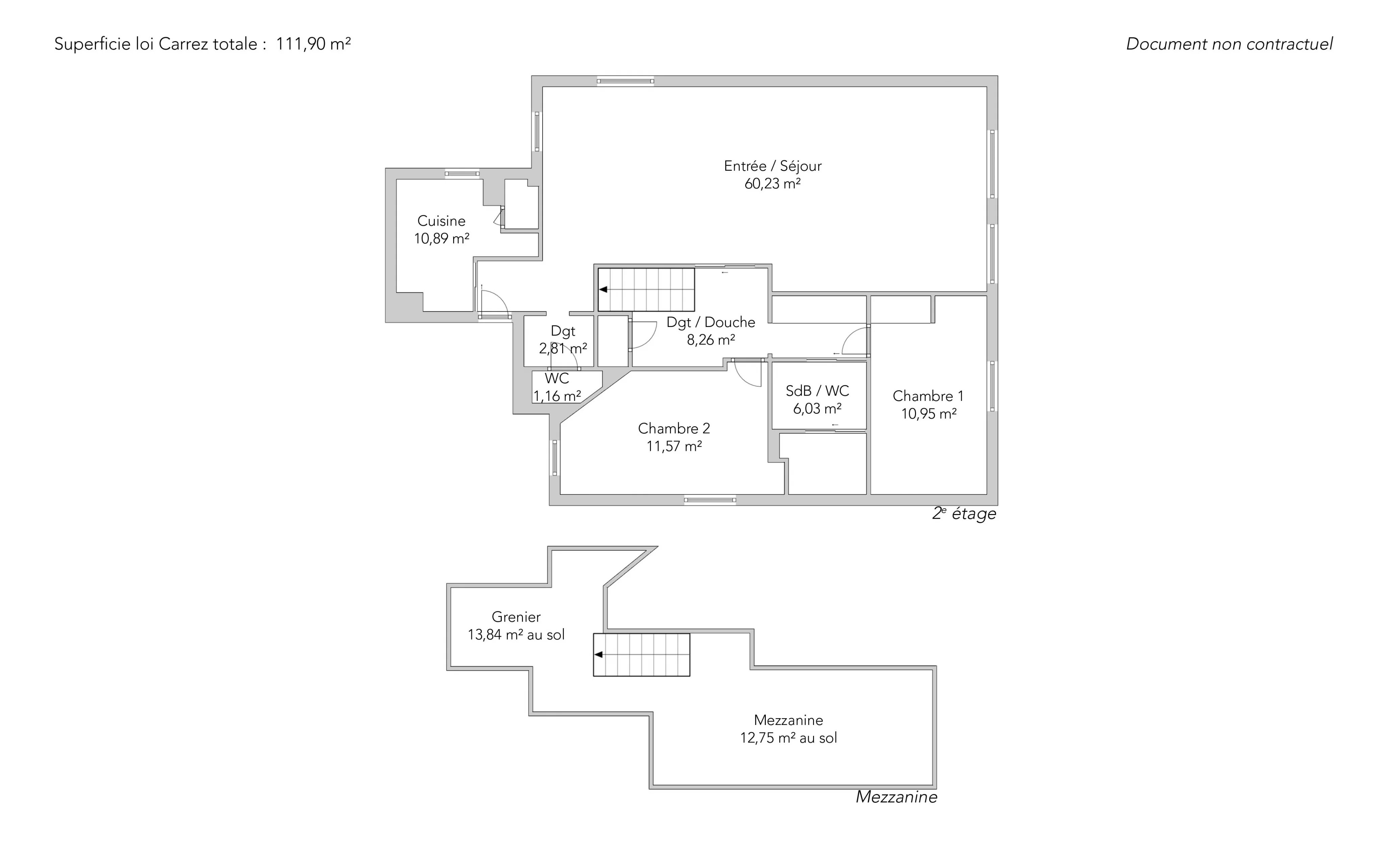
L’appartement, situé au deuxieme et dernier étage, bénéficie d’un palier entièrement privatif, renforçant le sentiment d’intimité. Il développe sur, 153 m2 au sol, et 111,90m² loi Carrez de beaux volumes avec une hauteur sous plafond particulièrement généreuse qui amplifie la sensation d’espace et a permis la création d’une mezzanine dotée elle aussi d’un plafond confortable, offrant un usage agréable au quotidien.
La pièce de vie se déploie comme un vaste espace ouvert, chaleureux, entièrement repensé par un architecte afin d’optimiser les volumes et la circulation. Les matériaux naturels, les couleurs douces et les éléments chinés composent une atmosphère élégante. La cheminée fonctionnelle et les volets intérieurs ajoutent au charme du lieu, tandis que le double vitrage garantit un bon confort acoustique.
La cuisine occupe une pièce séparée. L’appartement comprend une salle de bains partagée, deux chambres bien proportionnées ainsi qu’une mezzanine aménagée en espace nuit. Un espace bureau a été intégré avec intelligence dans le séjour, optimisant encore la fonctionnalité de l’ensemble.
Les annexes renforcent le caractère exceptionnel de ce bien: une très grande cave parfaitement saine et un vaste espace de stationnement privatif pouvant accueillir deux à trois voitures en enfilade, un véritable privilège à Neuilly.
La maison comprend seulement trois appartements, un par étage, les parties communes entièrement rénové par architecte.
L’environnement immédiat est particulièrement attrayant: proximité du bois de Boulogne, du parc Saint-James, d’écoles renommées, de commerces de qualité ainsi que du métro Pont de Neuilly situé à seulement 370 mètres.
- Habitable : 153,50 m²
- 3 pièces
- 2 chambres
- 1 salle de bains
- 1 salle de douche
- Étage 2/2
- Cheminée
- Exposition Sud
- Excellent état
Ce qui nous séduit
- Adresse très recherchée
- Dernier étage
- Calme
On vous en dit plus
Réglementations & éléments financiers
Les informations sur les risques auxquels ce bien est exposé sont disponibles sur le site Géorisques : www.georisques.gouv.fr
| Diagnostics |
|---|
Consommation énergie finale : a - 173 kWh/m²/an.
Montant estimé des dépenses annuelles d’énergie pour un usage standard : entre 2 090,00 € et 2 850,00 € /an (abonnement compris).
Prix moyen des énergies indexées au 01/01/2021.
| Éléments financiers |
|---|
Taxe foncière : 0,00 € /an
Détails de l’intérieur & de l’extérieur
| Pièce | Surface | Détail |
|---|---|---|
| 1x Séjour | 60.23 m² |
Étage : 2ème Plafond : 3m |
| 1x Cuisine | 10.89 m² | Étage : 2ème |
| 1x Chambre | 10.95 m² | Étage : 2ème |
| 1x Chambre | 11.57 m² | Étage : 2ème |
| 1x Salle de bains | 6.03 m² | Étage : 2ème |
| 1x Salle de douche | 8.26 m² | Étage : 2ème |
| 1x Toilettes | 1.16 m² | Étage : 2ème |
| 1x Dégagement | 2.81 m² | Étage : 2ème |
| 1x Mezzanine | Étage : 3ème | |
| 1x Grenier | Étage : 3ème |
Prestations
Bâtiment & Copropriété
| Bâtiment |
|---|
-
Construit en : 1900
-
Type : Pierre
-
Nombre d'étages : 2
-
Niveau de qualité : Luxe
| Copropriété |
|---|
Montant moyen annuel de la quote part de charges courantes : 4 000 €
Procédure en cours : Non
Rencontrez votre agence
Simulateur de financement
Calculez le montant des mensualités de votre prêt immobilier correspondant à l'emprunt que vous souhaitez effectuer.
Prix du bien HAI
1 700 000 €
€
par mois
Vous devez vendre pour acheter ?
Nos consultants immobiliers se tiennent à votre disposition pour réaliser une estimation de la valeur de votre bien. Toutes nos estimations sont offertes.
Je fais estimer mon bienUn lieu de vie à votre image
Junot vous fait visiter les quartiers dans lesquels nos agences vous accueillent, et vous présente les spécificités et bonnes adresses.
Parcourir les quartiers













