Faisons un tour d'horizon
Référence de l’annonce : 1976CHMDEP
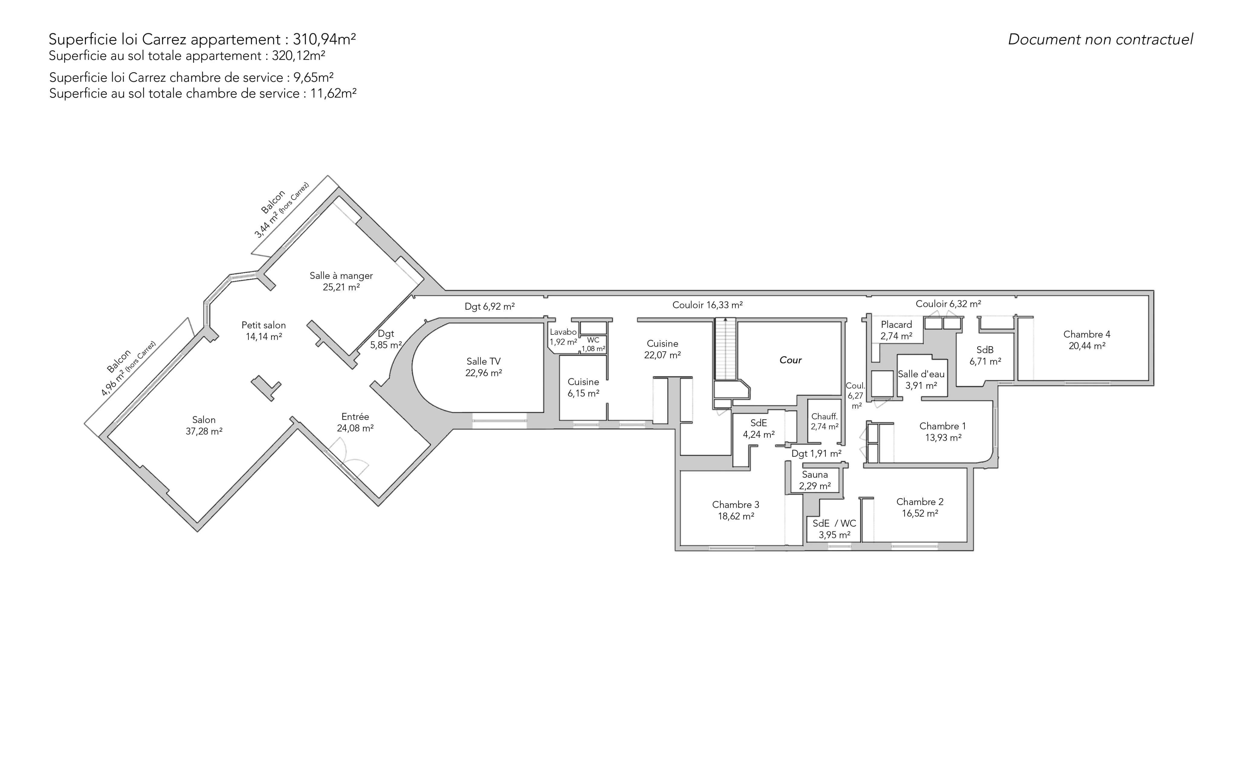
Avenue du Président Wilson, à deux pas de la place du Trocadéro, au cinquième étage par ascenseur d’un superbe immeuble aux parties communes remarquables, cet appartement de réception de 310,94m² loi Carrez incarne l’élégance classique de l’ouest parisien.
Parfaitement au calme et intégralement climatisé, il bénéficie d’un balcon filant qui prolonge les réceptions et offre des vues dégagées exceptionnelles sur la tour Eiffel et le Trocadéro.
Une galerie d’entrée magistrale distribue un vaste double séjour aux volumes impressionnants, sublimé par une belle hauteur sous plafond , un parquet point de Hongrie et des cheminées sculptées. La salle à manger et le boudoir ou salon télévision complètent les espaces de réception.
La cuisine indépendante, entièrement aménagée et équipée, dispose d’un confortable espace dînatoire et répond aux exigences d’un usage quotidien comme de réceptions d’envergure.
L’espace nuit comprend quatre chambres, dont deux suites parentales avec salle de bains, toilettes et dressing. Deux autres salles de bains ou salles de douche complètent l’ensemble. Un espace bien-être avec sauna, attenant à la quatrième chambre, renforce le caractère exclusif du lieu. Cinq toilettes et de nombreux rangements viennent parfaire le confort.
Trois caves et une chambre de service de 9,65m² loi Carrez au septième étage complètent cette propriété rare, située au cœur d’une adresse parmi les plus recherchées.
- Habitable : 320,59 m² Total : 331,64 m²
- 7 pièces
- 4 chambres
- 2 salles de bains
- 2 salles de douche
- Étage 5/6
- Cheminée
- Exposition Sud
- Excellent état
- Meublé
Ce qui nous séduit
- Vue exceptionnelle
- Balcon/Terrasse
- Adresse très recherchée
- Prestations exceptionnelles
- Gardien
- Vue monument historique
- Lumineux
- Ascenseur
- Salle de bien être
- Cave
- Vue dégagée
On vous en dit plus
Réglementations & éléments financiers
Les informations sur les risques auxquels ce bien est exposé sont disponibles sur le site Géorisques : www.georisques.gouv.fr
| Diagnostics |
|---|
Consommation énergie finale : a - 141 kWh/m²/an.
Montant estimé des dépenses annuelles d’énergie pour un usage standard : entre 4 360,00 € et 5 980,00 € /an (abonnement compris).
Prix moyen des énergies indexées au 01/01/2023.
| Éléments financiers |
|---|
Charges : 130,00 €
Montant moyen annuel de la quote part de charges courantes : 6 760 €Détails de l’intérieur & de l’extérieur
| Pièce | Surface | Détail |
|---|---|---|
| 1x Cave | 4.79 m² | Étage : Sous-sol |
| 1x Cave | 5.27 m² | Étage : Sous-sol |
| 1x Cave | 5.31 m² | Étage : Sous-sol |
| 1x Entrée | 24.08 m² | Étage : 5ème |
| 1x Salon | 37.28 m² |
Étage : 5ème Plafond : 3.25m |
| 1x Salon | 14.14 m² | Étage : 5ème |
| 1x Salle à manger | 25.21 m² | Étage : 5ème |
| 1x Dégagement | 6.92 m² | Étage : 5ème |
| 1x Dégagement | 5.85 m² | Étage : 5ème |
| 1x Salle | 22.96 m² | Étage : 5ème |
| 1x Couloir | 16.33 m² | Étage : 5ème |
| 1x Couloir | 6.32 m² | Étage : 5ème |
| 1x Couloir | 6.27 m² | Étage : 5ème |
| 1x Placard | 2.74 m² | Étage : 5ème |
| 1x Placard | 1.83 m² | Étage : 5ème |
| 1x Salle de bains | 6.71 m² | Étage : 5ème |
| 1x Placard | 1.2 m² | Étage : 5ème |
| 1x Chambre | 13.93 m² | Étage : 5ème |
| 1x Placard | 1.01 m² | Étage : 5ème |
| 1x Salle de douche | 3.91 m² | Étage : 5ème |
| 1x Chambre | 16.52 m² | Étage : 5ème |
| 1x Placard | 1.26 m² | Étage : 5ème |
| 1x Salle de bains | 3.95 m² | Étage : 5ème |
| 1x Dégagement | 1.91 m² | Étage : 5ème |
| 1x Chambre | 18.62 m² | Étage : 5ème |
| 1x Chambre | 20.44 m² | Étage : 5ème |
| 1x Placard | 1.41 m² | Étage : 5ème |
| 1x Sauna | 2.29 m² | Étage : 5ème |
| 1x Salle de douche | 4.24 m² | Étage : 5ème |
| 1x Toilettes | 0.61 m² | Étage : 5ème |
| 1x Local technique | 2.74 m² | Étage : 5ème |
| 1x Cuisine | 22.07 m² | Étage : 5ème |
| 1x Placard | 1.22 m² | Étage : 5ème |
| 1x Office | 6.15 m² | Étage : 5ème |
| 1x Placard | 1.24 m² | Étage : 5ème |
| 1x Débarras | 1.92 m² | Étage : 5ème |
| 1x Toilettes | 1.08 m² | Étage : 5ème |
| 1x Balcon | 4.96 m² | Étage : 5ème |
| 1x Balcon | 3.44 m² | Étage : 5ème |
| 1x Chambre de service | 9.65 m² | Étage : 7ème |
Prestations
Bâtiment & Copropriété
| Bâtiment |
|---|
-
Construit en : 1910
-
Nombre d'étages : 6
| Copropriété |
|---|
70 lots d'habitation
Montant moyen annuel de la quote part de charges courantes : 6 760 €
Procédure en cours : Non
Rencontrez votre agence
Simulateur de financement
Calculez le montant des mensualités de votre prêt immobilier correspondant à l'emprunt que vous souhaitez effectuer.
Prix du bien HAI
7 280 000 €
€
par mois
Vous devez vendre pour acheter ?
Nos consultants immobiliers se tiennent à votre disposition pour réaliser une estimation de la valeur de votre bien. Toutes nos estimations sont offertes.
Je fais estimer mon bienUn lieu de vie à votre image
Junot vous fait visiter les quartiers dans lesquels nos agences vous accueillent, et vous présente les spécificités et bonnes adresses.
Parcourir les quartiers




