Faisons un tour d'horizon
Référence de l’annonce : 3547BTLGRA
Au cœur du très recherché XVIᵉ arrondissement, entre la place de l’Étoile et le Trocadéro, à deux pas des Champs-Élysées, des commerces de standing et des transports, cet ensemble bénéficie d’une adresse prestigieuse et internationale.
Au sein d’un remarquable immeuble de style éclectique édifié en 1895, aux parties communes élégantes, ce bien d’exception occupe l’intégralité du premier étage.
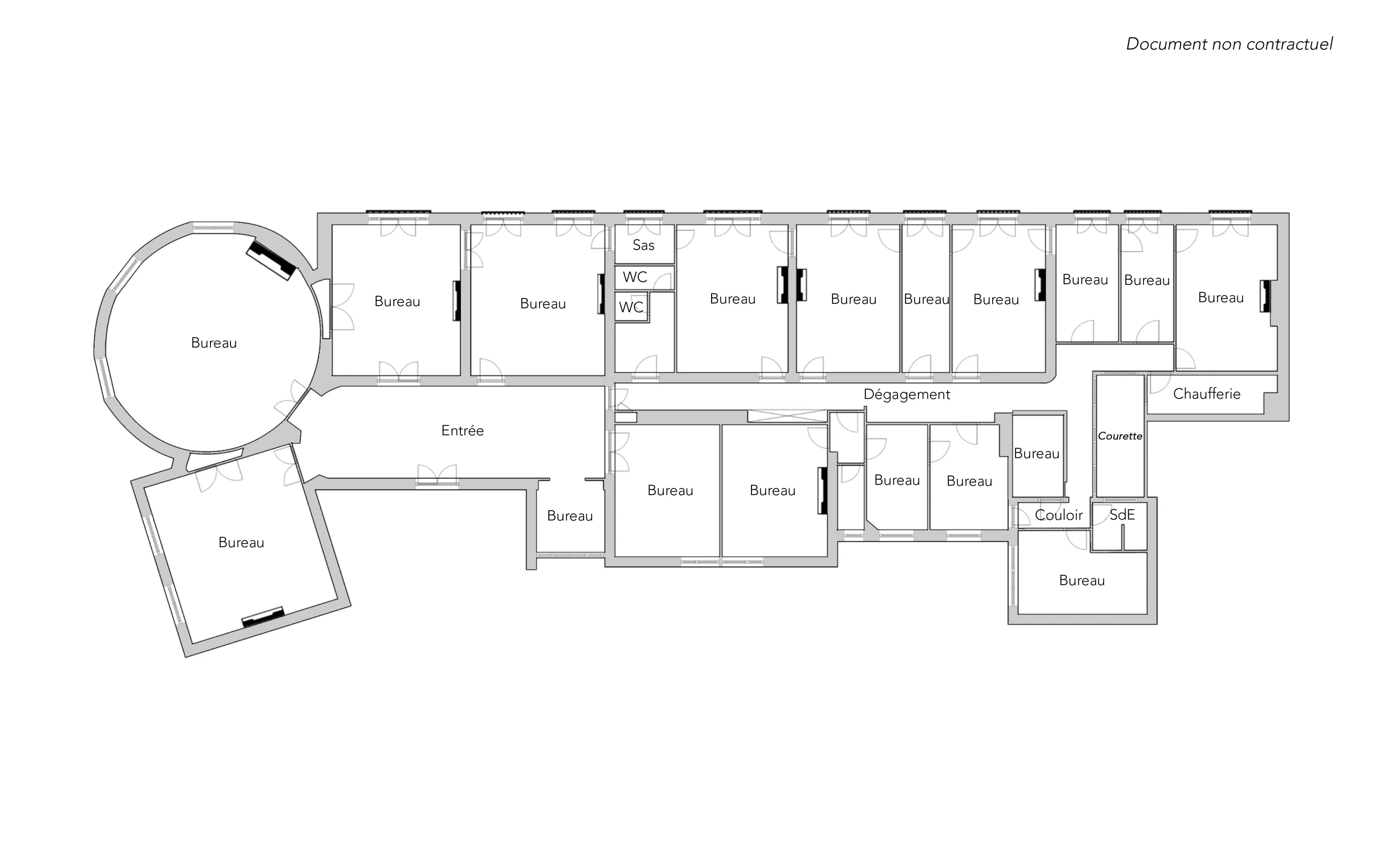
D’une surface de 452,64m² loi Carrez, à usage mixte, il se compose de dix-huit pièces aux volumes remarquables, organisées autour d’une distribution fluide permettant de multiples configurations.
L’ensemble séduit par son calme absolu, sa très belle hauteur sous plafond, ainsi que par la richesse de ses éléments anciens parfaitement conservés : moulures raffinées, proportions nobles et atmosphère d’époque.
Véritable pièce signature, une rotonde spectaculaire de 58m², aujourd’hui aménagée en salle de réunion, offre un espace circulaire rare, baigné de lumière. Elle se prête idéalement à la création d’un salon de réception, d’un espace de représentation ou d’un lieu de vie d’exception.
Ce bien rare conjugue prestige, caractère architectural et potentiel d’aménagement, au sein d’un environnement sécurisé, à proximité immédiate des ambassades et institutions internationales.
Possibilité de créer deux appartements distinct.
- Habitable : 452,64 m² Total : 453,48 m²
- 18 pièces
- 8 chambres
- Étage 1/6
- Cheminée
- Exposition Ouest, Sud
- Bon état
Ce qui nous séduit
- Gardien
- Ascenseur
On vous en dit plus
Réglementations & éléments financiers
Les informations sur les risques auxquels ce bien est exposé sont disponibles sur le site Géorisques : www.georisques.gouv.fr
| Diagnostics |
|---|
Consommation énergie finale : a - 163 kWh/m²/an.
Montant estimé des dépenses annuelles d’énergie pour un usage standard : entre 6 650,00 € et 9 040,00 € /an (abonnement compris).
Prix moyen des énergies indexées au 01/01/2023.
| Éléments financiers |
|---|
Taxe foncière : 9 550,00 € /an
Détails de l’intérieur & de l’extérieur
| Pièce | Surface | Détail |
|---|---|---|
| 1x Entrée | 38.11 m² | Étage : 1er |
| 1x Salle de réunion | 58.23 m² | Étage : 1er |
| 1x Chambre | 34.83 m² | Étage : 1er |
| 1x Chambre | 27.45 m² | Étage : 1er |
| 1x Chambre | 28.73 m² | Étage : 1er |
| 1x Dégagement | 12.25 m² | Étage : 1er |
| 1x Autre | 7.31 m² | Étage : 1er |
| 1x Toilettes | 13.74 m² | Étage : 1er |
| 1x Chambre | 23.34 m² | Étage : 1er |
| 1x Chambre | 21.29 m² | Étage : 1er |
| 1x Autre | 9.09 m² | Étage : 1er |
| 1x Chambre | 19.67 m² | Étage : 1er |
| 1x Autre | 31.03 m² | Étage : 1er |
| 1x Dégagement | 11.79 m² | Étage : 1er |
| 1x Chambre | 10.77 m² | Étage : 1er |
| 1x Chambre | 9.12 m² | Étage : 1er |
| 1x Bureau | 20.73 m² | Étage : 1er |
| 1x Cuisine | 7.28 m² | Étage : 1er |
| 1x Dégagement | 3.98 m² | Étage : 1er |
| 1x Toilettes | 3.25 m² | Étage : 1er |
| 1x Bureau | 14.92 m² | Étage : 1er |
| 1x Dégagement | 3.28 m² | Étage : 1er |
| 1x Toilettes | 2.38 m² | Étage : 1er |
| 1x Bureau | 20.24 m² | Étage : 1er |
| 1x Bureau | 19.83 m² | Étage : 1er |
Prestations
Bâtiment & Copropriété
| Bâtiment |
|---|
-
Construit en : 1895
-
Nombre d'étages : 6
| Copropriété |
|---|
Montant moyen annuel de la quote part de charges courantes : 16 476 €
Procédure en cours : Non
Rencontrez votre agence
Simulateur de financement
Calculez le montant des mensualités de votre prêt immobilier correspondant à l'emprunt que vous souhaitez effectuer.
Prix du bien HAI
7 800 000 €
€
par mois
Vous devez vendre pour acheter ?
Nos consultants immobiliers se tiennent à votre disposition pour réaliser une estimation de la valeur de votre bien. Toutes nos estimations sont offertes.
Je fais estimer mon bienUn lieu de vie à votre image
Junot vous fait visiter les quartiers dans lesquels nos agences vous accueillent, et vous présente les spécificités et bonnes adresses.
Parcourir les quartiers





