Faisons un tour d'horizon
Référence de l’annonce : 5859JASJOU5CH
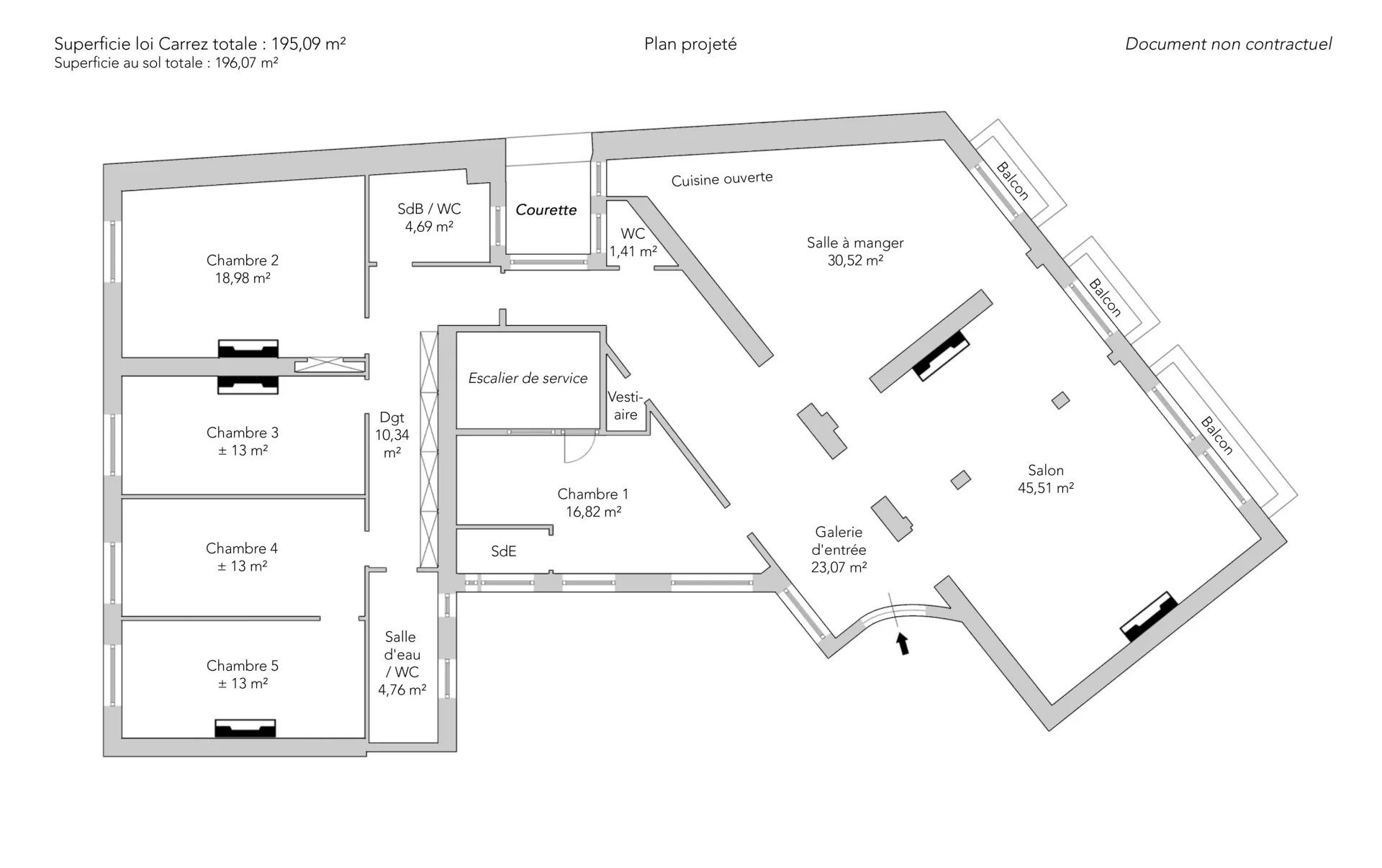
Au deuxième étage avec ascenseur d’un magnifique immeuble de type haussmannien en pierre de taille datant de 1892, somptueux appartement familial et de réception de 195,09m² loi Carrez. Traversant et baigné de lumière, il bénéficie de balcons exposés ouest.
Cet appartement offre tout le charme de l’ancien parisien avec ses beaux volumes, sa hauteur sous plafond de 3,73 mètres, son parquet en point de Hongrie, ses cinq cheminées en marbre d’époque et ses moulures élégantes.
Calme, le plan actuel comprend une galerie d’entrée, une double réception et une vaste cuisine dînatoire. Une triple réception avec cuisine ouverte est envisageable.
Côté nuit, il compte quatre chambres ; une suite parentale avec une grande salle de douche, ainsi que trois autres chambres sur jardin exposées plein est. Une cinquième chambre est possible.
Une salle de bains, une seconde salle de douche et quatre toilettes, dont des toilettes invités, complètent l'ensemble.
L'appartement offre également un vestiaire d’entrée et de nombreux rangements sur mesure.
Les fenêtres en double vitrage assurent un confort optimal.
Ce bien se distingue par une très bonne classification énergétique : DPE D.
Une grande cave carrelée et sécurisée par porte blindée accompagne ce bien.
Une chambre de service de 7,17m² loi Carrez située au cinquième étage de l’immeuble, avec aperçu tour Eiffel et douche, est proposée en supplément.
Bien rare et très recherché dans le quartier, au pied des commerces et des transports.
- Habitable : 195,09 m² Total : 196,07 m²
- 6 pièces
- 5 chambres
- 1 salle de bains
- 2 salles de douche
- Étage 2/6
- Cheminée
- Exposition Est, Ouest
- Bon état
Ce qui nous séduit
- Balcon/Terrasse
- Lumineux
- Calme
- Traversant
- Ascenseur
- Cave
- Vue dégagée
On vous en dit plus
Réglementations & éléments financiers
Les informations sur les risques auxquels ce bien est exposé sont disponibles sur le site Géorisques : www.georisques.gouv.fr
| Diagnostics |
|---|
Consommation énergie finale : a - 222 kWh/m²/an.
Montant estimé des dépenses annuelles d’énergie pour un usage standard : entre 3 800,00 € et 5 160,00 € /an (abonnement compris).
Prix moyen des énergies indexées au 01/01/2021.
| Éléments financiers |
|---|
Taxe foncière : 4 513,00 € /an
Détails de l’intérieur & de l’extérieur
| Pièce | Surface | Détail |
|---|---|---|
| 1x Cave | ||
| 1x Galerie | 23.07 m² |
Étage : 2ème Plafond : 3.73m |
| 1x Salon | 28.87 m² |
Étage : 2ème Plafond : 3.73m |
| 1x Salle à manger | 16.64 m² |
Étage : 2ème Plafond : 3.73m |
| 1x Cuisine équipée | 16.82 m² | Étage : 2ème |
| 1x Chambre | 23.86 m² |
Étage : 2ème Plafond : 3.73m |
| 1x Chambre | 22.55 m² |
Étage : 2ème Plafond : 3.73m |
| 1x Chambre | 18.98 m² |
Étage : 2ème Plafond : 3.73m |
| 1x Chambre | 16.44 m² |
Étage : 2ème Plafond : 3.73m |
| 1x Salle de douche / toilettes | 6.66 m² | Étage : 2ème |
| 1x Salle de bains / toilettes | 4.69 m² | Étage : 2ème |
| 1x Salle de douche / toilettes | 4.76 m² | Étage : 2ème |
| 1x Toilettes | 1.41 m² | Étage : 2ème |
| 1x Dégagement | 10.34 m² | Étage : 2ème |
| 5x Placard | Étage : 2ème | |
| 3x Balcon | Étage : 2ème | |
| 1x Chambre | Étage : 2ème | |
| 1x Chambre de service | 7.17 m² | Étage : 5ème |
Prestations
Bâtiment & Copropriété
| Bâtiment |
|---|
-
Construit en : 1892
-
Nombre d'étages : 6
| Copropriété |
|---|
Montant moyen annuel de la quote part de charges courantes : 5 600 €
Procédure en cours : Non
Rencontrez votre agence
Simulateur de financement
Calculez le montant des mensualités de votre prêt immobilier correspondant à l'emprunt que vous souhaitez effectuer.
Prix du bien HAI
2 800 000 €
€
par mois
Vous devez vendre pour acheter ?
Nos consultants immobiliers se tiennent à votre disposition pour réaliser une estimation de la valeur de votre bien. Toutes nos estimations sont offertes.
Je fais estimer mon bienUn lieu de vie à votre image
Junot vous fait visiter les quartiers dans lesquels nos agences vous accueillent, et vous présente les spécificités et bonnes adresses.
Parcourir les quartiers









