• Exclusivity

House
Suresnes - FECHERAY

1 195 000 €

Fees payable by the seller

Fee schedule Simulate your financing

Do you like this property?

Let's take an overview

Ad reference : 2289NEURIB

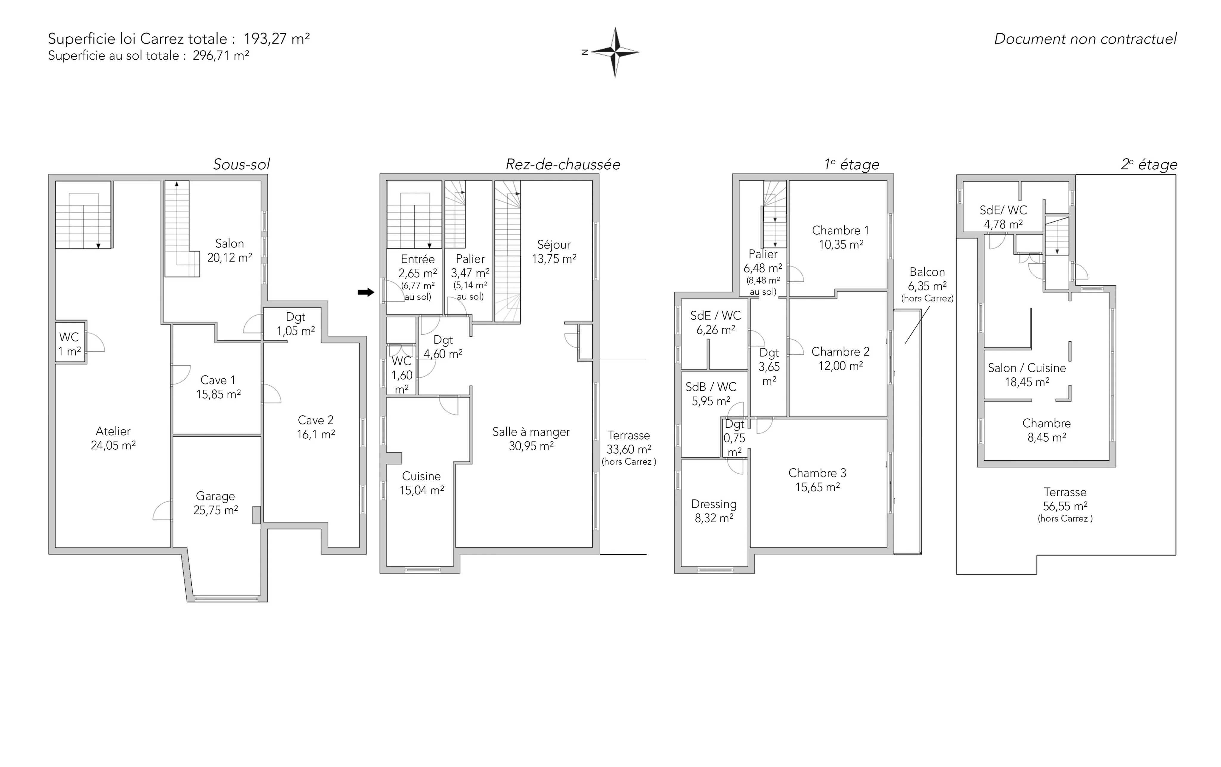
In a quiet, residential street, nestled in greenery and very close to the Fecheray terrace, spacious family home with 193sqm of living space (296m2 in total) on a 297sqm south-facing wooded plot.

The house boasts panoramic views over Paris and western Paris. First floor: entrance hall, guest toilet, 49sqm living space opening directly onto a 36sqm terrace and south-facing garden, and a fitted kitchen (possibility of opening onto the living space).

On the 1st floor, a landing leads to three bedrooms (including a master suite with dressing room, bathroom and toilet) and a shower room with toilet. On the 2nd floor, a 32sqm studio (with possible independent access) comprises a living room with kitchenette, a bedroom, a shower room with toilet, all opening onto a 56m² terrace with open-air views.
A 100sqm basement (partially converted into a living room and office) and a garage complete the property.
Work required.

Close to Mont Valérien train station (6 minutes), T2, shops and schools.

This property stands out for its location, bucolic environment, spaciousness, unobstructed views and potential.

0670792127. iribuot-ac@junot.fr

EXCLUSIVE

  • Habitable : 2 080,34 Sq Ft Total : 3 193,76 Sq Ft
  • 7 rooms
  • 4 bedrooms
  • 1 bathroom
  • 2 shower rooms
  • Orientation South West
  • To renovate

What seduced us

  • Exceptional view
  • Highly sought-after address
  • Luminous
  • Calm

We say more

Regulations & financial information

Information on the risks to which this property is exposed is available on the Géorisques website. : www.georisques.gouv.fr


Diagnostics

Energy performance diagnostic scale (DPE) Greenhouse gas emissions scale (GES)

Final energy consumption : a - 272 kWh/m²/an.
Estimated annual energy costs for standard use: between 5 090,00 € and 6 890,00 € /year (including subscription).
Average energy price indexed to 01/01/2021.


Financial elements

Property tax : 2 404,00 € /an

Interior & exterior details

Room Surface Detail
1x Entrance 28.52 Sq Ft
1x Clearance 49.51 Sq Ft
1x Bathroom 17.22 Sq Ft
1x Landing 37.35 Sq Ft
1x Dining room 333.14 Sq Ft
1x Kitchen 161.89 Sq Ft
1x Stay 148 Sq Ft
1x Landing 69.75 Sq Ft
1x Bedroom 111.41 Sq Ft
1x Clearance 39.29 Sq Ft
1x Bedroom 129.17 Sq Ft
1x Bedroom 168.46 Sq Ft
1x Clearance 8.07 Sq Ft
1x Dressing room 89.56 Sq Ft
1x Bathroom/toilet 64.05 Sq Ft
1x Shower room/toilet 67.38 Sq Ft
1x Studio 289.55 Sq Ft
1x Shower room/toilet 51.45 Sq Ft
1x Living room 216.57 Sq Ft Floor : Mezzanine

Services

☑ Internet
☑ Double glazing
☑ Intercom
☑ Electric roller shutters
☑ Optical fiber
☑ PVC window

Building

Building
  • Built in : 1960
  • Quality level : Normal

Meet your consultant

Simulator financing

Calculate the amount of the monthly payments on your home loan corresponding to the loan you wish to make.

FAI property price

1 195 000 €

This calculation takes into account registration fees of 7%.

per month

This is a simulation, only your bank can give you a precise value. Our consultants are at your disposal to support you.
Be contacted

You may also be interested in these properties

    Do you have to sell to buy?

    Our real estate consultants are at your disposal to estimate the value of your property. All our estimates are free of charge.

    Estimate my property

    A living space to suit you

    Junot takes you on a tour of the neighborhoods in which our agencies welcome you, and presents the specific features and good addresses.

    Explore the neighborhoods
I would like to visit
Do you really want to leave the page?
Do you really want to leave the page?
Do you really want to leave the page?
Do you really want to leave the page?
Do you really want to leave the page?
Do you really want to leave the page?
Do you really want to leave the page?
Do you really want to leave the page?
Do you really want to leave the page?
Do you really want to leave the page?
Do you really want to leave the page?