Faisons un tour d'horizon
Référence de l’annonce : 3370BRECHA
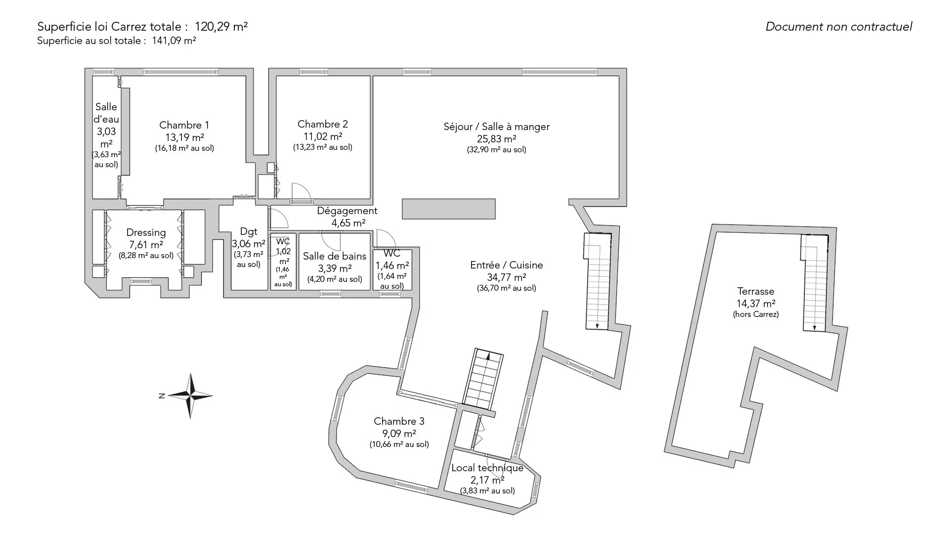
Au dernier étage par ascenseur d'une copropriété bien tenue, un appartement de 120,29m² loi Carrez (et 155,46m² au sol) avec vues panoramiques sur Paris. Il se compose d'un agréable séjour avec verrière offrant une vue imprenable sur le Sacré Coeur, d'une cuisine lumineuse avec accès au rooftop privatif de 15m², d'un salon de télévision pouvant devenir une chambre, de deux chambres dont une en-suite avec salle de douche et dressing, d'une salle de bains séparée et de toilettes invités. Vous serez séduits par son charme atypique, ses vues splendides, son aspect traversant et son bel espace extérieur. Une cave complète cette offre. Gardienne à demeure.
- Habitable : 155,46 m²
- 4 pièces
- 3 chambres
- 1 salle de bains
- 1 salle de douche
- Étage 6/7
- Cheminée
- Exposition Est, Nord, Sud
- Bon état
Ce qui nous séduit
- Vue exceptionnelle
- Balcon/Terrasse
- Dernier étage
- Gardien
- Vue monument historique
- Lumineux
- Calme
- Traversant
- Ascenseur
- Cave
- Vue dégagée
On vous en dit plus
Réglementations & éléments financiers
Les informations sur les risques auxquels ce bien est exposé sont disponibles sur le site Géorisques : www.georisques.gouv.fr
| Diagnostics |
|---|
Consommation énergie finale : A - 52 kWh/m²/an.
Montant estimé des dépenses annuelles d’énergie pour un usage standard : entre 1 150,00 € et 1 570,00 € /an (abonnement compris).
Prix moyen des énergies indexées au 01/01/2021.
| Éléments financiers |
|---|
Taxe foncière : 2 328,00 € /an
Détails de l’intérieur & de l’extérieur
| Pièce | Surface | Détail |
|---|---|---|
| 1x Cave | Étage : Sous-sol | |
| 1x Cuisine | 34.77 m² |
Étage : 7ème Revêtement : Parquet |
| 1x Salon | 25.83 m² |
Étage : 7ème Exposition : Est Revêtement : Parquet |
| 1x Local technique | 2.17 m² |
Étage : 7ème Revêtement : Parquet |
| 1x Chambre | 9.09 m² |
Étage : 7ème Revêtement : Parquet |
| 1x Dégagement | 4.65 m² |
Étage : 7ème Revêtement : Parquet |
| 1x Toilettes | 1.46 m² |
Étage : 7ème Revêtement : Béton |
| 1x Salle de bains | 3.39 m² |
Étage : 7ème Revêtement : Béton |
| 1x Chambre | 11.02 m² |
Étage : 7ème Revêtement : Parquet |
| 1x Dégagement | 3.06 m² |
Étage : 7ème Revêtement : Béton |
| 1x Toilettes | 1.02 m² |
Étage : 7ème Revêtement : Béton |
| 1x Chambre | 13.19 m² |
Étage : 7ème Revêtement : Parquet |
| 1x Salle de douche | 3.03 m² |
Étage : 7ème Revêtement : Béton |
| 1x Dressing | 7.61 m² |
Étage : 7ème Revêtement : Béton |
| 1x Terrasse | 14.37 m² |
Étage : 8ème Revêtement : Parquet |
Prestations
Bâtiment & Copropriété
| Bâtiment |
|---|
-
Construit en : 1856
-
Type : Pierre de taille
-
Nombre d'étages : 7
| Copropriété |
|---|
61 lots d'habitation
Montant moyen annuel de la quote part de charges courantes : 2 980 €
Procédure en cours : Non
Rencontrez votre agence
Simulateur de financement
Calculez le montant des mensualités de votre prêt immobilier correspondant à l'emprunt que vous souhaitez effectuer.
Prix du bien HAI
2 520 000 €
€
par mois
Vous devez vendre pour acheter ?
Nos consultants immobiliers se tiennent à votre disposition pour réaliser une estimation de la valeur de votre bien. Toutes nos estimations sont offertes.
Je fais estimer mon bienUn lieu de vie à votre image
Junot vous fait visiter les quartiers dans lesquels nos agences vous accueillent, et vous présente les spécificités et bonnes adresses.
Parcourir les quartiers











