Faisons un tour d'horizon
Référence de l’annonce : 5711JASVAN
Au sein d’un immeuble Art Déco de 1933 avec gardien, ce somptueux appartement familial de 371,10m² loi Carrez, allie élégance intemporelle et prestations de grand standing. Traversant, calme et exposé ouest, il bénéficie côté salon d'une vue verdoyante.
Une majestueuse galerie d'entrée conduit à une triple réception aux beaux volumes ainsi qu'une double cuisine professionnelle idéale pour recevoir.
L’espace nuit se compose d’une master en suite, de deux suites supplémentaires et d'une quatrième chambre avec salle de bains et toilettes, toutes généreusement dimensionnées et raffinées.
Une chambre de service de 8,75m², une cave ainsi qu’un box viennent compléter ce bien d’exception.
Un cadre rare, où l’élégance de l’architecture Art Déco se mêle au confort moderne.
- Habitable : 371,10 m²
- 6 pièces
- 4 chambres
- 5 salles de bains
- Étage 1/8
- Cheminée
- Exposition Ouest
- Excellent état
Ce qui nous séduit
- Gardien
- Ascenseur
- Cave
On vous en dit plus
Réglementations & éléments financiers
Les informations sur les risques auxquels ce bien est exposé sont disponibles sur le site Géorisques : www.georisques.gouv.fr
| Diagnostics |
|---|
Consommation énergie finale : E - 306 kWh/m²/an.
Montant estimé des dépenses annuelles d’énergie pour un usage standard : entre 9 370,00 € et 12 740,00 € /an (abonnement compris).
Prix moyen des énergies indexées au 01/01/2021.
| Éléments financiers |
|---|
Détails de l’intérieur & de l’extérieur
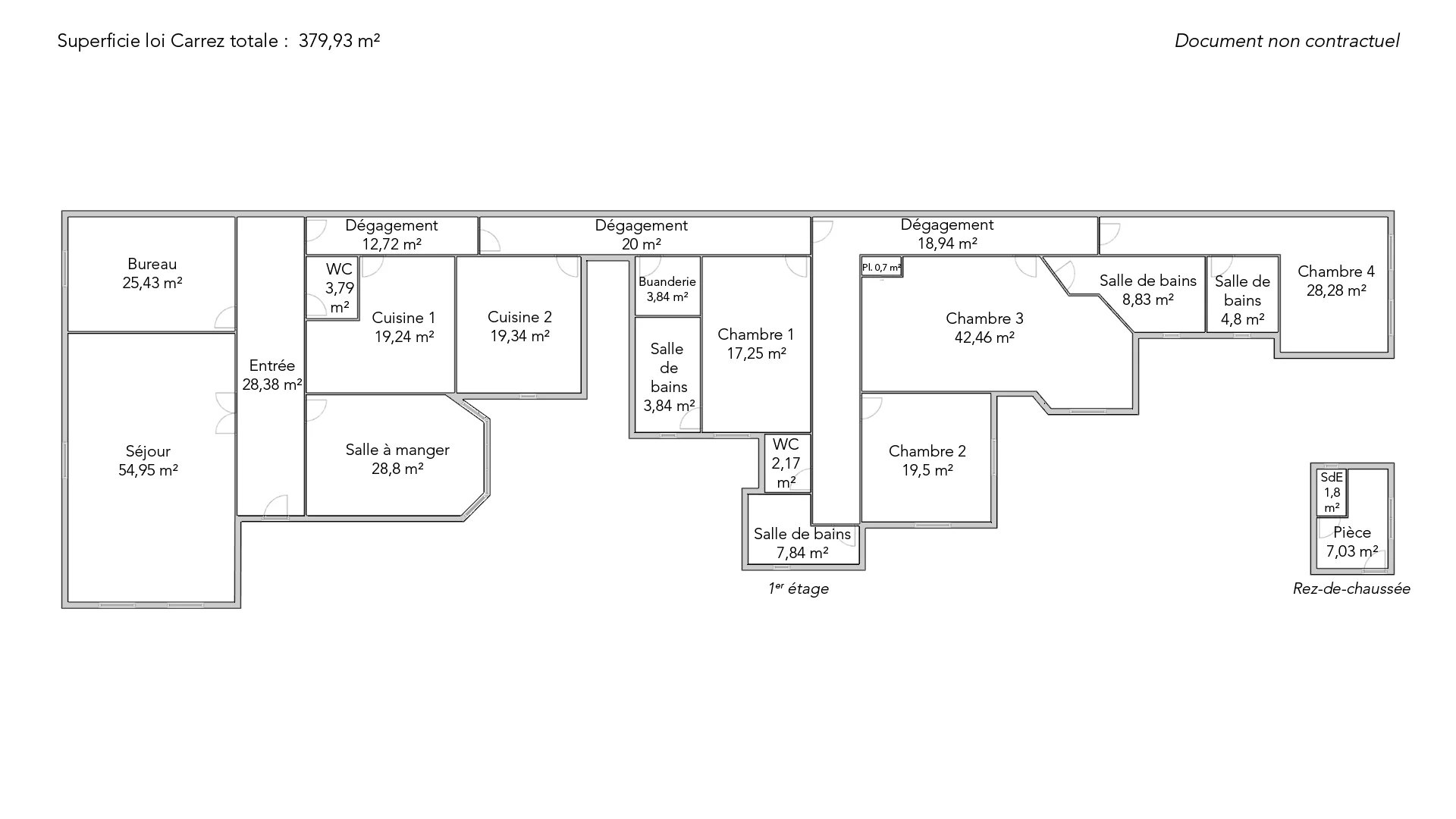
| Pièce | Surface | Détail |
|---|---|---|
| 1x Cave | ||
| 1x Pièce de vie | 7.03 m² | Étage : Rez-de-chaussée |
| 1x Salle de bains | 1.8 m² | Étage : Rez-de-chaussée |
| 1x Entrée | 28.38 m² | Étage : 1er |
| 1x Séjour | 54.95 m² | Étage : 1er |
| 1x Salon | 28.8 m² | Étage : 1er |
| 1x Cuisine | 19.34 m² | Étage : 1er |
| 1x Cuisine | 19.24 m² | Étage : 1er |
| 1x Chambre | 42.46 m² | Étage : 1er |
| 1x Chambre | 28.28 m² | Étage : 1er |
| 1x Chambre | 19.5 m² | Étage : 1er |
| 1x Chambre | 17.25 m² | Étage : 1er |
| 1x Bureau | 25.43 m² | Étage : 1er |
| 1x Dégagement | 20 m² | Étage : 1er |
| 1x Dégagement | 18.94 m² | Étage : 1er |
| 1x Dégagement | 12.72 m² | Étage : 1er |
| 1x Salle de bains | 8.83 m² | Étage : 1er |
| 1x Salle de bains | 7.84 m² | Étage : 1er |
| 1x Salle de bains | 4.8 m² | Étage : 1er |
| 1x Salle de bains | 3.84 m² | Étage : 1er |
| 1x Buanderie | 3.84 m² | Étage : 1er |
| 1x Toilettes | 3.79 m² | Étage : 1er |
| 1x Toilettes | 2.17 m² | Étage : 1er |
| 1x Placard | 0.7 m² | Étage : 1er |
Prestations
Bâtiment & Copropriété
| Bâtiment |
|---|
-
Construit en : 1930
-
Nombre d'étages : 8
-
Niveau de qualité : Luxe
| Copropriété |
|---|
70 lots d'habitation
Montant moyen annuel de la quote part de charges courantes : 24 908 €
Procédure en cours : Non
Rencontrez votre agence
Simulateur de financement
Calculez le montant des mensualités de votre prêt immobilier correspondant à l'emprunt que vous souhaitez effectuer.
Prix du bien HAI
3 999 000 €
€
par mois
Vous devez vendre pour acheter ?
Nos consultants immobiliers se tiennent à votre disposition pour réaliser une estimation de la valeur de votre bien. Toutes nos estimations sont offertes.
Je fais estimer mon bienUn lieu de vie à votre image
Junot vous fait visiter les quartiers dans lesquels nos agences vous accueillent, et vous présente les spécificités et bonnes adresses.
Parcourir les quartiers










