Faisons un tour d'horizon
Référence de l’annonce : 1992VHUSON
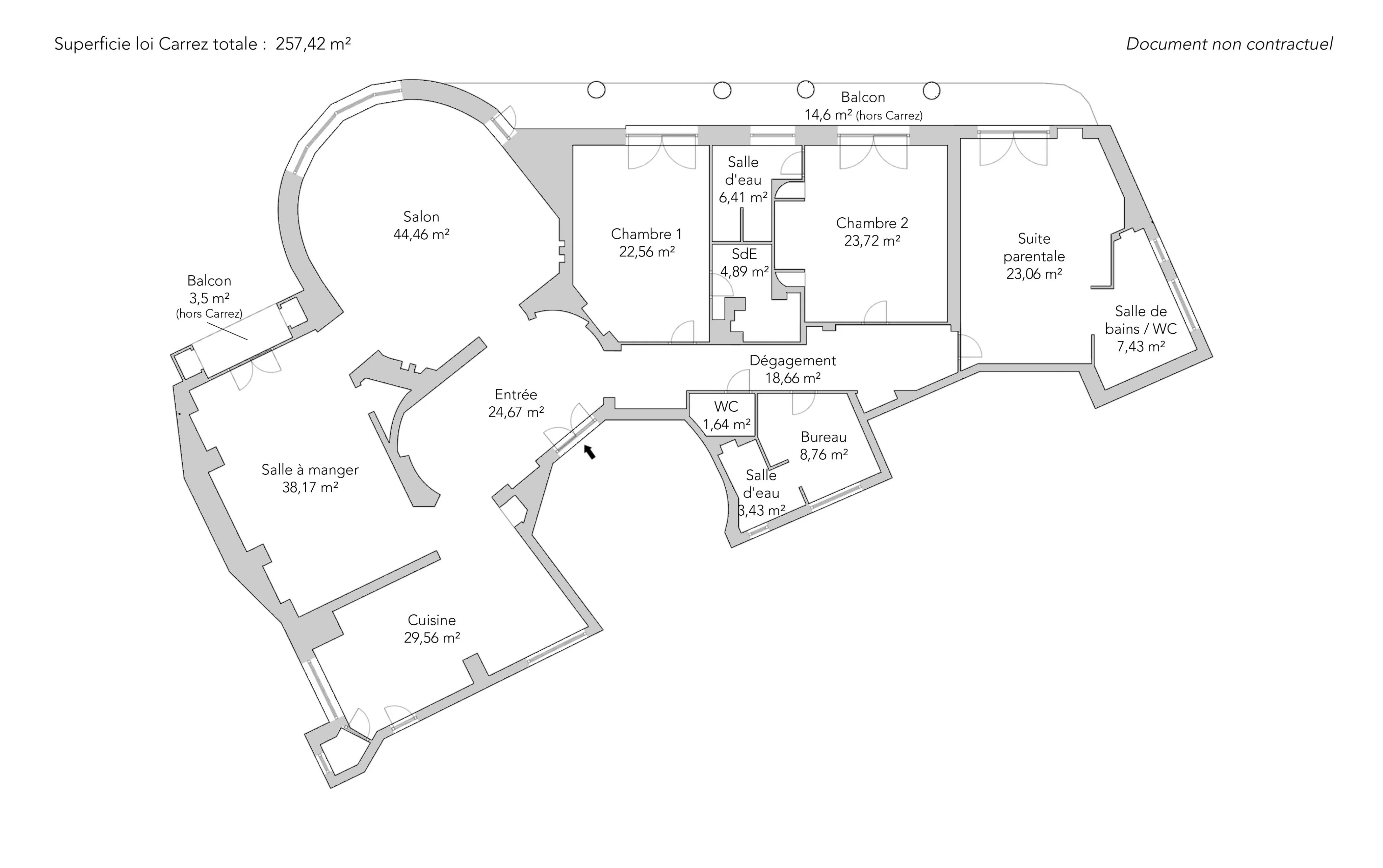
Situé au quatrième étage d’un somptueux immeuble Art déco signé Jean Walter, cet appartement d’exception de 257,42m² loi Carrez est seul à l’étage et desservi par ascenseur. Entièrement rénové par un architecte, il allie charme de l’ancien et prestations contemporaines : hauteur sous plafond de 3,30 m, climatisation et finitions haut de gamme.
L’entrée distribue un vaste salon et une salle à manger en enfilade, offrant de beaux volumes lumineux, ainsi qu’une cuisine dinatoire entièrement équipée. Un balcon filant, accessible depuis le salon et les trois chambres principales, offre une vue dégagée avec un aperçu de la Tour Eiffel.
La partie nuit comprend trois suites avec dressing et salle de douche privative. Un bureau séparé et une seconde salle de douche complètent l’ensemble.
L’immeuble, gardienné et sécurisé, assure confort et tranquillité. Un bien rare aux volumes généreux, idéal pour une famille ou une clientèle en quête d’élégance dans un quartier recherché.
Une grande cave est incluse. Possibilité en supplément (90 000 € TTC) d’un box pour deux voitures.
- Habitable : 257,42 m² Total : 286,52 m²
- 6 pièces
- 3 chambres
- 1 salle de bains
- 3 salles de douche
- Exposition Nord-est
- Bon état
Ce qui nous séduit
- Balcon/Terrasse
- Gardien
- Vue monument historique
- Ascenseur
- Cave
On vous en dit plus
Réglementations & éléments financiers
Les informations sur les risques auxquels ce bien est exposé sont disponibles sur le site Géorisques : www.georisques.gouv.fr
| Diagnostics |
|---|
Consommation énergie finale : a - 169 kWh/m²/an.
Montant estimé des dépenses annuelles d’énergie pour un usage standard : entre 3 540,00 € et 4 840,00 € /an (abonnement compris).
Prix moyen des énergies indexées au 01/01/2023.
| Éléments financiers |
|---|
Taxe foncière : 4 822,00 € /an
Détails de l’intérieur & de l’extérieur
| Pièce | Surface | Détail |
|---|---|---|
| 1x Cave | ||
| 1x Box | ||
| 1x Entrée | 24.67 m² |
Étage : 4ème Plafond : 3.3m |
| 1x Salon | 44.46 m² | Étage : 4ème |
| 1x Salle à manger | 38.17 m² | Étage : 4ème |
| 1x Cuisine | 29.56 m² | Étage : 4ème |
| 1x Dégagement | 18.66 m² | Étage : 4ème |
| 1x Chambre | 22.56 m² | Étage : 4ème |
| 1x Salle de douche | 4.89 m² | Étage : 4ème |
| 1x Chambre | 23.72 m² | Étage : 4ème |
| 1x Salle de douche | 6.41 m² | Étage : 4ème |
| 1x Chambre de maître | 23.06 m² | Étage : 4ème |
| 1x Salle de bains / toilettes | 7.43 m² | Étage : 4ème |
| 1x Bureau | 8.76 m² | Étage : 4ème |
| 1x Salle de douche | 3.43 m² | Étage : 4ème |
| 1x Toilettes | 1.64 m² | Étage : 4ème |
| 1x Balcon | 14.6 m² | Étage : 4ème |
| 1x Balcon | 3.5 m² | Étage : 4ème |
Prestations
Bâtiment & Copropriété
| Bâtiment |
|---|
-
Construit en : 1930
-
Niveau de qualité : Standing
| Copropriété |
|---|
Montant moyen annuel de la quote part de charges courantes : 17 400 €
Procédure en cours : Non
Rencontrez votre agence
Simulateur de financement
Calculez le montant des mensualités de votre prêt immobilier correspondant à l'emprunt que vous souhaitez effectuer.
Prix du bien HAI
4 110 000 €
€
par mois
Vous devez vendre pour acheter ?
Nos consultants immobiliers se tiennent à votre disposition pour réaliser une estimation de la valeur de votre bien. Toutes nos estimations sont offertes.
Je fais estimer mon bienUn lieu de vie à votre image
Junot vous fait visiter les quartiers dans lesquels nos agences vous accueillent, et vous présente les spécificités et bonnes adresses.
Parcourir les quartiers











