Faisons un tour d'horizon
Référence de l’annonce : 1195POIGON
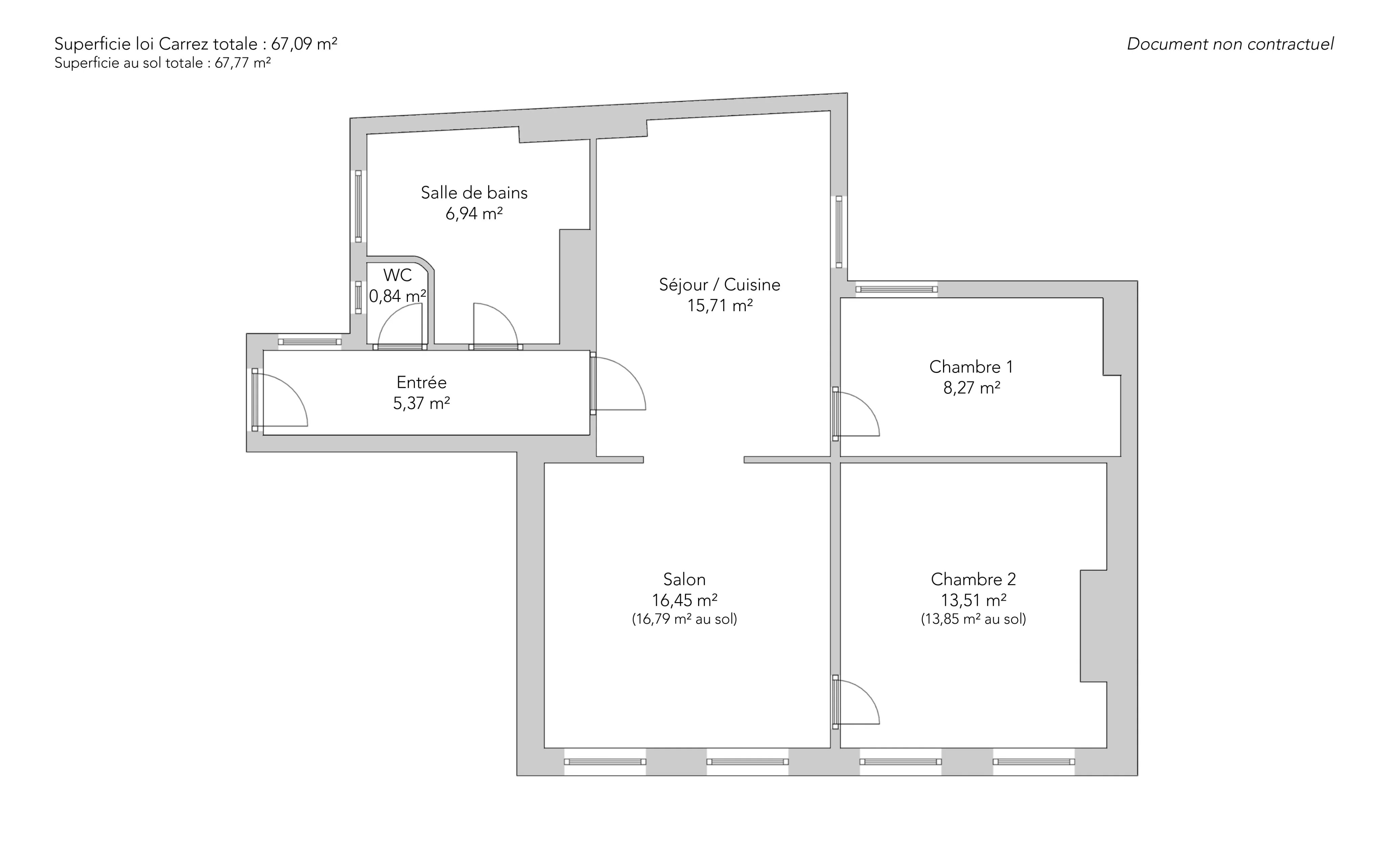
Dans une copropriété bien entretenue, au cinquième étage par escalier, appartement traversant de 67,09m² loi Carrez, en très bon état, comprenant deux chambres.
Il se compose d’une entrée, d’un séjour lumineux avec cuisine ouverte, de deux belles chambres dont une au calme sur cour dégagée, d’une salle de bains avec douche et baignoire et de toilettes séparées.
Le charme de l’ancien a été préservé avec parquet en point de Hongrie, moulures et cheminée.
Baigné de lumière, cet appartement séduira par son plan compact et optimisé, sa luminosité et ses agréables vues sur le ciel.
Une cave complète ce bien.
- Habitable : 67,09 m² Total : 67,77 m²
- 3 pièces
- 2 chambres
- 1 salle de bains
- Étage 5/6
- Exposition Nord-est, Sud-ouest
- Bon état
Ce qui nous séduit
- Traversant
- Cave
On vous en dit plus
Réglementations & éléments financiers
Les informations sur les risques auxquels ce bien est exposé sont disponibles sur le site Géorisques : www.georisques.gouv.fr
| Diagnostics |
|---|
Consommation énergie finale : a - 291 kWh/m²/an.
Montant estimé des dépenses annuelles d’énergie pour un usage standard : entre 1 860,00 € et 2 530,00 € /an (abonnement compris).
Prix moyen des énergies indexées au 01/01/2021.
| Éléments financiers |
|---|
Taxe foncière : 1 110,00 € /an
Détails de l’intérieur & de l’extérieur
| Pièce | Surface | Détail |
|---|---|---|
| 1x Cave |
Étage : -1 Revêtement : Terre battue |
|
| 1x Entrée | 5.37 m² |
Étage : 5ème Exposition : Sud-ouest Revêtement : Parquet Plafond : 2.6m |
| 1x Toilettes | 0.84 m² | Étage : 5ème |
| 1x Salle de bains | 6.94 m² |
Étage : 5ème Exposition : Est |
| 1x Salle à manger/Cuisine | 15.71 m² |
Étage : 5ème Exposition : Ouest Revêtement : Parquet Plafond : 2.6m |
| 1x Séjour | 16.45 m² |
Étage : 5ème Exposition : Nord-est Revêtement : Parquet Plafond : 2.6m |
| 1x Chambre | 8.27 m² |
Étage : 5ème Exposition : Sud-ouest Revêtement : Parquet |
| 1x Chambre | 13.51 m² |
Étage : 5ème Exposition : Nord-est Revêtement : Parquet |
Prestations
Bâtiment & Copropriété
| Bâtiment |
|---|
-
Construit en : 1850
-
Type : Ossature bois
-
Nombre d'étages : 6
-
Niveau de qualité : Normal
| Copropriété |
|---|
25 lots d'habitation
Montant moyen annuel de la quote part de charges courantes : 2 155 €
Procédure en cours : Non
Rencontrez votre agence
Simulateur de financement
Calculez le montant des mensualités de votre prêt immobilier correspondant à l'emprunt que vous souhaitez effectuer.
Prix du bien HAI
760 000 €
€
par mois
Vous devez vendre pour acheter ?
Nos consultants immobiliers se tiennent à votre disposition pour réaliser une estimation de la valeur de votre bien. Toutes nos estimations sont offertes.
Je fais estimer mon bienUn lieu de vie à votre image
Junot vous fait visiter les quartiers dans lesquels nos agences vous accueillent, et vous présente les spécificités et bonnes adresses.
Parcourir les quartiers









