Faisons un tour d'horizon
Référence de l’annonce : 1129POIGON10
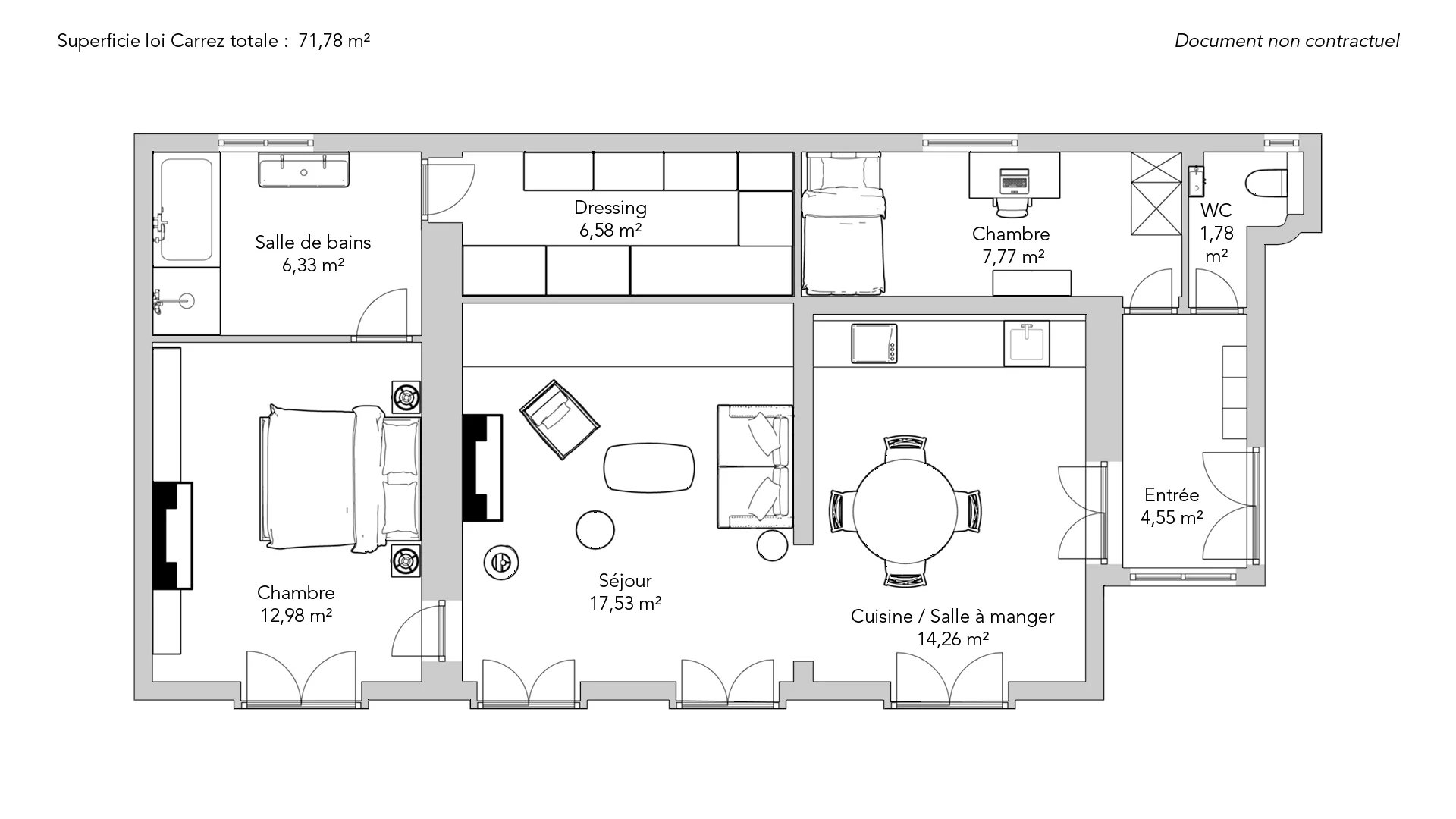
Au calme sur cour dégagée, au deuxième étage d'un immeuble en pierre de taille, appartement refait par architecte d'une surface de 71,78m² loi Carrez avec deux chambres.
Il se compose d’une entrée, d’une élégante cuisine ouverte sur une salle à manger, d’un séjour lumineux avec deux grandes fenêtres, d’une chambre spacieuse, d’un dressing, d'une salle de bains avec douche, d’une chambre enfant et de toilettes séparées.
Rénové avec goût, cet appartement au plan compact offre de magnifiques volumes avec plus de 3,40m de hauteur sous plafond. Le charme de l’ancien a été conservé avec parquet en point de Hongrie, cheminées et moulures. Vues agréables et relativement dégagées sur verdure. Une cave complète ce bien.
- Habitable : 71,78 m² Total : 74,87 m²
- 3 pièces
- 2 chambres
- 1 salle de bains
- Étage 2/6
- Exposition Nord
- Excellent état
Ce qui nous séduit
- Calme
- Cave
On vous en dit plus
Réglementations & éléments financiers
Les informations sur les risques auxquels ce bien est exposé sont disponibles sur le site Géorisques : www.georisques.gouv.fr
| Diagnostics |
|---|
Consommation énergie finale : a - 178 kWh/m²/an.
Logement à consommation énergétique excessive : classe F
Montant estimé des dépenses annuelles d’énergie pour un usage standard : entre 2 230,00 € et 3 060,00 € /an (abonnement compris).
Prix moyen des énergies indexées au 01/01/2021.
| Éléments financiers |
|---|
Taxe foncière : 1 428,00 € /an
Détails de l’intérieur & de l’extérieur
| Pièce | Surface | Détail |
|---|---|---|
| 1x Cave |
Étage : Sous-sol Revêtement : Terre battue |
|
| 1x Toilettes | 1.78 m² |
Étage : 2ème Revêtement : Béton |
| 1x Salle à manger/Cuisine | 14.26 m² |
Étage : 2ème Revêtement : Parquet |
| 1x Chambre | 12.98 m² |
Étage : 2ème Exposition : Nord Revêtement : Parquet |
| 1x Salle de bains | 6.33 m² |
Étage : 2ème Exposition : Sud Revêtement : Carrelage |
| 1x Dressing | 6.58 m² |
Étage : 2ème Revêtement : Moquette |
| 1x Entrée | 4.55 m² |
Étage : 2ème Exposition : Nord Revêtement : Parquet Plafond : 3.4m |
| 1x Chambre | 7.77 m² |
Étage : 2ème Exposition : Sud Revêtement : Lino |
| 1x Salon | 17.53 m² |
Étage : 2ème Exposition : Nord Revêtement : Parquet Plafond : 3.4m |
Prestations
Bâtiment & Copropriété
| Bâtiment |
|---|
-
Construit en : 1880
-
Type : Pierre de taille
-
Nombre d'étages : 6
| Copropriété |
|---|
33 lots d'habitation
Montant moyen annuel de la quote part de charges courantes : 1 851 €
Procédure en cours : Non
Rencontrez votre agence
Simulateur de financement
Calculez le montant des mensualités de votre prêt immobilier correspondant à l'emprunt que vous souhaitez effectuer.
Prix du bien HAI
895 000 €
€
par mois
Vous devez vendre pour acheter ?
Nos consultants immobiliers se tiennent à votre disposition pour réaliser une estimation de la valeur de votre bien. Toutes nos estimations sont offertes.
Je fais estimer mon bienUn lieu de vie à votre image
Junot vous fait visiter les quartiers dans lesquels nos agences vous accueillent, et vous présente les spécificités et bonnes adresses.
Parcourir les quartiers











