Faisons un tour d'horizon
Référence de l’annonce : 3373STGBAS
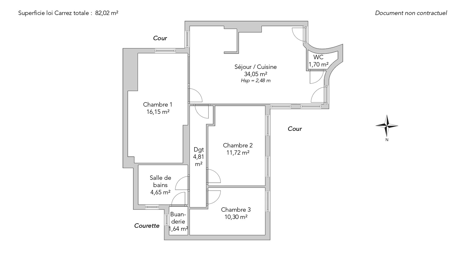
Situé au quatrième étage par escalier d’un immeuble en pierre de taille récemment rénové, cet appartement lumineux et chaleureux de 85,02m² loi Carrez séduit par son charme de l’ancien et son agencement optimisé.
L’entrée mène à un vaste séjour de plus de 30m², sublimé par des poutres apparentes et de beaux volumes, avec une cuisine ouverte, aménagée et équipée.
L’espace nuit comprend trois chambres, dont une suite parentale avec un espace bureau attenant, idéal pour le télétravail. Les deux autres chambres, bien séparées de l’espace de vie, offrent calme et intimité, et partagent une salle de bains.
L’ensemble de l’appartement donne sur cour, garantissant une tranquillité rare en plein cœur d’un quartier dynamique, à deux pas de la rue Cadet, de ses commerces, restaurants, cafés et des transports en commun.
Un local vélo est également à disposition dans l’immeuble.
- Habitable : 85,02 m² Total : 85,38 m²
- 4 pièces
- 3 chambres
- 1 salle de bains
- Étage 4/6
- Exposition Ouest
- Bon état
Ce qui nous séduit
- Calme
- Traversant
On vous en dit plus
Réglementations & éléments financiers
Les informations sur les risques auxquels ce bien est exposé sont disponibles sur le site Géorisques : www.georisques.gouv.fr
| Diagnostics |
|---|
Consommation énergie finale : C - 172 kWh/m²/an.
Montant estimé des dépenses annuelles d’énergie pour un usage standard : entre 1 410,00 € et 1 920,00 € /an (abonnement compris).
Prix moyen des énergies indexées au 01/01/2023.
| Éléments financiers |
|---|
Taxe foncière : 1 425,00 € /an
Détails de l’intérieur & de l’extérieur
| Pièce | Surface | Détail |
|---|---|---|
| 1x Séjour/cuisine | 34.05 m² |
Étage : 4ème Exposition : Sud Revêtement : Parquet |
| 1x Chambre | 16.15 m² |
Étage : 4ème Exposition : Nord Revêtement : Parquet |
| 1x Couloir | 4.81 m² |
Étage : 4ème Revêtement : Parquet |
| 1x Chambre | 11.72 m² |
Étage : 4ème Exposition : Est Revêtement : Parquet |
| 1x Chambre | 10.3 m² |
Étage : 4ème Exposition : Est Revêtement : Parquet |
| 1x Salle de bains | 4.65 m² |
Étage : 4ème Exposition : Sud Revêtement : Carrelage |
| 1x Toilettes | 1.7 m² |
Étage : 4ème Revêtement : Carrelage |
| 1x Buanderie | 1.64 m² |
Étage : 4ème Exposition : Ouest Revêtement : Carrelage |
Prestations
Bâtiment & Copropriété
| Bâtiment |
|---|
-
Construit en : 1850
-
Nombre d'étages : 6
| Copropriété |
|---|
45 lots d'habitation
Montant moyen annuel de la quote part de charges courantes : 2 112 €
Procédure en cours : Non
Rencontrez votre agence
Simulateur de financement
Calculez le montant des mensualités de votre prêt immobilier correspondant à l'emprunt que vous souhaitez effectuer.
Prix du bien HAI
930 000 €
€
par mois
Vous devez vendre pour acheter ?
Nos consultants immobiliers se tiennent à votre disposition pour réaliser une estimation de la valeur de votre bien. Toutes nos estimations sont offertes.
Je fais estimer mon bienUn lieu de vie à votre image
Junot vous fait visiter les quartiers dans lesquels nos agences vous accueillent, et vous présente les spécificités et bonnes adresses.
Parcourir les quartiers











