Faisons un tour d'horizon
Référence de l’annonce : 3460BRECHAU/2903MON08
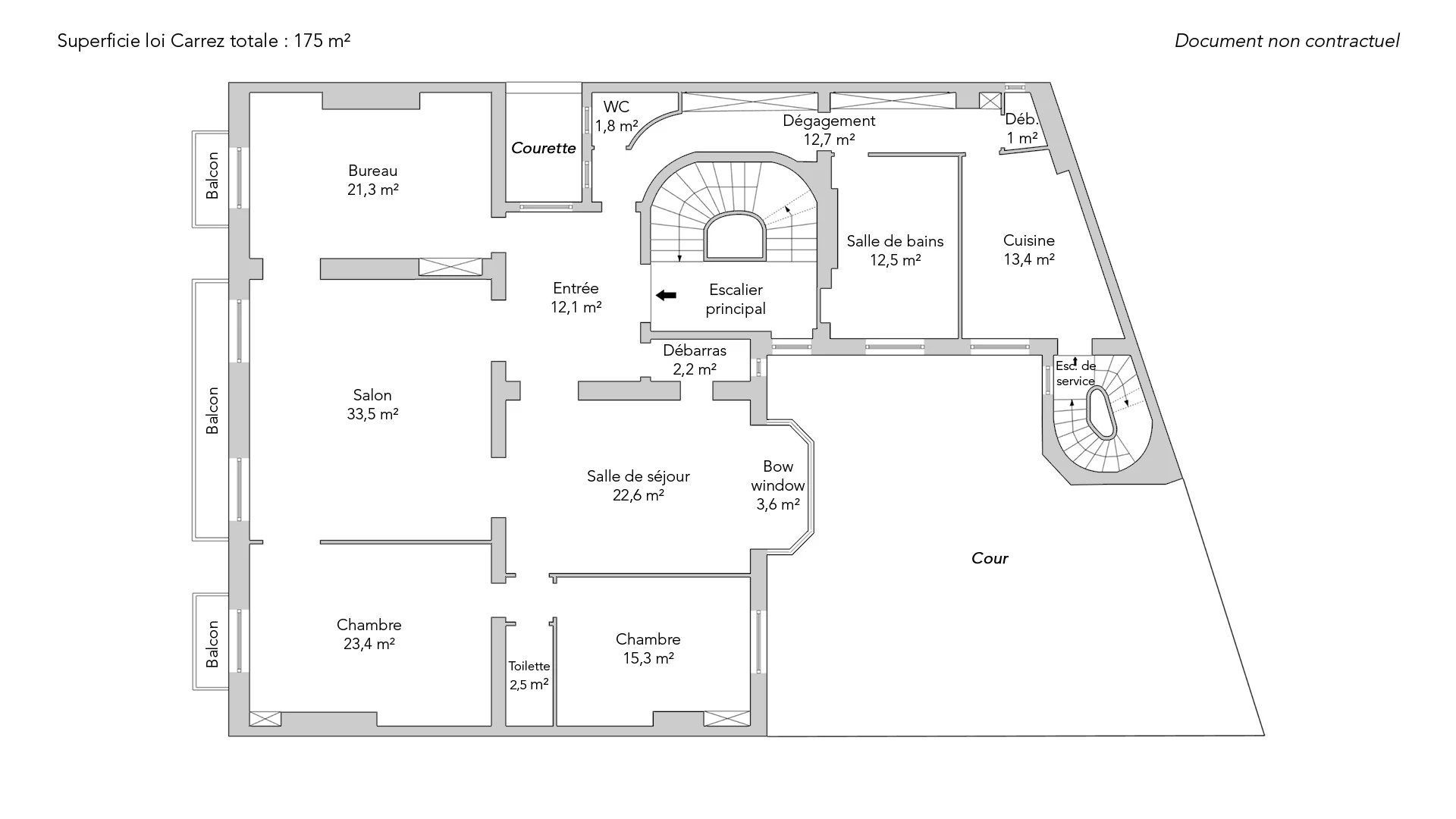
Au cœur du quartier de l'Europe - rue de Saint Petersbourg, aux lisières du 8ème, 9ème et 17ème arrondissements cet appartement à rénover avec un beau potentiel se situe au quatrième étage par ascenseur d'un bel immeuble ancien avec gardienne. À rénover, ce bien familial de 173,07m² loi Carrez (176,26m² au sol + 4,85m² de balcons) bénéficie de beaux volumes (3,1m de hauteur sous plafond) et d'un plan modulable offrant plusieurs configurations.
Seul à l'étage et traversant, il se compose de : entrée, double séjour sur rue avec cheminée donnant sur balcon filant, grande chambre, salle à manger avec bow-window, débarras, 2 chambres, salle de douche, toilette séparé, dégagement avec rangements desservant salle de bains, cuisine séparée. Possibilité quatre/cinq chambres. Parquet moulures cheminées. Une cave en sous-sol complète ce bien.
- Habitable : 176,26 m²
- 6 pièces
- 4 chambres
- 1 salle de bains
- 1 salle de douche
- Étage 4/6
- Cheminée
- Exposition Est, Ouest
- À rénover
Ce qui nous séduit
- Balcon/Terrasse
- Gardien
- Traversant
- Ascenseur
- Cave
On vous en dit plus
Réglementations & éléments financiers
Les informations sur les risques auxquels ce bien est exposé sont disponibles sur le site Géorisques : www.georisques.gouv.fr
| Diagnostics |
|---|
Consommation énergie finale : E - 256 kWh/m²/an.
Montant estimé des dépenses annuelles d’énergie pour un usage standard : entre 4 150,00 € et 5 670,00 € /an (abonnement compris).
Prix moyen des énergies indexées au 01/01/2023.
| Éléments financiers |
|---|
Taxe foncière : 2 889,00 € /an
Détails de l’intérieur & de l’extérieur
| Pièce | Surface | Détail |
|---|---|---|
| 1x Cave | Étage : Sous-sol | |
| 1x Cuisine | 12.84 m² | Étage : 4ème |
| 1x Placard | 0.88 m² |
Étage : 4ème Plafond : 3.1m |
| 1x Chambre | 20.92 m² |
Étage : 4ème Revêtement : Parquet Plafond : 3.1m |
| 1x Séjour | 34.1 m² |
Étage : 4ème Revêtement : Parquet Plafond : 3.1m |
| 1x Chambre | 22.9 m² |
Étage : 4ème Revêtement : Parquet Plafond : 3.1m |
| 1x Salle de douche | 2.48 m² |
Étage : 4ème Plafond : 3.1m |
| 1x Dégagement | 1.3 m² |
Étage : 4ème Plafond : 3.1m |
| 1x Chambre | 14.3 m² |
Étage : 4ème Revêtement : Parquet Plafond : 3.1m |
| 1x Chambre | 25.65 m² |
Étage : 4ème Revêtement : Parquet Plafond : 3.1m |
| 3x Dressing | 2 m² |
Étage : 4ème Plafond : 3.1m |
| 1x Entrée | 12.6 m² |
Étage : 4ème Revêtement : Parquet Plafond : 3.1m |
| 1x Dégagement | 12.2 m² |
Étage : 4ème Revêtement : Parquet Plafond : 3.1m |
| 1x Toilettes | 1.85 m² |
Étage : 4ème Plafond : 3.1m |
| 1x Salle de bains | 12.24 m² |
Étage : 4ème Plafond : 3.1m |
| 1x Balcon | 4.85 m² |
Étage : 4ème Exposition : Sud-est |
Prestations
Bâtiment & Copropriété
| Bâtiment |
|---|
-
Construit en : 1910
-
Type : Pierre
-
Nombre d'étages : 6
-
Niveau de qualité : Standing
| Copropriété |
|---|
32 lots d'habitation
Montant moyen annuel de la quote part de charges courantes : 7 056 €
Procédure en cours : Non
Rencontrez votre agence
Simulateur de financement
Calculez le montant des mensualités de votre prêt immobilier correspondant à l'emprunt que vous souhaitez effectuer.
Prix du bien HAI
1 895 000 €
€
par mois
Vous devez vendre pour acheter ?
Nos consultants immobiliers se tiennent à votre disposition pour réaliser une estimation de la valeur de votre bien. Toutes nos estimations sont offertes.
Je fais estimer mon bienUn lieu de vie à votre image
Junot vous fait visiter les quartiers dans lesquels nos agences vous accueillent, et vous présente les spécificités et bonnes adresses.
Parcourir les quartiers











