Faisons un tour d'horizon
Référence de l’annonce : 5760JUNDEL
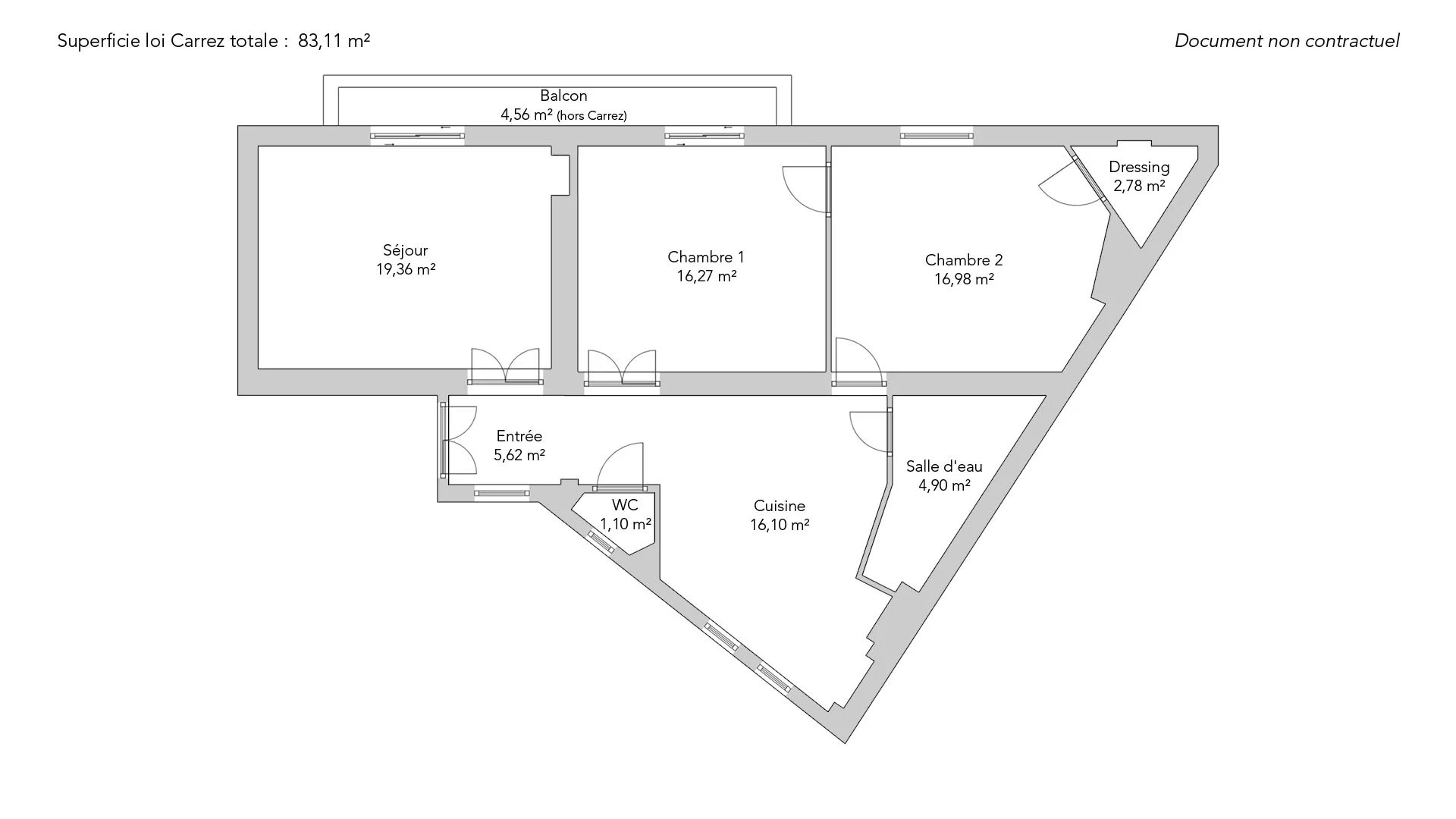
Au deuxième étage par ascenseur d'un bel immeuble de standing, superbe appartement familial de 83,11m² loi Carrez (84,37m² au sol), parfaitement rénové et bénéficiant d'un balcon donnant sur une charmante cour fleurie.
Conçu sans perte de place il comprend une cuisine dinatoire équipée, un séjour donnant sur un agréable balcon, deux chambres dont une avec dressing, une salle de douche, des toilettes séparées.
Au sein d'un environnement calme, ce bien bénéficie de beaux volumes et d'un emplacement idéal au pied de l'avenue Junot.
Une cave complète ainsi qu'un local à vélo complète ce bien.
EXCLUSIVITÉ.
- Habitable : 83,11 m² Total : 84,37 m²
- 4 pièces
- 2 chambres
- 1 salle de douche
- Étage 2/6
- Cheminée
- Excellent état
Ce qui nous séduit
- Balcon/Terrasse
- Adresse très recherchée
- Ascenseur
- Cave
On vous en dit plus
Réglementations & éléments financiers
Les informations sur les risques auxquels ce bien est exposé sont disponibles sur le site Géorisques : www.georisques.gouv.fr
| Diagnostics |
|---|
Consommation énergie finale : D - 235.3 kWh/m²/an.
Montant estimé des dépenses annuelles d’énergie pour un usage standard : entre 1 850,00 € et 2 520,00 € /an (abonnement compris).
Prix moyen des énergies indexées au 01/01/2021.
| Éléments financiers |
|---|
Taxe foncière : 1 400,00 € /an
Détails de l’intérieur & de l’extérieur
| Pièce | Surface | Détail |
|---|---|---|
| 1x Cave | ||
| 1x Entrée | 5.62 m² | Étage : 2ème |
| 1x Cuisine | 16.1 m² | Étage : 2ème |
| 1x Salle de douche | 4.9 m² | Étage : 2ème |
| 1x Séjour | 19.36 m² | Étage : 2ème |
| 1x Chambre | 16.27 m² | Étage : 2ème |
| 1x Chambre | 16.98 m² | Étage : 2ème |
| 1x Dressing | 2.78 m² | Étage : 2ème |
| 1x Toilettes | 1.1 m² | Étage : 2ème |
| 1x Balcon | 4.56 m² | Étage : 2ème |
Prestations
Bâtiment & Copropriété
| Bâtiment |
|---|
-
Construit en : 1912
-
Nombre d'étages : 6
| Copropriété |
|---|
Montant moyen annuel de la quote part de charges courantes : 2 592 €
Procédure en cours : Non
Rencontrez votre agence
Simulateur de financement
Calculez le montant des mensualités de votre prêt immobilier correspondant à l'emprunt que vous souhaitez effectuer.
Prix du bien HAI
1 050 000 €
€
par mois
Vous devez vendre pour acheter ?
Nos consultants immobiliers se tiennent à votre disposition pour réaliser une estimation de la valeur de votre bien. Toutes nos estimations sont offertes.
Je fais estimer mon bienUn lieu de vie à votre image
Junot vous fait visiter les quartiers dans lesquels nos agences vous accueillent, et vous présente les spécificités et bonnes adresses.
Parcourir les quartiers










