Faisons un tour d'horizon
Référence de l’annonce :
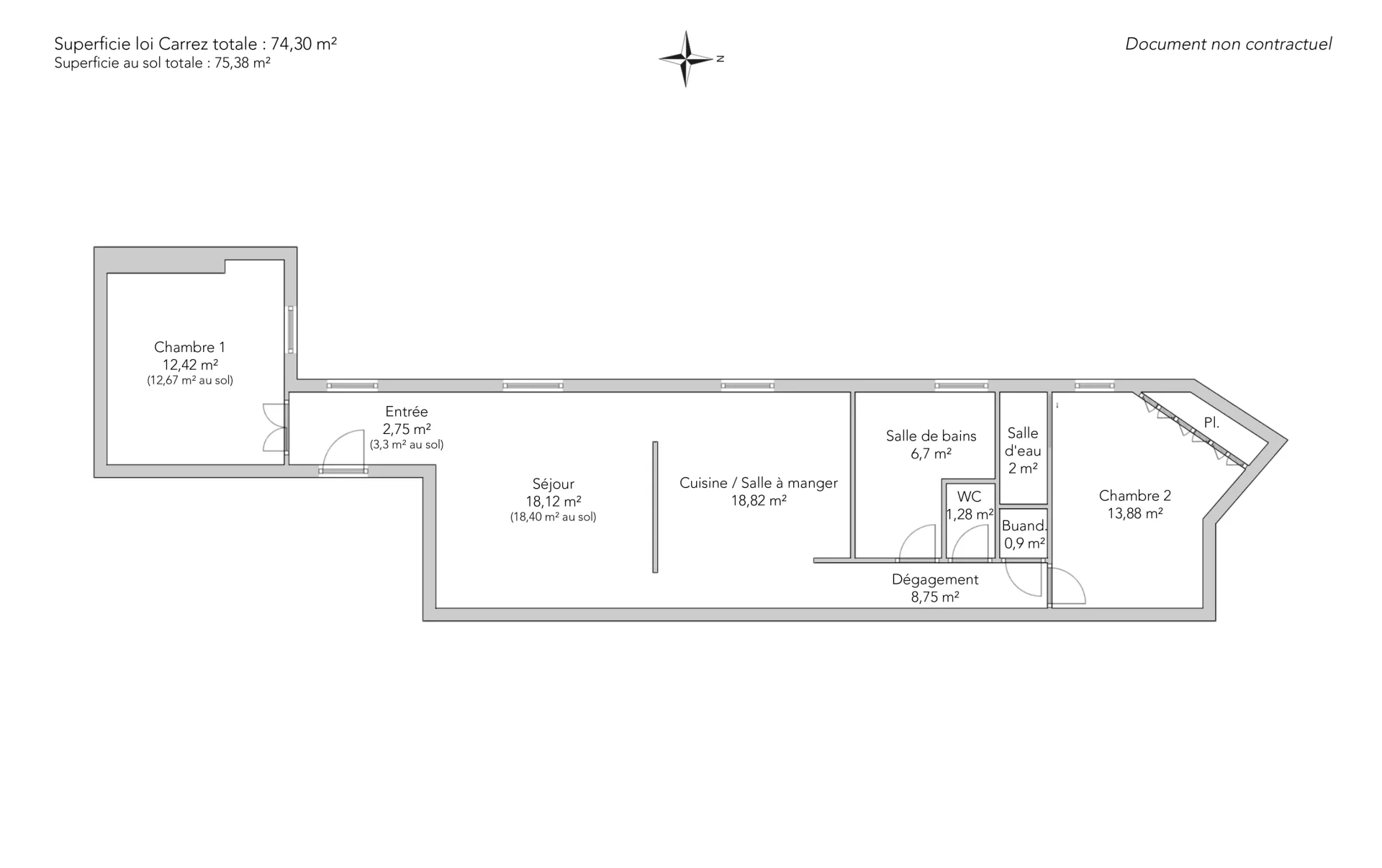
Au cinquième et dernier étage par ascenseur d'un élégant immeuble haussmannien en pierre de taille, ce lumineux appartement de 76,17 m² loi Carrez entièrement rénové vous offre un cadre de vie d'exception, au calme d'une jolie cour.
Entièrement repensé et restructuré en février 2024, il a été réalisé avec des matériaux haut de gamme soigneusement sélectionnés — parquet, menuiseries sur mesure, robinetterie de qualité — pour allier esthétisme et durabilité.
Le bien se compose d'un vaste séjour exposé plein ouest offrant de beaux volumes, d'une cuisine semi-ouverte avec coin repas entièrement aménagé sur mesure, de deux chambres dont une avec sa propre salle de douche, d'une salle de bain, de toilettes séparées et d'un placard buanderie. Une cave complète ce bien.
EXCLUSIVITÉ
- Habitable : 74,30 m² Total : 75,38 m²
- 4 pièces
- 2 chambres
- 1 salle de bains
- 1 salle de douche
- Étage 5/6
- Exposition Ouest
- Excellent état
Ce qui nous séduit
- Lumineux
- Calme
- Ascenseur
- Cave
On vous en dit plus
Réglementations & éléments financiers
Les informations sur les risques auxquels ce bien est exposé sont disponibles sur le site Géorisques : www.georisques.gouv.fr
| Diagnostics |
|---|
| Éléments financiers |
|---|
Taxe foncière : 1 227,00 € /an
Détails de l’intérieur & de l’extérieur
| Pièce | Surface | Détail |
|---|---|---|
| 1x Entrée | 2.75 m² | |
| 1x Séjour | 18.12 m² | |
| 1x Cuisine | 13.82 m² | |
| 1x Salle de bains | 5.7 m² | |
| 1x Toilettes | 1.28 m² | |
| 1x Chambre | 12.42 m² | |
| 1x Chambre | 13.56 m² | |
| 1x Buanderie | 0.9 m² | |
| 1x Salle de douche | 2 m² | |
| 1x Dégagement | 3.75 m² | |
| 1x Cave |
Prestations
Bâtiment
| Bâtiment |
|---|
-
Construit en : 1890
-
Type : Pierre de taille
-
Nombre d'étages : 6
Rencontrez votre agence
Simulateur de financement
Calculez le montant des mensualités de votre prêt immobilier correspondant à l'emprunt que vous souhaitez effectuer.
Prix du bien HAI
1 050 000 €
€
par mois
Vous devez vendre pour acheter ?
Nos consultants immobiliers se tiennent à votre disposition pour réaliser une estimation de la valeur de votre bien. Toutes nos estimations sont offertes.
Je fais estimer mon bienUn lieu de vie à votre image
Junot vous fait visiter les quartiers dans lesquels nos agences vous accueillent, et vous présente les spécificités et bonnes adresses.
Parcourir les quartiers










