Faisons un tour d'horizon
Référence de l’annonce : 3454STGRAT
Idéalement situé dans le haut 9ème, tout proche du square Berlioz.
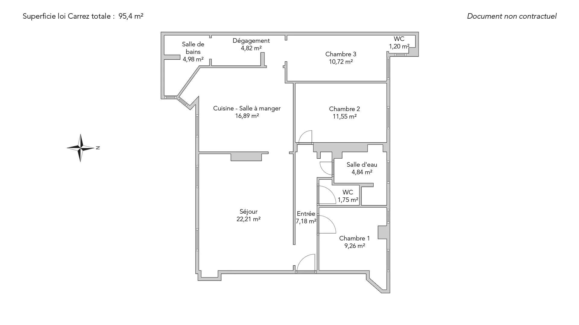
Superbe appartement entièrement rénové de 95,40m² loi Carrez au deuxième étage par escalier.
Il comprend une entrée, un spacieux double séjour, une cuisine ouverte sur la salle à manger, trois belles chambres dont une suite parentale avec salle de bains, dressing et toilettes, une salle de douche et des toilettes séparées.
Au calme, ce bien offre de très jolies prestations ainsi que de beaux volumes.
Une cave complète ce bien.
- Habitable : 95,47 m²
- 6 pièces
- 3 chambres
- 1 salle de bains
- 1 salle de douche
- Étage 2/6
- Exposition Sud
- Neuf
Ce qui nous séduit
- Gardien
- Calme
- Cave
On vous en dit plus
Réglementations & éléments financiers
Les informations sur les risques auxquels ce bien est exposé sont disponibles sur le site Géorisques : www.georisques.gouv.fr
| Diagnostics |
|---|
Consommation énergie finale : C - 129.9 kWh/m²/an.
Montant estimé des dépenses annuelles d’énergie pour un usage standard : entre 2 170,00 € et 2 950,00 € /an (abonnement compris).
Prix moyen des énergies indexées au 01/01/2021.
| Éléments financiers |
|---|
Détails de l’intérieur & de l’extérieur
| Pièce | Surface | Détail |
|---|---|---|
| 1x Cave | ||
| 1x Entrée | 7.18 m² |
Étage : 2ème Revêtement : Parquet |
| 1x Séjour | 22.21 m² |
Étage : 2ème Revêtement : Parquet |
| 1x Salle à manger/Cuisine | 16.89 m² |
Étage : 2ème Revêtement : Parquet |
| 1x Chambre | 9.26 m² |
Étage : 2ème Revêtement : Parquet |
| 1x Chambre | 11.55 m² |
Étage : 2ème Revêtement : Parquet |
| 1x Chambre | 10.72 m² |
Étage : 2ème Revêtement : Parquet |
| 1x Salle de bains | 4.98 m² |
Étage : 2ème Revêtement : Carrelage |
| 1x Salle de douche | 4.84 m² |
Étage : 2ème Revêtement : Carrelage |
| 1x Dressing | 4.82 m² |
Étage : 2ème Revêtement : Parquet |
| 1x Toilettes | 1.75 m² |
Étage : 2ème Revêtement : Carrelage |
| 1x Toilettes | 1.2 m² |
Étage : 2ème Revêtement : Carrelage |
Prestations
Bâtiment & Copropriété
| Bâtiment |
|---|
-
Construit en : 1910
-
Nombre d'étages : 6
| Copropriété |
|---|
77 lots d'habitation
Montant moyen annuel de la quote part de charges courantes : 3 408 €
Procédure en cours : Non
Rencontrez votre agence
Simulateur de financement
Calculez le montant des mensualités de votre prêt immobilier correspondant à l'emprunt que vous souhaitez effectuer.
Prix du bien HAI
1 240 000 €
€
par mois
Vous devez vendre pour acheter ?
Nos consultants immobiliers se tiennent à votre disposition pour réaliser une estimation de la valeur de votre bien. Toutes nos estimations sont offertes.
Je fais estimer mon bienUn lieu de vie à votre image
Junot vous fait visiter les quartiers dans lesquels nos agences vous accueillent, et vous présente les spécificités et bonnes adresses.
Parcourir les quartiers







