Faisons un tour d'horizon
Référence de l’annonce : 2213PASFAR
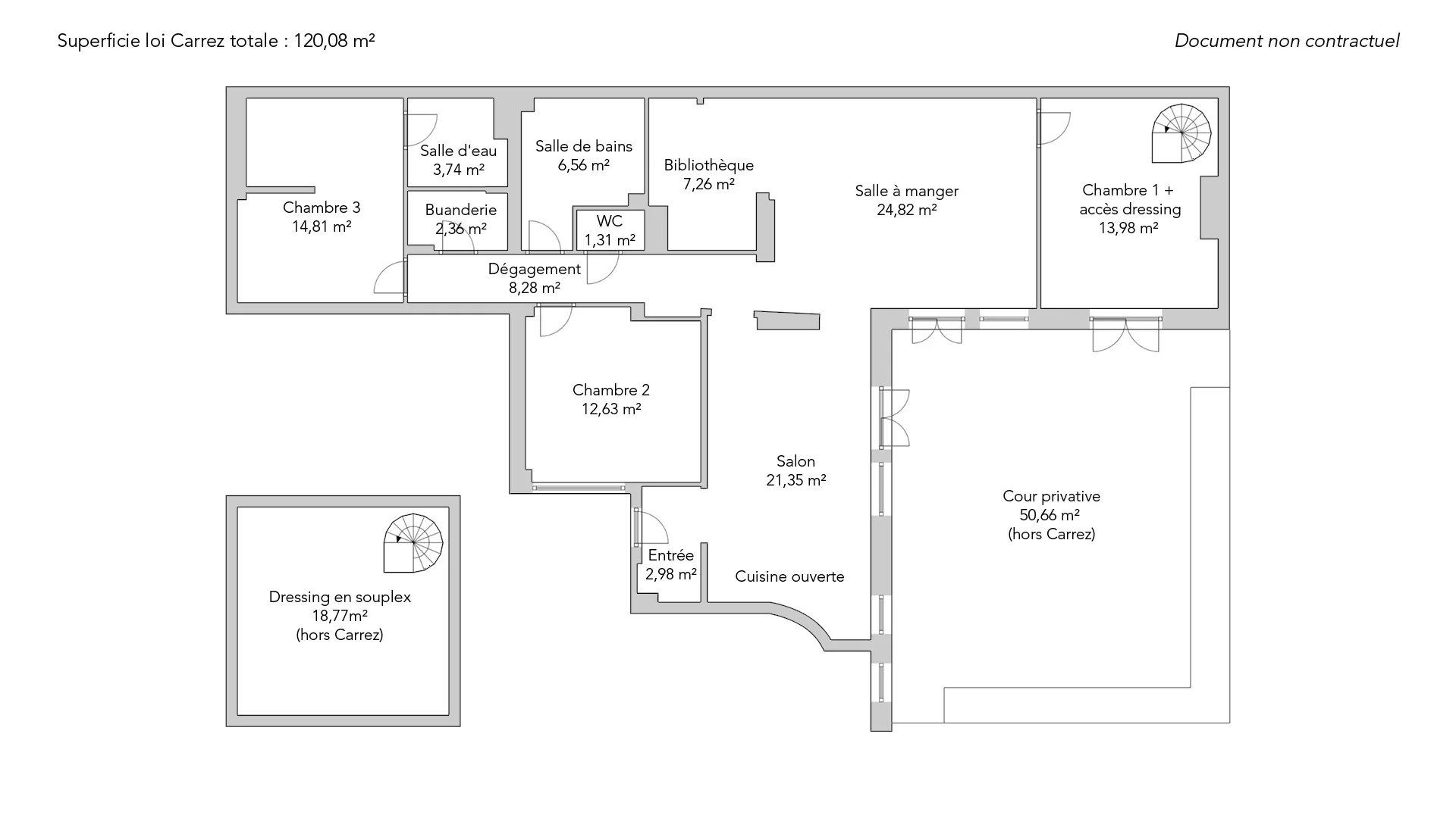
Au cœur du Village d’Auteuil, au rez-de-jardin d’un élégant immeuble sécurisé des années 1920 avec gardien, ce superbe appartement de 119,67m² loi Carrez et 138,85m² de surface habitable offre un cadre de vie rare et privilégié.
L’espace de vie, lumineux et convivial, s’ouvre de plain-pied sur une magnifique terrasse privative de 50m², véritable prolongement de l’appartement. Cet espace extérieur, au calme et à l’abri des regards, constitue un lieu idéal pour recevoir, partager des moments en famille ou entre amis, ou encore aménager un jardin urbain verdoyant.
Le plan, parfaitement optimisé et sans perte d’espace, propose une entrée avec placards, une cuisine ouverte sur une vaste salle à manger propice à la convivialité, ainsi qu’un séjour chaleureux aux volumes généreux.
L’espace nuit comporte trois chambres dont une suite parentale avec salle de douche et toilettes, une salle de bains indépendante, des toilettes séparées et de nombreux rangements intégrés.
En complément, un grand dressing de 19m² en souplex vient parfaire l’ensemble et offrir un espace de rangement particulièrement appréciable.
L’appartement séduit par la qualité de ses prestations : belle hauteur sous plafond, charme de l’ancien conservé avec des éléments d’époque, larges ouvertures laissant entrer une lumière naturelle abondante, et agencement fluide répondant parfaitement aux attentes d’une vie familiale confortable et élégante.
Le calme absolu du rez-de-jardin, associé à une exposition agréable et à la qualité de la copropriété, confère à ce bien une atmosphère paisible et intimiste, extrêmement recherchée.
Idéalement situé à proximité immédiate des commerces, des transports et des établissements scolaires réputés, cet appartement rare séduira les amateurs de beaux volumes, d’espaces extérieurs et de biens de caractère, en quête d’un cadre de vie privilégié au sein d’un quartier vivant et recherché.
- Habitable : 143,00 m²
- 5 pièces
- 3 chambres
- 1 salle de bains
- 1 salle de douche
- Cheminée
- Exposition Est, Sud
- Excellent état
Ce qui nous séduit
- Balcon/Terrasse
On vous en dit plus
Réglementations & éléments financiers
Les informations sur les risques auxquels ce bien est exposé sont disponibles sur le site Géorisques : www.georisques.gouv.fr
| Diagnostics |
|---|
Consommation énergie finale : a - 180 kWh/m²/an.
Logement à consommation énergétique excessive : classe F
Montant estimé des dépenses annuelles d’énergie pour un usage standard : entre 3 720,00 € et 5 070,00 € /an (abonnement compris).
Prix moyen des énergies indexées au 01/01/2021.
| Éléments financiers |
|---|
Détails de l’intérieur & de l’extérieur
| Pièce | Surface | Détail |
|---|---|---|
| 1x Dressing | 18.64 m² | Étage : Sous-sol |
| 1x Entrée | 2.66 m² | Étage : Rez-de-chaussée |
| 1x Terrasse | 51.09 m² |
Étage : Rez-de-chaussée Exposition : Sud-est |
| 1x Séjour | 23.81 m² |
Étage : Rez-de-chaussée Exposition : Sud |
| 1x Salle à manger/Cuisine | 19.97 m² |
Étage : Rez-de-chaussée Exposition : Est |
| 1x Bibliothèque | 7.72 m² | Étage : Rez-de-chaussée |
| 1x Chambre | 14.71 m² | Étage : Rez-de-chaussée |
| 1x Chambre | 13.7 m² | Étage : Rez-de-chaussée |
| 1x Chambre | 13.1 m² | Étage : Rez-de-chaussée |
| 1x Salle de bains | 6.71 m² | Étage : Rez-de-chaussée |
| 1x Salle de douche / toilettes | 3.78 m² | Étage : Rez-de-chaussée |
| 1x Toilettes | 1.32 m² | Étage : Rez-de-chaussée |
| 1x Buanderie | 2.76 m² | Étage : Rez-de-chaussée |
| 1x Dégagement | 9.43 m² | Étage : Rez-de-chaussée |
Prestations
Bâtiment & Copropriété
| Bâtiment |
|---|
-
Construit en : 1919
-
Nombre d'étages : 7
| Copropriété |
|---|
41 lots d'habitation
Montant moyen annuel de la quote part de charges courantes : 3 672 €
Procédure en cours : Non
Rencontrez votre agence
Simulateur de financement
Calculez le montant des mensualités de votre prêt immobilier correspondant à l'emprunt que vous souhaitez effectuer.
Prix du bien HAI
1 590 000 €
€
par mois
Vous devez vendre pour acheter ?
Nos consultants immobiliers se tiennent à votre disposition pour réaliser une estimation de la valeur de votre bien. Toutes nos estimations sont offertes.
Je fais estimer mon bienUn lieu de vie à votre image
Junot vous fait visiter les quartiers dans lesquels nos agences vous accueillent, et vous présente les spécificités et bonnes adresses.
Parcourir les quartiers












