Faisons un tour d'horizon
Référence de l’annonce : 2945MONVIQ/5824JUN
Dans une rue calme, à deux pas des commerces, écoles, espaces verts et transports, ce bien atypique offre un cadre de vie confortable, chaleureux et ensoleillé au cœur d’un quartier vivant.
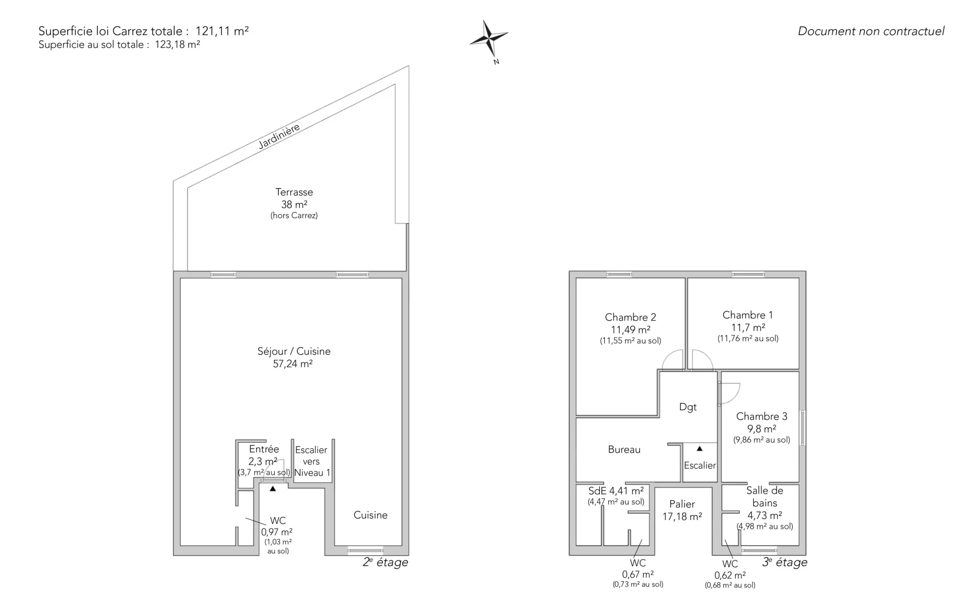
Niché au seconde étage d’un immeuble ancien sans ascenseur, ce duplex 121,11 m² loi Carrez et de 123 m² au sol s’ouvre sur une magnifique terrasse de 38 m² exposée plein sud, idéale pour profiter des beaux jours.
Conçu et réaménagé par un architecte, l’espace a été pensé pour conjuguer harmonie familiale et indépendance de chacun.
Le premier niveau accueille une vaste pièce de vie traversante de plus de 57 m² avec séjour, salle à manger et cuisine ouverte, ainsi que des toilettes invités. De larges ouvertures prolongent cet espace sur la terrasse, apportant lumière et convivialité.
À l'étage supérieur : un coin bureau avec rangements. On y trouve également une suite parentale avec salle de bains et toilettes, ainsi que deux autres chambres partageant une salle de douche équipée d’un espace buanderie ainsi que des toilettes séparées.
- Habitable : 121,11 m² Total : 123,18 m²
- 5 pièces
- 3 chambres
- 1 salle de bains
- 1 salle de douche
- Étage 2/2
- Cheminée
- Exposition Sud
- À rafraîchir
Ce qui nous séduit
- Balcon/Terrasse
- Lumineux
- Calme
- Traversant
- Vue dégagée
On vous en dit plus
Réglementations & éléments financiers
Les informations sur les risques auxquels ce bien est exposé sont disponibles sur le site Géorisques : www.georisques.gouv.fr
| Diagnostics |
|---|
Consommation énergie finale : B - 89 kWh/m²/an.
Montant estimé des dépenses annuelles d’énergie pour un usage standard : entre 1 360,00 € et 1 900,00 € /an (abonnement compris).
Prix moyen des énergies indexées au 01/01/2023.
| Éléments financiers |
|---|
Détails de l’intérieur & de l’extérieur
| Pièce | Surface | Détail |
|---|---|---|
| 1x Terrasse |
Étage : 2ème Exposition : Sud |
|
| 1x Entrée | 2.3 m² |
Étage : 2ème Revêtement : Parquet |
| 1x Séjour/cuisine | 57.24 m² |
Étage : 2ème Exposition : Sud Revêtement : Parquet |
| 1x Toilettes | 0.97 m² |
Étage : 2ème Revêtement : Carrelage |
| 1x Palier | 17.18 m² |
Étage : 3ème Revêtement : Parquet |
| 1x Chambre | 11.7 m² |
Étage : 3ème Exposition : Sud |
| 1x Chambre | 11.49 m² | Étage : 3ème |
| 1x Chambre | 9.8 m² |
Étage : 3ème Revêtement : Parquet |
| 1x Salle de douche | 4.41 m² |
Étage : 3ème Revêtement : Carrelage |
| 1x Salle de bains | 4.73 m² |
Étage : 3ème Revêtement : Carrelage |
| 1x Toilettes | 0.67 m² |
Étage : 3ème Revêtement : Carrelage |
| 1x Toilettes | 0.62 m² |
Étage : 3ème Revêtement : Carrelage |
Prestations
Bâtiment & Copropriété
| Bâtiment |
|---|
-
Construit en : 1910
-
Nombre d'étages : 2
| Copropriété |
|---|
Montant moyen annuel de la quote part de charges courantes : 2 160 €
Procédure en cours : Non
Rencontrez votre agence
Simulateur de financement
Calculez le montant des mensualités de votre prêt immobilier correspondant à l'emprunt que vous souhaitez effectuer.
Prix du bien HAI
1 380 000 €
€
par mois
Vous devez vendre pour acheter ?
Nos consultants immobiliers se tiennent à votre disposition pour réaliser une estimation de la valeur de votre bien. Toutes nos estimations sont offertes.
Je fais estimer mon bienUn lieu de vie à votre image
Junot vous fait visiter les quartiers dans lesquels nos agences vous accueillent, et vous présente les spécificités et bonnes adresses.
Parcourir les quartiers










