Faisons un tour d'horizon
Référence de l’annonce : 5823JUNDEL
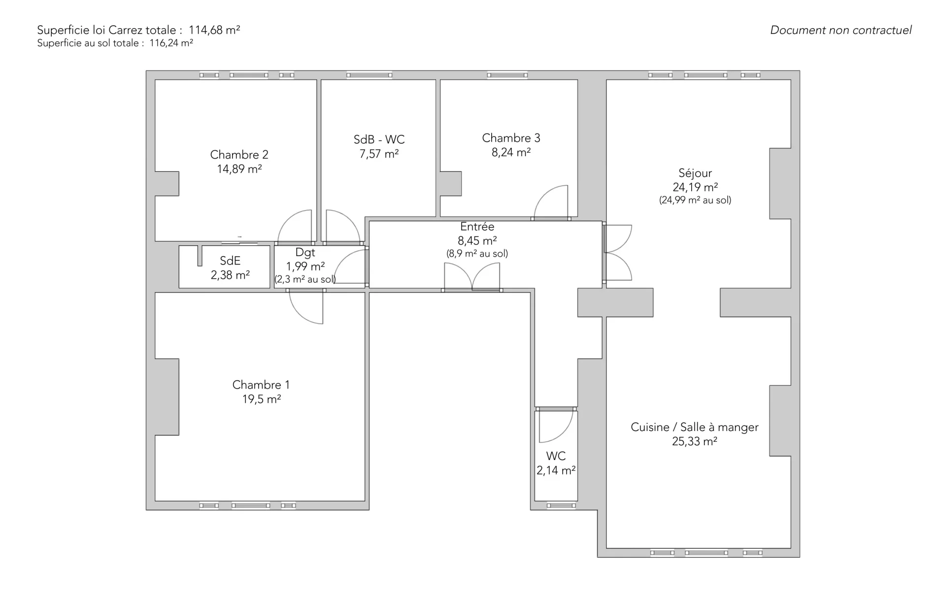
Au 1er étage par ascenseur d'un bel immeuble de standing, superbe appartement familial et traversant de 114,68m² loi Carrez (116,24m² au sol), parfaitement rénové et offrant de très beaux volumes.
Conçu sans perte de place il comprend une petite entrée, une cuisine dinatoire équipée ouvrant sur le séjour ( au total près de 50m²) , trois chambres dont une suite parentale avec sa salle de douche, une grande salle de bains avec toilettes ainsi que des toilettes séparées.
Au sein d'un environnement calme, ce bien bénéficie de beaux volumes et d'une très grande pièce de vie. L'emplacement est idéal à deux pas de l'avenue Junot
Une cave complète ce bien rare.
EXCLUSIVITÉ.
- Habitable : 114,68 m² Total : 116,24 m²
- 5 pièces
- 3 chambres
- 1 salle de bains
- 1 salle de douche
- Étage 1/6
- Excellent état
Ce qui nous séduit
- Adresse très recherchée
- Lumineux
- Calme
- Traversant
- Cave
- Vue dégagée
On vous en dit plus
Réglementations & éléments financiers
Les informations sur les risques auxquels ce bien est exposé sont disponibles sur le site Géorisques : www.georisques.gouv.fr
| Diagnostics |
|---|
Consommation énergie finale : E - 261 kWh/m²/an.
Montant estimé des dépenses annuelles d’énergie pour un usage standard : entre 2 880,00 € et 3 930,00 € /an (abonnement compris).
Prix moyen des énergies indexées au 01/01/2023.
| Éléments financiers |
|---|
Taxe foncière : 1 580,00 € /an
Détails de l’intérieur & de l’extérieur
| Pièce | Surface | Détail |
|---|---|---|
| 1x Cave | Étage : Sous-sol | |
| 1x Entrée | 8.45 m² |
Étage : 1er Revêtement : Parquet |
| 1x Dégagement | 1.99 m² |
Étage : 1er Revêtement : Parquet |
| 1x Chambre | 19.5 m² |
Étage : 1er Revêtement : Parquet |
| 1x Chambre | 14.89 m² |
Étage : 1er Revêtement : Parquet |
| 1x Salle de douche | 2.38 m² |
Étage : 1er Revêtement : Carrelage |
| 1x Salle de bains / toilettes | 7.57 m² |
Étage : 1er Revêtement : Carrelage |
| 1x Chambre | 8.24 m² |
Étage : 1er Revêtement : Parquet |
| 1x Séjour | 24.19 m² |
Étage : 1er Revêtement : Parquet |
| 1x Cuisine | 25.33 m² |
Étage : 1er Revêtement : Parquet |
| 1x Toilettes | 2.14 m² |
Étage : 1er Revêtement : Carrelage |
Prestations
Bâtiment & Copropriété
| Bâtiment |
|---|
-
Construit en : 1920
-
Nombre d'étages : 6
| Copropriété |
|---|
25 lots d'habitation
Montant moyen annuel de la quote part de charges courantes : 6 096 €
Procédure en cours : Non
Rencontrez votre agence
Simulateur de financement
Calculez le montant des mensualités de votre prêt immobilier correspondant à l'emprunt que vous souhaitez effectuer.
Prix du bien HAI
1 495 000 €
€
par mois
Vous devez vendre pour acheter ?
Nos consultants immobiliers se tiennent à votre disposition pour réaliser une estimation de la valeur de votre bien. Toutes nos estimations sont offertes.
Je fais estimer mon bienUn lieu de vie à votre image
Junot vous fait visiter les quartiers dans lesquels nos agences vous accueillent, et vous présente les spécificités et bonnes adresses.
Parcourir les quartiers










