Faisons un tour d'horizon
Référence de l’annonce : 3416GRECOL
Au cœur du quartier Gros Caillou, à deux pas de tous les commerces et transports.
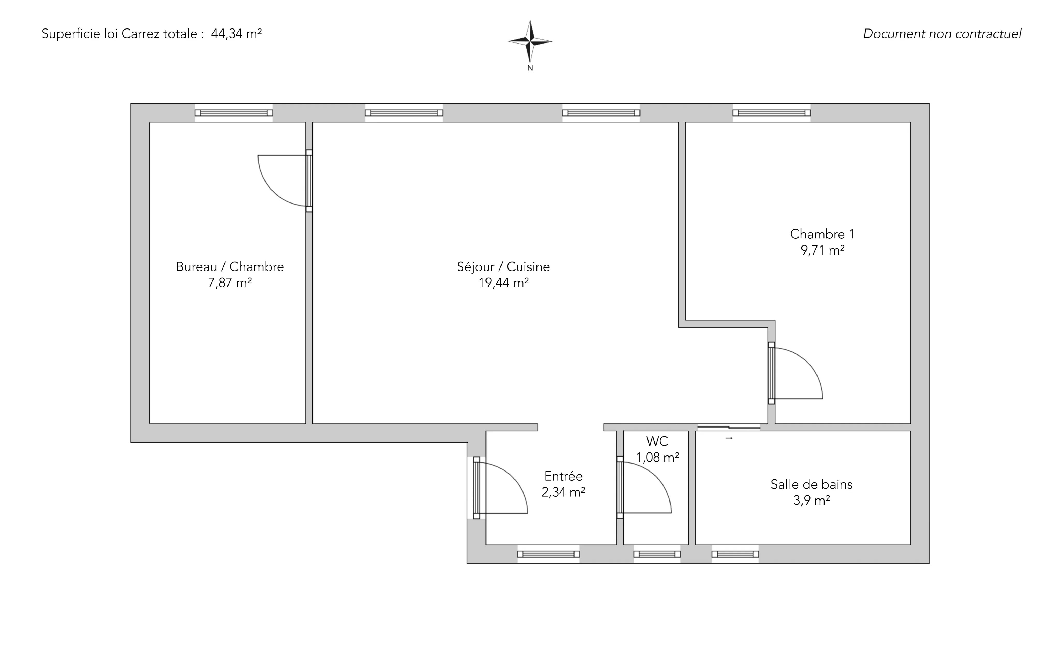
Appartement trois pièces de 44,34m² loi Carrez situé au deuxième étage d'une copropriété ancienne parfaitement sécurisée et entretenue avec gardien.
Cet appartement vous séduira par sa rénovation contemporaine, son plan harmonieux et parfaitement optimisé, ses deux chambres, son très bel ensoleillement et son grand calme.
Traversant et baigné de lumière, il propose une petite entrée, un vaste séjour orienté sud et ouvert sur une très grande cour, une cuisine ouverte aménagée et équipée, deux chambres également exposées sud et pourvues de rangements, une salle de bains fonctionnelle et des toilettes indépendantes.
Deux caves en sous-sol complètent ce bien rare situé à deux minutes de la rue Cler.
EXCLUSIVITÉ.
- Habitable : 44,34 m²
- 3 pièces
- 2 chambres
- 1 salle de bains
- Étage 2/4
- Exposition Nord, Sud
- Excellent état
Ce qui nous séduit
- Gardien
- Lumineux
- Calme
- Traversant
- Cave
On vous en dit plus
Réglementations & éléments financiers
Les informations sur les risques auxquels ce bien est exposé sont disponibles sur le site Géorisques : www.georisques.gouv.fr
| Diagnostics |
|---|
Consommation énergie finale : a - 82 kWh/m²/an.
Montant estimé des dépenses annuelles d’énergie pour un usage standard : entre 700,00 € et 990,00 € /an (abonnement compris).
Prix moyen des énergies indexées au 01/01/2021.
| Éléments financiers |
|---|
Charges : 73,00 €
Montant moyen annuel de la quote part de charges courantes : 2 172 €Taxe foncière : 916,00 € /an
Détails de l’intérieur & de l’extérieur
| Pièce | Surface | Détail |
|---|---|---|
| 1x Cave | Étage : Sous-sol | |
| 2x Entrée | 2.34 m² | Étage : 2ème |
| 1x Séjour/cuisine | 19.44 m² | Étage : 2ème |
| 1x Chambre | 9.71 m² | Étage : 2ème |
| 1x Chambre | 7.87 m² | Étage : 2ème |
| 1x Salle de bains | 3.9 m² | Étage : 2ème |
| 1x Toilettes | 1.08 m² | Étage : 2ème |
Prestations
Bâtiment & Copropriété
| Bâtiment |
|---|
-
Construit en : 1851
-
Type : Pierre
-
Nombre d'étages : 4
-
Niveau de qualité : Standing
| Copropriété |
|---|
Montant moyen annuel de la quote part de charges courantes : 2 172 €
Procédure en cours : Non
Rencontrez votre agence
Simulateur de financement
Calculez le montant des mensualités de votre prêt immobilier correspondant à l'emprunt que vous souhaitez effectuer.
Prix du bien HAI
695 000 €
€
par mois
Vous devez vendre pour acheter ?
Nos consultants immobiliers se tiennent à votre disposition pour réaliser une estimation de la valeur de votre bien. Toutes nos estimations sont offertes.
Je fais estimer mon bienUn lieu de vie à votre image
Junot vous fait visiter les quartiers dans lesquels nos agences vous accueillent, et vous présente les spécificités et bonnes adresses.
Parcourir les quartiers













