Faisons un tour d'horizon
Référence de l’annonce : 3420GRECOL
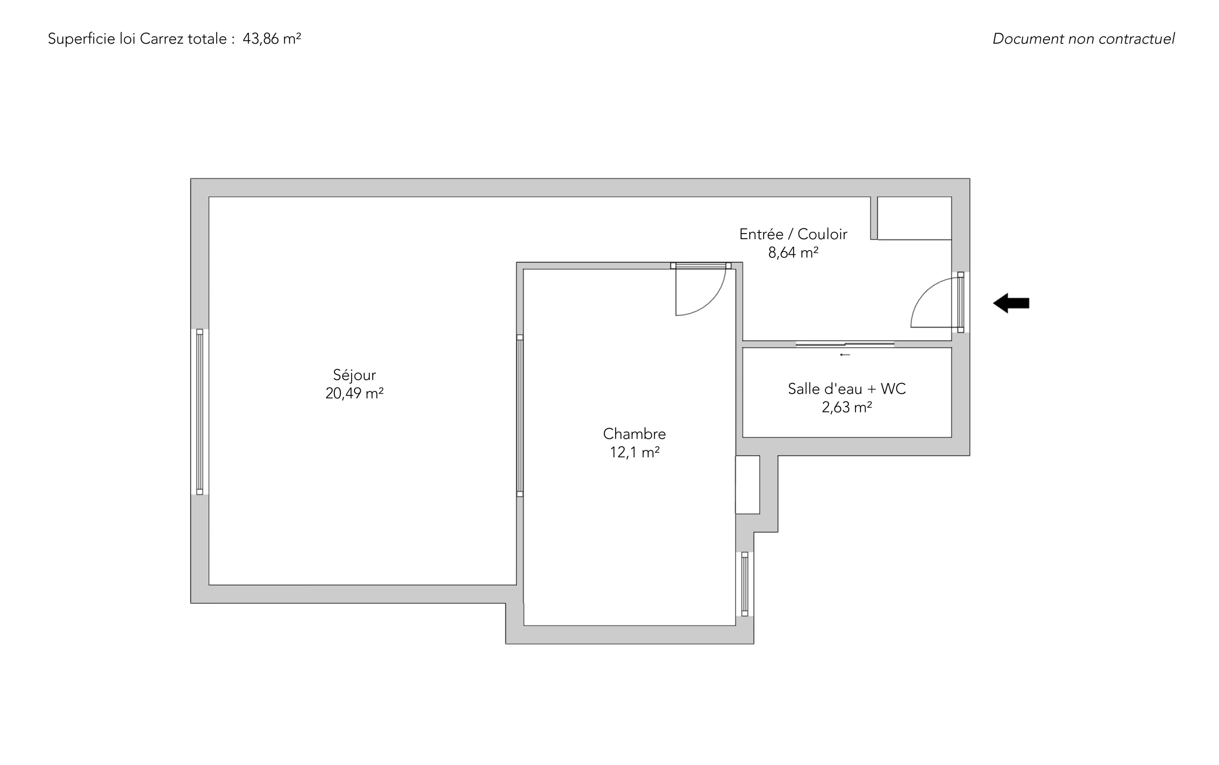
Au sein d'une rue calme et élégante, à deux pas des commerces et des transports, cet appartement de deux pièces de 43,89m² loi Carrez se situe au deuxième étage par ascenseur d'un superbe immeuble Art déco soigneusement entretenu avec présence d'un gardien.
Tourné vers la rue, ce bien baigné de lumière comporte une belle entrée, une généreuse pièce de vie prolongée par sa cuisine ouverte intégralement aménagée et équipée, une chambre au calme sur cour et une salle de douche avec des toilettes.
Le charme authentique de l'appartement a été préservé grâce aux moulures, au parquet et à la belle hauteur sous plafond.
La rénovation contemporaine, menée avec goût et élégance, sublime ces atouts.
Proposé meublé, ce bien constitue un parfait pied-à-terre au sein de l'un des quartiers les plus recherchés de Paris.
- Habitable : 43,86 m²
- 2 pièces
- 1 chambre
- 1 salle de douche
- Étage 2/8
- Neuf
- Meublé
Ce qui nous séduit
- Gardien
- Calme
- Ascenseur
On vous en dit plus
Réglementations & éléments financiers
Les informations sur les risques auxquels ce bien est exposé sont disponibles sur le site Géorisques : www.georisques.gouv.fr
| Diagnostics |
|---|
Consommation énergie finale : B - 72 kWh/m²/an.
Montant estimé des dépenses annuelles d’énergie pour un usage standard : entre 510,00 € et 720,00 € /an (abonnement compris).
Prix moyen des énergies indexées au 01/01/2023.
| Éléments financiers |
|---|
Taxe foncière : 2 339,00 € /an
Détails de l’intérieur & de l’extérieur
| Pièce | Surface | Détail |
|---|---|---|
| 1x Entrée | 8.64 m² | |
| 1x Séjour | 20.49 m² | |
| 1x Chambre | 12.1 m² | |
| 1x Salle de douche / toilettes | 2.63 m² |
Prestations
Bâtiment & Copropriété
| Bâtiment |
|---|
-
Construit en : 1930
-
Type : Pierre de taille
-
Nombre d'étages : 8
-
Niveau de qualité : Standing
| Copropriété |
|---|
97 lots d'habitation
Montant moyen annuel de la quote part de charges courantes : 2 688 €
Procédure en cours : Non
Rencontrez votre agence
Simulateur de financement
Calculez le montant des mensualités de votre prêt immobilier correspondant à l'emprunt que vous souhaitez effectuer.
Prix du bien HAI
775 000 €
€
par mois
Vous devez vendre pour acheter ?
Nos consultants immobiliers se tiennent à votre disposition pour réaliser une estimation de la valeur de votre bien. Toutes nos estimations sont offertes.
Je fais estimer mon bienUn lieu de vie à votre image
Junot vous fait visiter les quartiers dans lesquels nos agences vous accueillent, et vous présente les spécificités et bonnes adresses.
Parcourir les quartiers












