Faisons un tour d'horizon
Référence de l’annonce : 2035CHMDEP
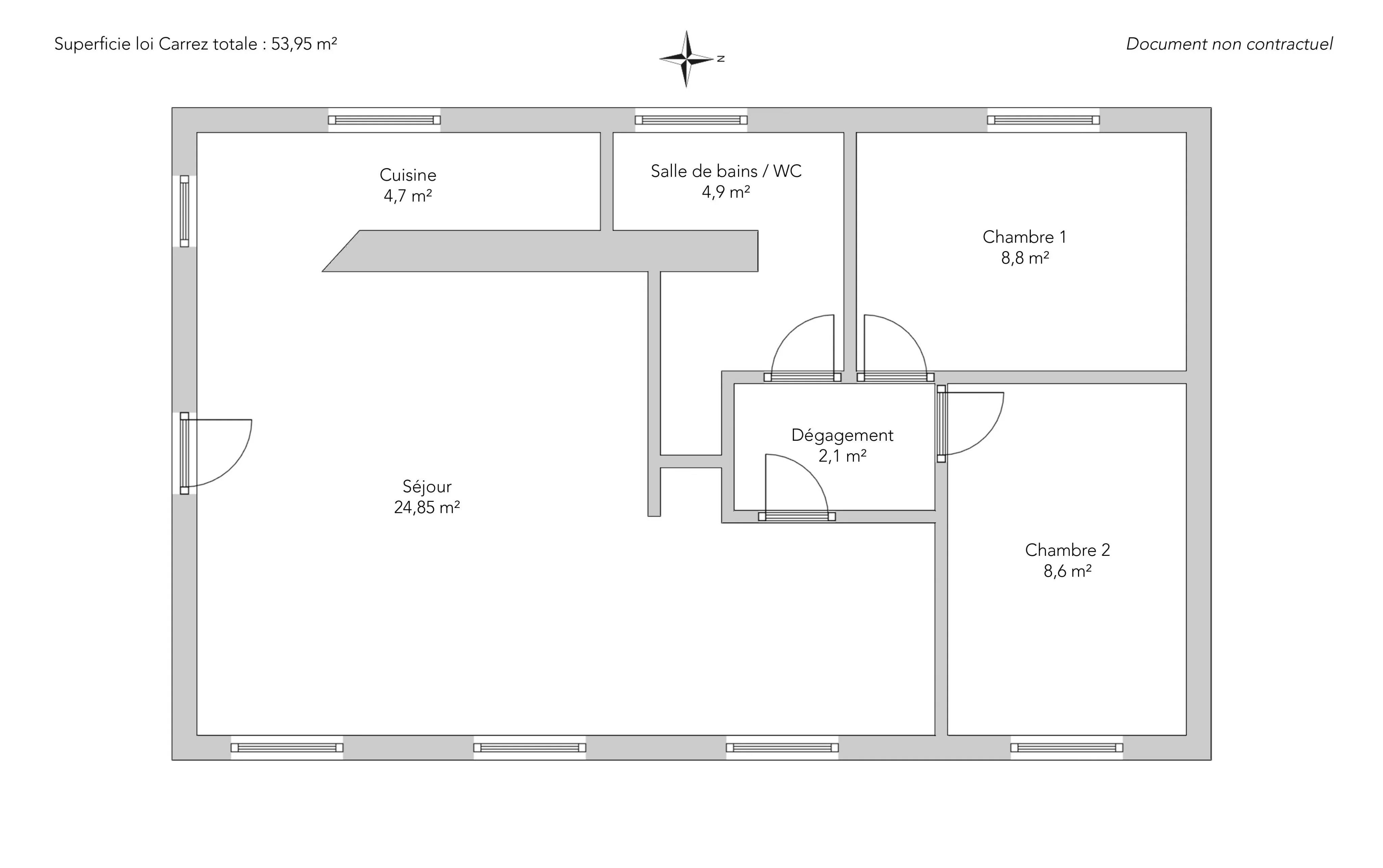
Au cœur du très recherché quartier Raspail, à la lisière des 6e et 14e arrondissements, au cinquième étage par ascenseur d’un élégant immeuble ancien avec gardien, un bel appartement de 53,95m² loi Carrez.
Baigné de lumière grâce à son exposition est / ouest et doté d'un plan optimisé sans perte de place, il bénéficie d’un environnement particulièrement calme. Il comporte un agréable séjour avec espace salle à manger, une cuisine aménagée et équipée, deux confortables chambres avec rangements et une salle de bains avec des toilettes.
Le parquet, la belle hauteur sous plafond et l'harmonie des volumes soulignent le charme ancien de ce bien rare dans un cadre de vie recherché à proximité immédiate des commerces, des transports et des établissements scolaires de renom.
Deux caves complètent cette offre.
EXCLUSIVITÉ.
- Habitable : 53,95 m²
- 3 pièces
- 2 chambres
- 1 salle de bains
- Étage 5/6
- Exposition Est, Ouest
- Bon état
Ce qui nous séduit
- Adresse très recherchée
- Gardien
- Lumineux
- Calme
- Traversant
- Ascenseur
- Cave
On vous en dit plus
Réglementations & éléments financiers
Les informations sur les risques auxquels ce bien est exposé sont disponibles sur le site Géorisques : www.georisques.gouv.fr
| Diagnostics |
|---|
Consommation énergie finale : a - 364 kWh/m²/an.
Logement à consommation énergétique excessive : classe F
Montant estimé des dépenses annuelles d’énergie pour un usage standard : entre 1 800,00 € et 2 480,00 € /an (abonnement compris).
Prix moyen des énergies indexées au 01/01/2023.
| Éléments financiers |
|---|
Taxe foncière : 1 148,00 € /an
Détails de l’intérieur & de l’extérieur
| Pièce | Surface | Détail |
|---|---|---|
| 2x Cave | Étage : Sous-sol | |
| 1x Séjour | 24.85 m² |
Étage : 5ème Exposition : Est Revêtement : Parquet Plafond : 2.8m |
| 1x Cuisine équipée | 4.7 m² |
Étage : 5ème Exposition : Ouest, Sud Revêtement : Carrelage |
| 1x Chambre | 8.6 m² |
Étage : 5ème Exposition : Est Revêtement : Parquet |
| 1x Chambre | 8.8 m² |
Étage : 5ème Exposition : Ouest Revêtement : Parquet |
| 1x Salle de bains / toilettes | 4.9 m² |
Étage : 5ème Exposition : Ouest Revêtement : Carrelage |
| 1x Dégagement | 2.1 m² |
Étage : 5ème Revêtement : Parquet |
Prestations
Bâtiment & Copropriété
| Bâtiment |
|---|
-
Construit en : 1904
-
Type : Pierre de taille
-
Nombre d'étages : 6
| Copropriété |
|---|
66 lots d'habitation
Montant moyen annuel de la quote part de charges courantes : 2 124 €
Procédure en cours : Non
Rencontrez votre agence
Simulateur de financement
Calculez le montant des mensualités de votre prêt immobilier correspondant à l'emprunt que vous souhaitez effectuer.
Prix du bien HAI
725 000 €
€
par mois
Vous devez vendre pour acheter ?
Nos consultants immobiliers se tiennent à votre disposition pour réaliser une estimation de la valeur de votre bien. Toutes nos estimations sont offertes.
Je fais estimer mon bienUn lieu de vie à votre image
Junot vous fait visiter les quartiers dans lesquels nos agences vous accueillent, et vous présente les spécificités et bonnes adresses.
Parcourir les quartiers












