Faisons un tour d'horizon
Référence de l’annonce : 2336PASDRI
Entre les avenues d’Iéna et Marceau, au cœur d’une rue calme et recherchée, à proximité immédiate des commerces.
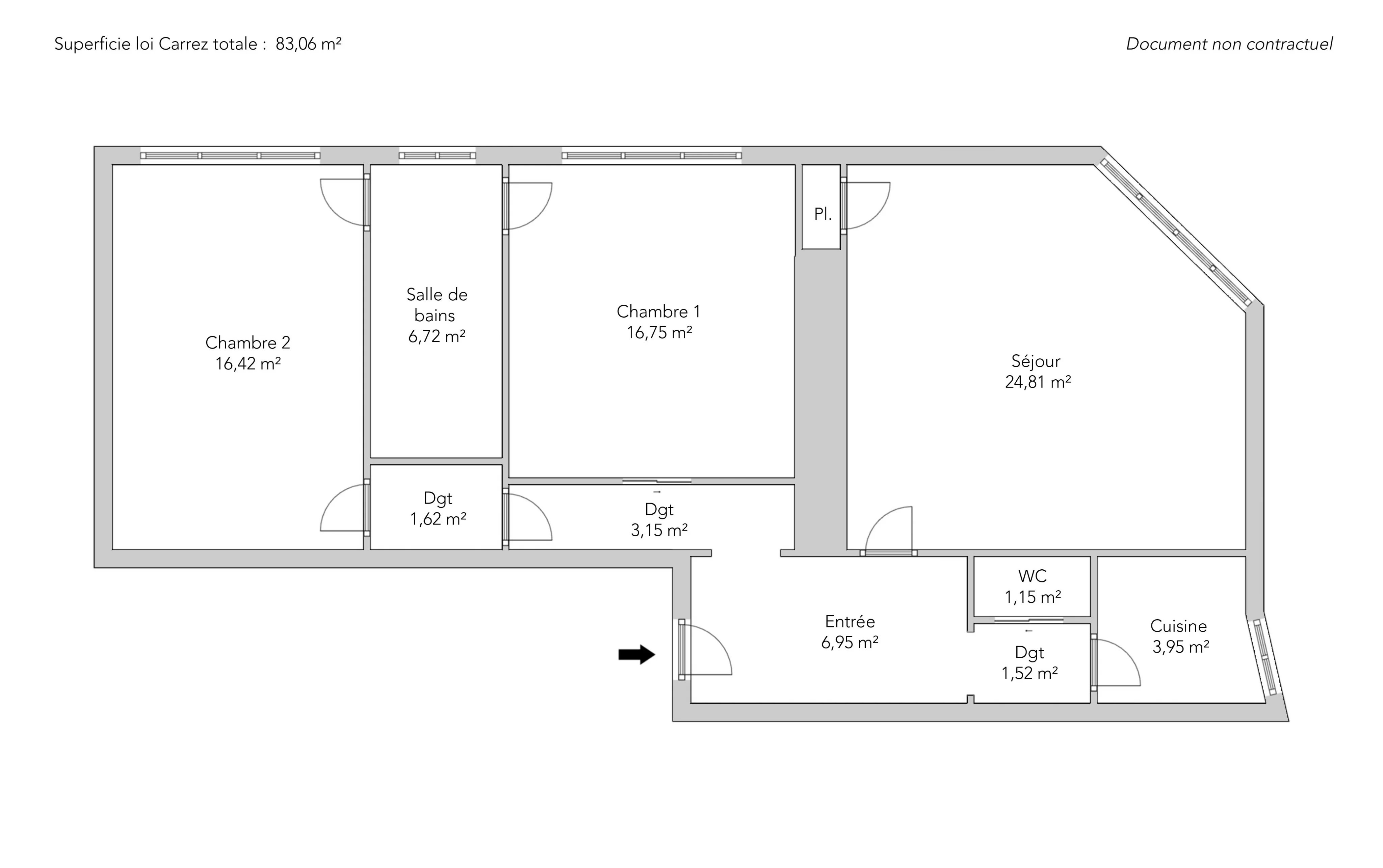
Élégant appartement de 83,06m² loi Carrez situé au quatrième étage par ascenseur d’un remarquable immeuble d’angle en pierre de taille datant de 1890.
Baigné de lumière, ce bien aux volumes harmonieux comporte une entrée, une vaste réception en angle réunissant salon et salle à manger, deux belles chambres, chacune avec accès à la salle de bains, une cuisine indépendante entièrement aménagée, des toilettes invités et de nombreux rangements.
L’ensemble séduit par son excellent état, son charme et son plan parfaitement optimisé, sans perte d’espace.
Une cave complète ce bien.
Immeuble avec gardien et accès sécurisé.
- Habitable : 83,06 m² Total : 83,83 m²
- 3 pièces
- 2 chambres
- 1 salle de bains
- Étage 4/7
- Exposition Sud-ouest
- Bon état
Ce qui nous séduit
- Adresse très recherchée
- Gardien
- Calme
- Ascenseur
- Cave
On vous en dit plus
Réglementations & éléments financiers
Les informations sur les risques auxquels ce bien est exposé sont disponibles sur le site Géorisques : www.georisques.gouv.fr
| Diagnostics |
|---|
Consommation énergie finale : a - 212.4 kWh/m²/an.
Montant estimé des dépenses annuelles d’énergie pour un usage standard : entre 2 280,00 € et 3 100,00 € /an (abonnement compris).
Prix moyen des énergies indexées au 01/01/2021.
| Éléments financiers |
|---|
Taxe foncière : 1 873,00 € /an
Détails de l’intérieur & de l’extérieur
| Pièce | Surface | Détail |
|---|---|---|
| 1x Cave | ||
| 1x Entrée | 6.95 m² | Étage : 4ème |
| 1x Séjour | 24.82 m² | Étage : 4ème |
| 1x Cuisine | 3.96 m² | Étage : 4ème |
| 1x Chambre | 16.75 m² | Étage : 4ème |
| 1x Chambre | 16.42 m² | Étage : 4ème |
| 1x Salle de bains | 6.72 m² | Étage : 4ème |
| 1x Toilettes | 1.15 m² | Étage : 4ème |
| 1x Dégagement | 1.52 m² | Étage : 4ème |
| 1x Dégagement | 3.15 m² | Étage : 4ème |
| 1x Dégagement | 1.62 m² | Étage : 4ème |
Prestations
Bâtiment & Copropriété
| Bâtiment |
|---|
-
Construit en : 1890
-
Nombre d'étages : 7
| Copropriété |
|---|
28 lots d'habitation
Montant moyen annuel de la quote part de charges courantes : 6 720 €
Procédure en cours : Non
Rencontrez votre agence
Simulateur de financement
Calculez le montant des mensualités de votre prêt immobilier correspondant à l'emprunt que vous souhaitez effectuer.
Prix du bien HAI
1 425 000 €
€
par mois
Vous devez vendre pour acheter ?
Nos consultants immobiliers se tiennent à votre disposition pour réaliser une estimation de la valeur de votre bien. Toutes nos estimations sont offertes.
Je fais estimer mon bienUn lieu de vie à votre image
Junot vous fait visiter les quartiers dans lesquels nos agences vous accueillent, et vous présente les spécificités et bonnes adresses.
Parcourir les quartiers











