Faisons un tour d'horizon
Référence de l’annonce :
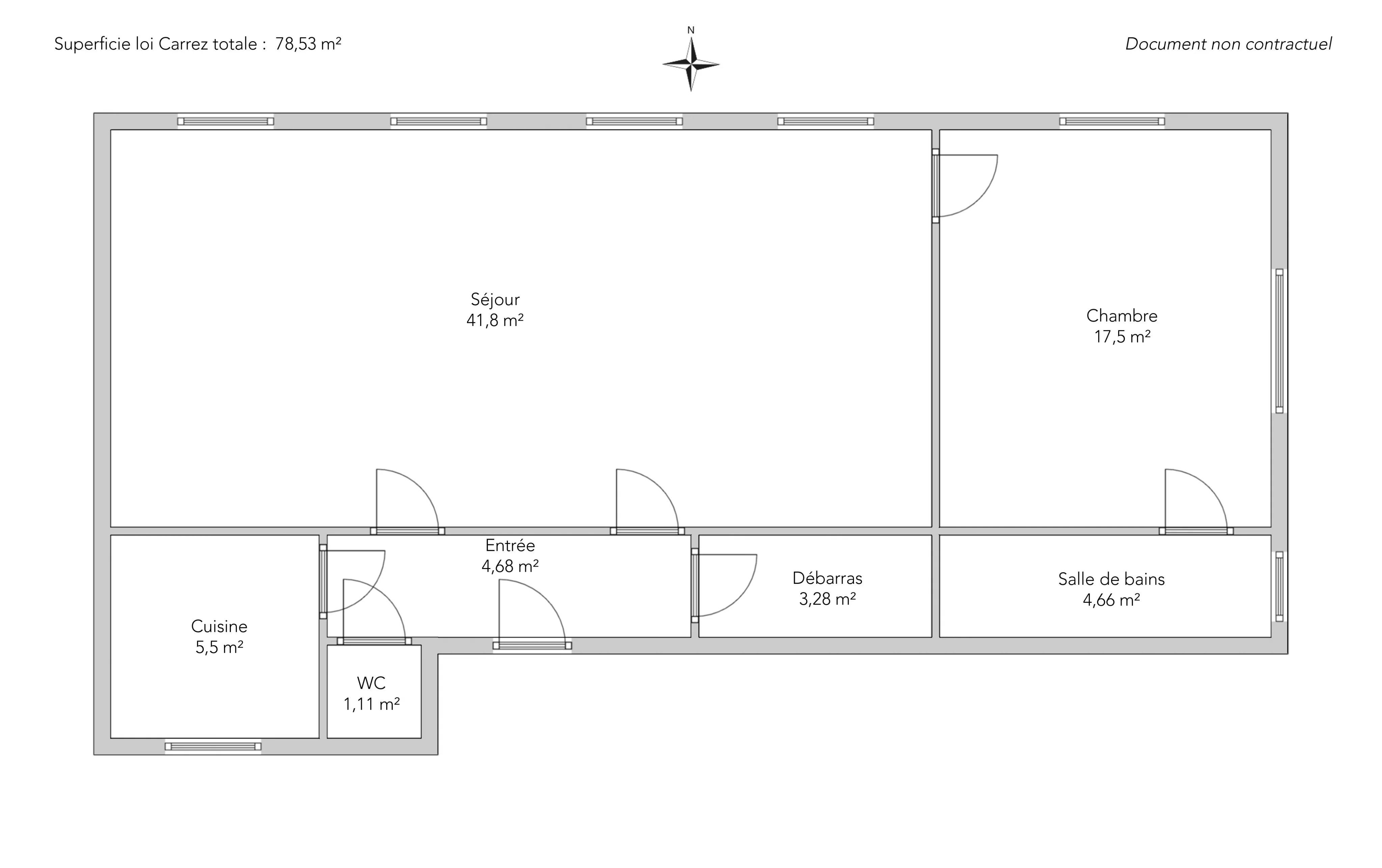
Situé au troisième étage par ascenseur d’un immeuble parisien du XIXᵉ siècle, au cœur du 10ᵉ arrondissement, cet appartement de 78,53m² loi Carrez, en parfait état, offre de beaux volumes et une agréable luminosité. Son agencement permet la création d’une seconde chambre.
Ce bien comporte une entrée, un vaste séjour, une chambre spacieuse, une cuisine indépendante aménagée et équipée, une salle de bains, des toilettes séparées ainsi qu'un dressing attenant.
Le charme de l’ancien est préservé grâce à ses éléments d’origine: cheminée, parquet en point de Hongrie et moulures. L’ensemble propose un cadre de vie confortable et élégant, dans un quartier central et recherché.
Une cave complète cette offre.
- Habitable : 78,53 m²
- 3 pièces
- 2 chambres
- 1 salle de bains
- Étage 3/6
- Cheminée
- Exposition Nord
- Bon état
Ce qui nous séduit
- Ascenseur
- Cave
- Vue dégagée
On vous en dit plus
Réglementations & éléments financiers
Les informations sur les risques auxquels ce bien est exposé sont disponibles sur le site Géorisques : www.georisques.gouv.fr
| Diagnostics |
|---|
Consommation énergie finale : a - 188 kWh/m²/an.
Montant estimé des dépenses annuelles d’énergie pour un usage standard : entre 1 410,00 € et 1 960,00 € /an (abonnement compris).
Prix moyen des énergies indexées au 01/01/2023.
| Éléments financiers |
|---|
Taxe foncière : 1 218,00 € /an
Détails de l’intérieur & de l’extérieur
| Pièce | Surface | Détail |
|---|---|---|
| 1x Chambre | ||
| 1x Cave |
Étage : Sous-sol Revêtement : Terre battue |
|
| 1x Entrée | 4.68 m² | Étage : 3ème |
| 1x Débarras | 3.28 m² | Étage : 3ème |
| 1x Cuisine | 5.5 m² |
Étage : 3ème Revêtement : Parquet |
| 1x Séjour | 41.8 m² |
Étage : 3ème Revêtement : Parquet |
| 1x Chambre | 17.5 m² |
Étage : 3ème Revêtement : Parquet |
| 1x Salle de bains | 4.66 m² |
Étage : 3ème Revêtement : Parquet |
| 1x Toilettes | 1.11 m² |
Étage : 3ème Revêtement : Parquet |
Prestations
Bâtiment & Copropriété
| Bâtiment |
|---|
-
Construit en : 1880
-
Type : Béton
-
Nombre d'étages : 6
-
Niveau de qualité : Normal
| Copropriété |
|---|
33 lots d'habitation
Montant moyen annuel de la quote part de charges courantes : 3 900 €
Procédure en cours : Non
Rencontrez votre agence
Simulateur de financement
Calculez le montant des mensualités de votre prêt immobilier correspondant à l'emprunt que vous souhaitez effectuer.
Prix du bien HAI
630 000 €
€
par mois
Vous devez vendre pour acheter ?
Nos consultants immobiliers se tiennent à votre disposition pour réaliser une estimation de la valeur de votre bien. Toutes nos estimations sont offertes.
Je fais estimer mon bienUn lieu de vie à votre image
Junot vous fait visiter les quartiers dans lesquels nos agences vous accueillent, et vous présente les spécificités et bonnes adresses.
Parcourir les quartiers











