Faisons un tour d'horizon
Référence de l’annonce : OA3524MARGON
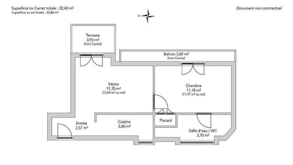
À deux pas de la très prisée avenue Trudaine, au sein d'une rue calme, superbe appartement de 32,40m² loi Carrez et 33,88m² au sol, au septième et avant-dernier étage par ascenseur d'un immeuble année 30 bien entretenu.
Son plan compact comprend une entrée avec rangements, un séjour exposé est ouvrant sur une belle terrasse et bénéficiant d'une vue dégagée sur le Sacré-Coeur, une cuisine semi-ouverte aménagée et équipée, une chambre avec un balcon, une salle de douche avec toilettes et son espace buanderie. Une cave complète ce bien.
Cet appartement saura séduire par son plan sans perte de place, sa vue dégagée et son fort ensoleillement. Configuration et situation exceptionnelles. Gardienne à demeure.
EXCLUSIVITÉ
- Habitable : 32,40 m² Total : 33,88 m²
- 2 pièces
- 1 chambre
- 1 salle de douche
- Étage 7/8
- Exposition Est, Ouest
- Bon état
Ce qui nous séduit
- Balcon/Terrasse
- Gardien
- Lumineux
- Calme
- Traversant
- Ascenseur
- Vue dégagée
On vous en dit plus
Réglementations & éléments financiers
Les informations sur les risques auxquels ce bien est exposé sont disponibles sur le site Géorisques : www.georisques.gouv.fr
| Diagnostics |
|---|
Consommation énergie finale : a - 291.9 kWh/m²/an.
Montant estimé des dépenses annuelles d’énergie pour un usage standard : entre 540,00 € et 750,00 € /an (abonnement compris).
Prix moyen des énergies indexées au 01/01/2021.
| Éléments financiers |
|---|
Taxe foncière : 861,00 € /an
Détails de l’intérieur & de l’extérieur
| Pièce | Surface | Détail |
|---|---|---|
| 1x Entrée | 2.57 m² |
Étage : 7ème Revêtement : Coco |
| 1x Cuisine équipée | 3.6 m² |
Étage : 7ème Exposition : Ouest Revêtement : Carrelage |
| 1x Séjour | 11.35 m² |
Étage : 7ème Exposition : Est Revêtement : Parquet |
| 1x Chambre | 11.18 m² |
Étage : 7ème Exposition : Est Revêtement : Parquet |
| 1x Salle de douche / toilettes | 3.7 m² |
Étage : 7ème Exposition : Ouest Revêtement : Carrelage |
| 1x Terrasse | 3.93 m² | Étage : 7ème |
| 1x Balcon | 3.6 m² | Étage : 7ème |
Prestations
Bâtiment & Copropriété
| Bâtiment |
|---|
-
Construit en : 1930
-
Type : Pierre
-
Nombre d'étages : 8
-
Niveau de qualité : Normal
| Copropriété |
|---|
185 lots d'habitation
Montant moyen annuel de la quote part de charges courantes : 3 684 €
Procédure en cours : Non
Rencontrez votre agence
Simulateur de financement
Calculez le montant des mensualités de votre prêt immobilier correspondant à l'emprunt que vous souhaitez effectuer.
Prix du bien HAI
550 000 €
€
par mois
Vous devez vendre pour acheter ?
Nos consultants immobiliers se tiennent à votre disposition pour réaliser une estimation de la valeur de votre bien. Toutes nos estimations sont offertes.
Je fais estimer mon bienUn lieu de vie à votre image
Junot vous fait visiter les quartiers dans lesquels nos agences vous accueillent, et vous présente les spécificités et bonnes adresses.
Parcourir les quartiers











