Faisons un tour d'horizon
Référence de l’annonce : 3442ABBRAF/2949MON
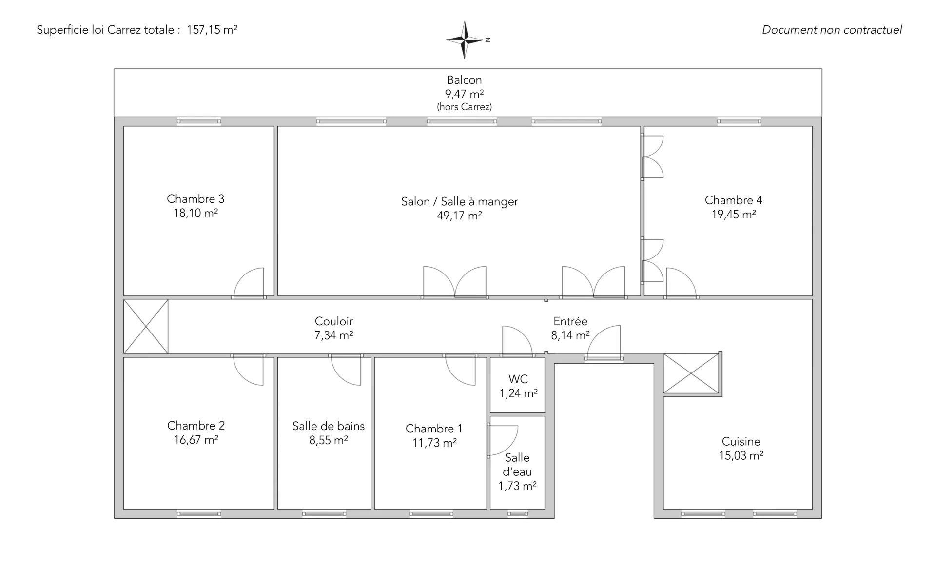
Idéalement situé, au deuxième étage par ascenseur d'un très bel immeuble en pierre de taille, appartement de réception de 157,15m² loi Carrez est agrémenté d'un balcon filant de 9,47m².
Très lumineux grâce à son exposition plein ouest , il comprend une entrée, un très beau séjour ouvert sur le balcon filant, une cuisine semi-ouverte, un salon salle à manger. Quatre chambres dont une suite avec salle de douche et deux profitent du balcon filant, une salle de bains avec ses toilettes et des toilettes invités.
Charme de l'ancien avec magnifiques moulures et cheminée préservés. Hauteur sous plafond de 3.50m.
Ce bien est à rafraîchir et saura vous séduire grâce à son plan optimisé, sa luminosité et sa localisation.
Une cave complète cette offre.
- Habitable : 157,15 m² Total : 166,62 m²
- 5 pièces
- 4 chambres
- 1 salle de bains
- 1 salle de douche
- Étage 2/5
- Cheminée
- Exposition Est, Ouest
- À rafraîchir
Ce qui nous séduit
- Balcon/Terrasse
- Lumineux
- Calme
- Ascenseur
On vous en dit plus
Réglementations & éléments financiers
Les informations sur les risques auxquels ce bien est exposé sont disponibles sur le site Géorisques : www.georisques.gouv.fr
| Diagnostics |
|---|
Consommation énergie finale : a - 219 kWh/m²/an.
Classe climat : D - émissions estimées 49 kg CO₂/m².an
Montant estimé des dépenses annuelles d’énergie pour un usage standard : entre 3 040,00 € et 4 160,00 € /an (abonnement compris).
Prix moyen des énergies indexées au 01/01/2023.
| Éléments financiers |
|---|
Taxe foncière : 3 202,00 € /an
Détails de l’intérieur & de l’extérieur
| Pièce | Surface | Détail |
|---|---|---|
| 1x Chambre | 18.1 m² |
Étage : 2ème Plafond : 3.2m |
| 1x Entrée | 8.14 m² |
Étage : 2ème Plafond : 3.2m |
| 1x Couloir | 7.34 m² |
Étage : 2ème Plafond : 3.2m |
| 1x Toilettes | 1.24 m² |
Étage : 2ème Plafond : 3.2m |
| 1x Chambre | 11.73 m² |
Étage : 2ème Plafond : 3.2m |
| 1x Salle de douche | 1.73 m² |
Étage : 2ème Plafond : 3.2m |
| 1x Salle de bains | 8.55 m² |
Étage : 2ème Plafond : 3.2m |
| 1x Chambre | 16.67 m² |
Étage : 2ème Plafond : 3.2m |
| 1x Salle à manger | 49.17 m² |
Étage : 2ème Plafond : 3.2m |
| 1x Chambre | 19.45 m² |
Étage : 2ème Plafond : 3.2m |
| 1x Cuisine | 15.03 m² |
Étage : 2ème Plafond : 3.2m |
| 1x Balcon | Étage : 2ème |
Prestations
Bâtiment & Copropriété
| Bâtiment |
|---|
-
Construit en : 1864
-
Type : Pierre de taille
-
Nombre d'étages : 5
-
Niveau de qualité : Standing
| Copropriété |
|---|
29 lots d'habitation
Montant moyen annuel de la quote part de charges courantes : 4 332 €
Procédure en cours : Non
Rencontrez votre agence
Simulateur de financement
Calculez le montant des mensualités de votre prêt immobilier correspondant à l'emprunt que vous souhaitez effectuer.
Prix du bien HAI
2 490 000 €
€
par mois
Vous devez vendre pour acheter ?
Nos consultants immobiliers se tiennent à votre disposition pour réaliser une estimation de la valeur de votre bien. Toutes nos estimations sont offertes.
Je fais estimer mon bienUn lieu de vie à votre image
Junot vous fait visiter les quartiers dans lesquels nos agences vous accueillent, et vous présente les spécificités et bonnes adresses.
Parcourir les quartiers












