Faisons un tour d'horizon
Référence de l’annonce : 3465ABBRAV08
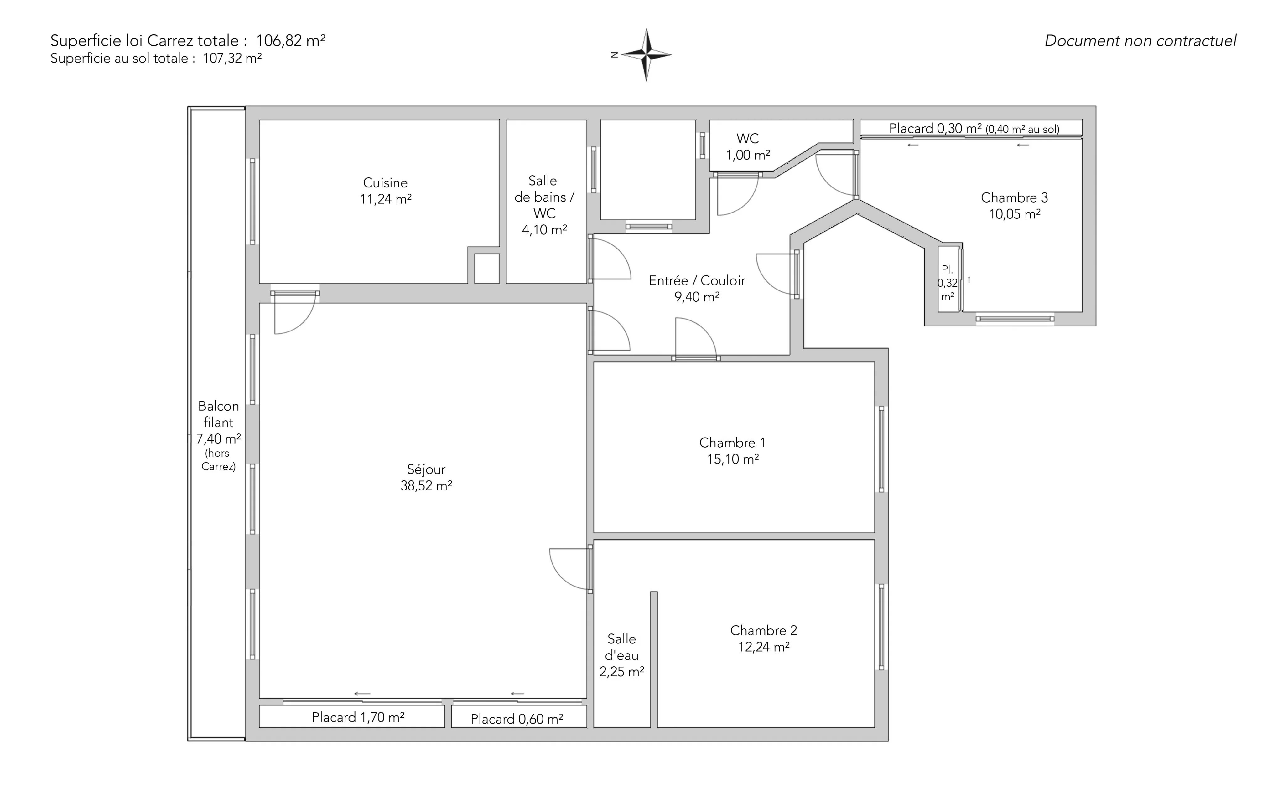
Idéalement situé dans le quartier recherché de Villiers, appartement de 106.82m² Carrez et 107.32m² au sol au cinquième et dernier étage par ascenseur, d’un bel immeuble en pierre de taille avec balcon de 7.40m².
Le plan sans perte de place comprend une entrée qui dessert un séjour avec trois fenêtres donnant sur un large balcon aux vues dégagées et arborées, une cuisine meublée et équipée, trois chambres dont une suite parentale, une salle de bains avec toilette, et des toilettes indépendantes. Le plan est parfaitement optimisé, sans perte de place avec tout le charme de l'ancien.
Une grande cave et deux chambres de services (5.40m² carrez et 7.50m²au sol pour la première, et 2.30m² carrez et 5.05m² au sol pour la seconde) complètent ce bien.
Sectorisation Condorcet.
- Habitable : 116,98 m² Total : 114,72 m²
- 5 pièces
- 3 chambres
- 1 salle de bains
- 1 salle de douche
- Étage 5/6
- Cheminée
- Exposition Nord, Sud
- Neuf
- Meublé
Ce qui nous séduit
- Vue exceptionnelle
- Balcon/Terrasse
- Adresse très recherchée
- Dernier étage
- Traversant
- Ascenseur
- Cave
- Vue dégagée
On vous en dit plus
Réglementations & éléments financiers
Les informations sur les risques auxquels ce bien est exposé sont disponibles sur le site Géorisques : www.georisques.gouv.fr
| Diagnostics |
|---|
Consommation énergie finale : C - 119 kWh/m²/an.
Montant estimé des dépenses annuelles d’énergie pour un usage standard : entre 2 230,00 € et 3 070,00 € /an (abonnement compris).
Prix moyen des énergies indexées au 01/01/2023.
| Éléments financiers |
|---|
Taxe foncière : 1 500,00 € /an
Détails de l’intérieur & de l’extérieur
| Pièce | Surface | Détail |
|---|---|---|
| 1x Cave | 7 m² | |
| 1x Entrée | 9.4 m² |
Étage : 5ème Exposition : Ouest Revêtement : Parquet |
| 1x Chambre | 15.1 m² |
Étage : 5ème Exposition : Sud Revêtement : Parquet |
| 1x Séjour | 38.52 m² |
Étage : 5ème Exposition : Nord Revêtement : Parquet Plafond : 2.7m |
| 1x Placard | 0.6 m² |
Étage : 5ème Revêtement : Parquet |
| 1x Placard | 1.7 m² |
Étage : 5ème Revêtement : Parquet |
| 1x Chambre | 12.24 m² |
Étage : 5ème Exposition : Sud Revêtement : Parquet |
| 1x Salle de douche | 2.25 m² |
Étage : 5ème Exposition : Nord Revêtement : Carrelage |
| 1x Cuisine | 11.24 m² |
Étage : 5ème Exposition : Nord Revêtement : Carrelage |
| 1x Salle de bains / toilettes | 4.1 m² |
Étage : 5ème Exposition : Sud Revêtement : Carrelage |
| 1x Toilettes | 1 m² |
Étage : 5ème Exposition : Nord Revêtement : Carrelage |
| 1x Chambre | 10.05 m² |
Étage : 5ème Exposition : Ouest Revêtement : Parquet |
| 1x Placard | 0.3 m² |
Étage : 5ème Revêtement : Parquet |
| 1x Placard | 0.32 m² |
Étage : 5ème Revêtement : Parquet |
| 1x Balcon | 7.4 m² |
Étage : 5ème Exposition : Nord Revêtement : Béton |
| 1x Chambre de service | 2.3 m² |
Étage : 6ème Exposition : Nord Revêtement : Carreau ciment |
| 1x Chambre de service | 5.4 m² |
Étage : 6ème Exposition : Nord Revêtement : Carreau ciment |
Prestations
Bâtiment & Copropriété
| Bâtiment |
|---|
-
Construit en : 1900
-
Type : Pierre de taille
-
Nombre d'étages : 6
-
Niveau de qualité : Standing
| Copropriété |
|---|
52 lots d'habitation
Montant moyen annuel de la quote part de charges courantes : 3 240 €
Procédure en cours : Non
Rencontrez votre agence
Simulateur de financement
Calculez le montant des mensualités de votre prêt immobilier correspondant à l'emprunt que vous souhaitez effectuer.
Prix du bien HAI
1 660 000 €
€
par mois
Vous devez vendre pour acheter ?
Nos consultants immobiliers se tiennent à votre disposition pour réaliser une estimation de la valeur de votre bien. Toutes nos estimations sont offertes.
Je fais estimer mon bienUn lieu de vie à votre image
Junot vous fait visiter les quartiers dans lesquels nos agences vous accueillent, et vous présente les spécificités et bonnes adresses.
Parcourir les quartiers










