Faisons un tour d'horizon
Référence de l’annonce : 3411STGBAS
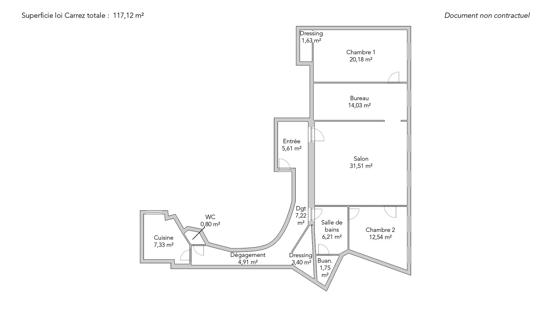
Situé au quatrième étage par ascenseur d’un charmant immeuble ancien, cet appartement de 117,12 m² loi Carrez offre de beaux volumes et un cachet préservé.
Il comprend une entrée desservant un spacieux séjour agrémenté d’une cheminée, une cuisine indépendante, un bureau pouvant être aménagé en chambre, une chambre avec placard, ainsi qu'une suite parentale avec salle de bains attenante, buanderie et dressing, des toilettes séparées et de nombreux rangements accessoirisent cet agencement fonctionnel.
Vous serez séduit par sa belle luminosité et le charme de l’ancien soigneusement conservé.
Une cave complète ce bien.
- Habitable : 117,12 m²
- 5 pièces
- 3 chambres
- 1 salle de bains
- Étage 4/6
- Cheminée
- Exposition Est, Ouest
- Bon état
Ce qui nous séduit
- Traversant
- Ascenseur
- Cave
- Vue dégagée
On vous en dit plus
Réglementations & éléments financiers
Les informations sur les risques auxquels ce bien est exposé sont disponibles sur le site Géorisques : www.georisques.gouv.fr
| Diagnostics |
|---|
Consommation énergie finale : C - 135.4 kWh/m²/an.
Montant estimé des dépenses annuelles d’énergie pour un usage standard : entre 1 520,00 € et 2 070,00 € /an (abonnement compris).
Prix moyen des énergies indexées au 01/01/2021.
| Éléments financiers |
|---|
Taxe foncière : 1 465,00 € /an
Détails de l’intérieur & de l’extérieur
| Pièce | Surface | Détail |
|---|---|---|
| 1x Cave | Étage : Sous-sol | |
| 1x Entrée | 5.61 m² |
Étage : 4ème Revêtement : Fibre végétale |
| 1x Salon | 31.51 m² |
Étage : 4ème Revêtement : Parquet |
| 1x Chambre | 14.03 m² |
Étage : 4ème Revêtement : Parquet |
| 1x Chambre | 20.18 m² |
Étage : 4ème Revêtement : Parquet |
| 1x Placard | 1.63 m² |
Étage : 4ème Revêtement : Lino |
| 1x Chambre | 12.54 m² |
Étage : 4ème Revêtement : Fibre végétale |
| 1x Salle de bains | 6.21 m² |
Étage : 4ème Revêtement : Carrelage |
| 1x Buanderie | 1.75 m² |
Étage : 4ème Revêtement : Carrelage |
| 1x Dégagement | 7.22 m² |
Étage : 4ème Revêtement : Moquette |
| 1x Dégagement | 4.91 m² | Étage : 4ème |
| 1x Dressing | 3.4 m² | Étage : 4ème |
| 1x Cuisine | 7.33 m² |
Étage : 4ème Revêtement : Carrelage |
| 1x Toilettes | 0.8 m² |
Étage : 4ème Revêtement : Carrelage |
Prestations
Bâtiment & Copropriété
| Bâtiment |
|---|
-
Construit en : 1900
-
Nombre d'étages : 6
| Copropriété |
|---|
Montant moyen annuel de la quote part de charges courantes : 4 788 €
Procédure en cours : Non
Rencontrez votre agence
Simulateur de financement
Calculez le montant des mensualités de votre prêt immobilier correspondant à l'emprunt que vous souhaitez effectuer.
Prix du bien HAI
1 290 000 €
€
par mois
Vous devez vendre pour acheter ?
Nos consultants immobiliers se tiennent à votre disposition pour réaliser une estimation de la valeur de votre bien. Toutes nos estimations sont offertes.
Je fais estimer mon bienUn lieu de vie à votre image
Junot vous fait visiter les quartiers dans lesquels nos agences vous accueillent, et vous présente les spécificités et bonnes adresses.
Parcourir les quartiers










