Faisons un tour d'horizon
Référence de l’annonce : 2010CHMSAR07
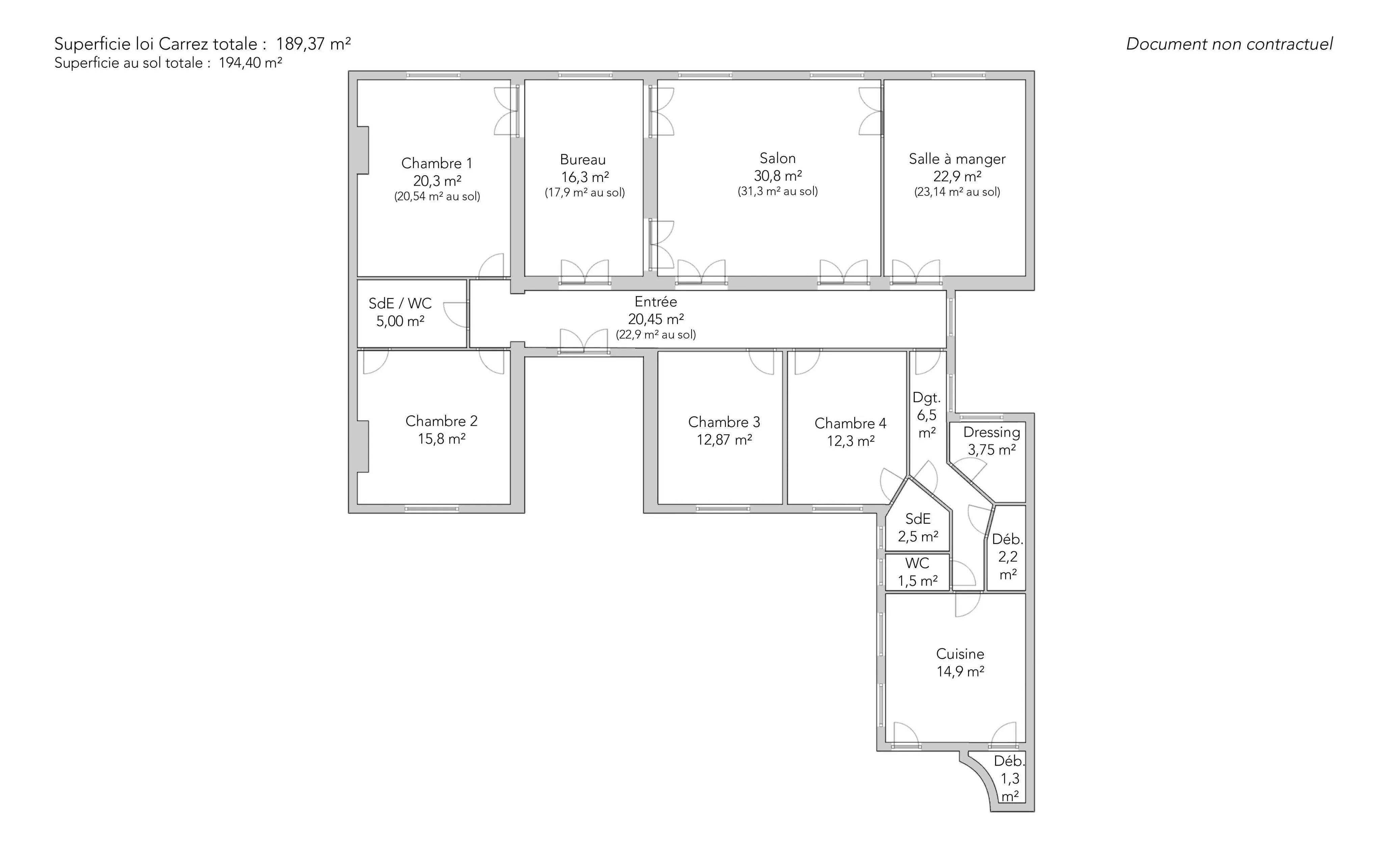
Au premier étage par ascenseur d’un superbe immeuble en pierre de taille de grand standing, cet appartement familial et de réception de 189,37m² loi Carrez séduit par ses beaux volumes, son élégance et son cachet.
L’entrée ouvre sur une magnifique double réception, lumineuse et généreusement proportionnée, offrant un cadre idéal pour la vie de famille comme pour la réception. La distribution permet de distinguer avec équilibre les espaces de vie de l’espace nuit, qui comprend cinq chambres et offre de nombreuses possibilités d’aménagement, notamment pour un bureau ou des chambres d’invités. L’appartement dispose également de deux salles de douche dont une avec des toilettes et des toilettes indépendantes, assurant un confort quotidien appréciable.
Une cave complète cette offre. Une chambre de service est proposée en supplément au prix de 100.000euros, véritable espace annexe particulièrement recherché.
Par sa superficie rare, la qualité de son plan et le standing de son immeuble, cet appartement constitue une opportunité de choix pour une clientèle à la recherche d’un bien familial de caractère.
- Habitable : 189,37 m² Total : 194,40 m²
- 7 pièces
- 5 chambres
- 2 salles de douche
- Étage 1/6
- Cheminée
- Exposition Est
- À rénover
Ce qui nous séduit
- Adresse très recherchée
- Gardien
- Calme
- Traversant
- Ascenseur
- Cave
On vous en dit plus
Réglementations & éléments financiers
Les informations sur les risques auxquels ce bien est exposé sont disponibles sur le site Géorisques : www.georisques.gouv.fr
| Diagnostics |
|---|
Consommation énergie finale : a - 216 kWh/m²/an.
Montant estimé des dépenses annuelles d’énergie pour un usage standard : entre 3 900,00 € et 5 310,00 € /an (abonnement compris).
Prix moyen des énergies indexées au 01/01/2023.
| Éléments financiers |
|---|
Détails de l’intérieur & de l’extérieur
| Pièce | Surface | Détail |
|---|---|---|
| 1x Cave | Étage : Sous-sol | |
| 1x Entrée | 20.45 m² |
Étage : 1er Revêtement : Parquet |
| 1x Dégagement | 6.5 m² |
Étage : 1er Revêtement : Parquet |
| 1x Séjour | 30.8 m² |
Étage : 1er Exposition : Est Revêtement : Parquet Plafond : 3m |
| 1x Salle à manger | 22.9 m² |
Étage : 1er Revêtement : Parquet |
| 1x Cuisine | 14.9 m² |
Étage : 1er Revêtement : Terre cuite |
| 1x Chambre | 16.3 m² | Étage : 1er |
| 1x Chambre | 20.3 m² | Étage : 1er |
| 1x Chambre | 15.8 m² | Étage : 1er |
| 1x Chambre | 12.87 m² | Étage : 1er |
| 1x Chambre | 12.3 m² | Étage : 1er |
| 1x Salle de douche / toilettes | 5 m² | Étage : 1er |
| 1x Salle de douche | 2.5 m² | Étage : 1er |
| 1x Toilettes | 1.5 m² | Étage : 1er |
| 1x Dressing | 3.75 m² | Étage : 1er |
| 1x Débarras | 2.2 m² | Étage : 1er |
| 1x Débarras | 1.3 m² | Étage : 1er |
| 1x Chambre de service | Étage : 6ème |
Prestations
Bâtiment & Copropriété
| Bâtiment |
|---|
-
Construit en : 1878
-
Type : Pierre de taille
-
Nombre d'étages : 6
-
Niveau de qualité : Standing
| Copropriété |
|---|
51 lots d'habitation
Montant moyen annuel de la quote part de charges courantes : 5 760 €
Procédure en cours : Non
Rencontrez votre agence
Simulateur de financement
Calculez le montant des mensualités de votre prêt immobilier correspondant à l'emprunt que vous souhaitez effectuer.
Prix du bien HAI
3 100 000 €
€
par mois
Vous devez vendre pour acheter ?
Nos consultants immobiliers se tiennent à votre disposition pour réaliser une estimation de la valeur de votre bien. Toutes nos estimations sont offertes.
Je fais estimer mon bienUn lieu de vie à votre image
Junot vous fait visiter les quartiers dans lesquels nos agences vous accueillent, et vous présente les spécificités et bonnes adresses.
Parcourir les quartiers










