Faisons un tour d'horizon
Référence de l’annonce : 3012MONRAS
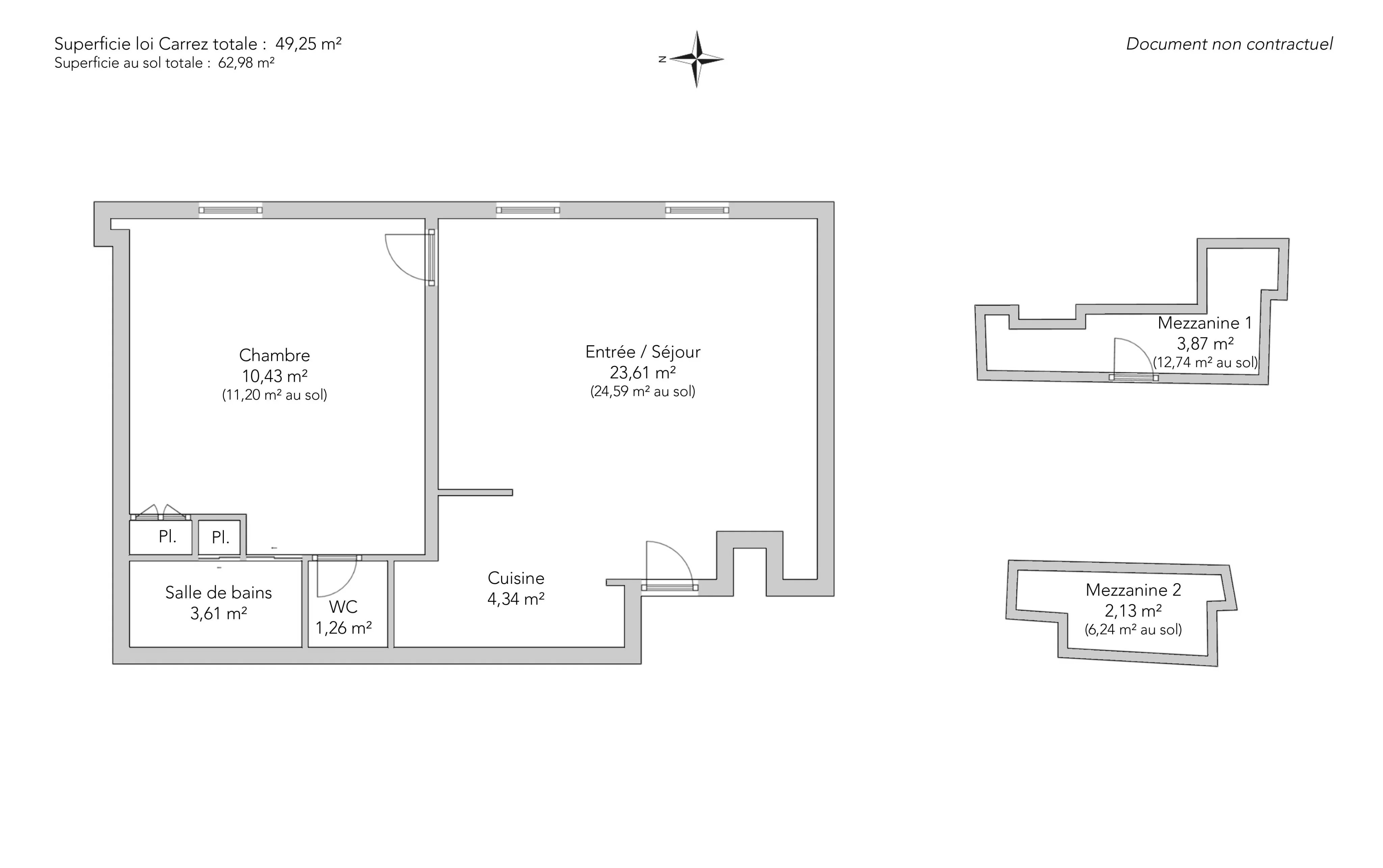
En plein cœur des Batignolles, ce bel appartement de 49,25 m² loi Carrez et 63,98 m² au sol se situe au sixième et dernier étage avec ascenseur d’un immeuble bien entretenu.
Baigné de lumière et bénéficiant de vues dégagées, il offre des volumes atypiques et un agencement optimisé.
Il se compose d’un agréable séjour avec cuisine ouverte donnant accès à une mezzanine, d’une chambre disposant également d’une seconde mezzanine, d’une salle de bains ainsi que de toilettes séparées.
De nombreux rangements viennent compléter l’ensemble.
Une cave complète ce bien.
- Habitable : 49,25 m² Total : 63,98 m²
- 2 pièces
- 1 chambre
- 1 salle de bains
- Étage 6/6
- Exposition Est
- Bon état
Ce qui nous séduit
- Dernier étage
- Ascenseur
- Cave
- Vue dégagée
On vous en dit plus
Réglementations & éléments financiers
Les informations sur les risques auxquels ce bien est exposé sont disponibles sur le site Géorisques : www.georisques.gouv.fr
| Diagnostics |
|---|
Consommation énergie finale : a - 119 kWh/m²/an.
Prix moyen des énergies indexées au 01/01/2023.
| Éléments financiers |
|---|
Taxe foncière : 1 020,00 € /an
Détails de l’intérieur & de l’extérieur
| Pièce | Surface | Détail |
|---|---|---|
| 1x Cave | 3.34 m² | Étage : Sous-sol |
| 1x Séjour | 23.61 m² | Étage : 6ème |
| 1x Cuisine | 4.34 m² | Étage : 6ème |
| 1x Chambre | 10.43 m² | Étage : 6ème |
| 1x Salle de bains | 3.61 m² | Étage : 6ème |
| 1x Toilettes | 1.26 m² | Étage : 6ème |
| 1x Mezzanine | 3.87 m² | Étage : 6ème |
| 1x Mezzanine | 2.13 m² | Étage : 6ème |
Prestations
Bâtiment & Copropriété
| Bâtiment |
|---|
-
Construit en : 1900
-
Nombre d'étages : 6
| Copropriété |
|---|
14 lots d'habitation
Montant moyen annuel de la quote part de charges courantes : 1 672 €
Procédure en cours : Non
Rencontrez votre agence
Simulateur de financement
Calculez le montant des mensualités de votre prêt immobilier correspondant à l'emprunt que vous souhaitez effectuer.
Prix du bien HAI
615 000 €
€
par mois
Vous devez vendre pour acheter ?
Nos consultants immobiliers se tiennent à votre disposition pour réaliser une estimation de la valeur de votre bien. Toutes nos estimations sont offertes.
Je fais estimer mon bienUn lieu de vie à votre image
Junot vous fait visiter les quartiers dans lesquels nos agences vous accueillent, et vous présente les spécificités et bonnes adresses.
Parcourir les quartiers











