Faisons un tour d'horizon
Référence de l’annonce : 3083JNABRO
NOUVEAUTÉ – JUNOT Nantes – La Baule – Pornic, membre exclusif de FORBES Global Properties.
Maison contemporaine de 2006. Edifiée sur une très belle unité foncière paysagée et arborée de 1.140m² entièrement close. Idéalement située en fond d'impasse dans le quartier résidentiel très prisé de la Grande Noëlle à Vertou à proximité du Portereau.
Maison familiale d'une superficie de 155.39m² habitables avec cellier et double garage de 53.52m² .
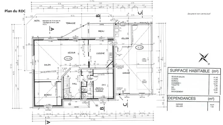
Elle dispose au rez-de-chaussée d'une entrée avec cage d'escalier et vestiaire, de toilettes indépendantes avec lave-mains, une chambre actuellement utilisée en bureau avec penderie aménagée, salle de douche, pièce de vie salon séjour de 41.43m² (avec conduit de cheminée) et en prolongement de la pièce de vie côté salon, un bureau (5ème chambre) permettant également d'agrandir la pièce de vie si besoin, une cuisine semi-ouverte aménagée et équipée, arrière-cuisine lingerie et double garage entièrement carrelé avec son espace salle de sport. Vaste terrasse extérieure dans le prolongement de la pièce de vie avec une pergola bioclimatique vous permettent de profiter pleinement des ces espaces de vie côté jardin
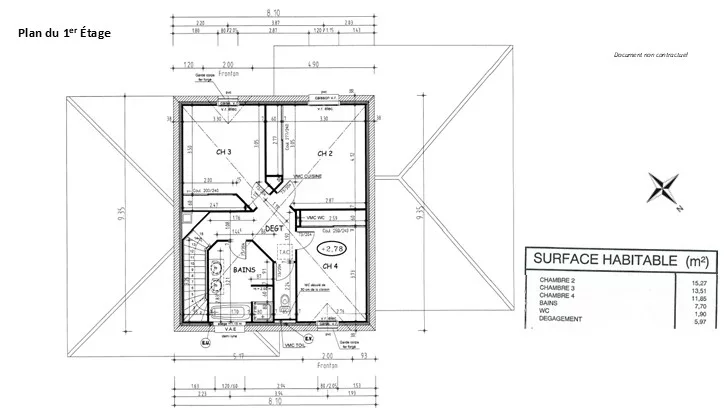
Au premier étage, le dégagement vient desservir trois chambres, toutes disposant de penderies aménagées, une salle de bains avec douche et des toilettes indépendantes.
Piscine Caron 3.5 m x 9 mètres de 2016 avec volet hors sol, PAC d'aérothermie pour le chauffage de la piscine et électrolyse au sel pour le traitement de l'eau.
Abri de jardin, terrain de pétanque aménagé. Allée bitumée avec stationnements extérieurs et portail électrique.
Chaudière gaz à condensation Vaillant de 2006 avec plancher chauffant sur tout le rez-de-chaussée et radiateurs à l'étage. Fibre. Transports à proximité immédiate, lignes 97 & 47 ainsi que le ramassage scolaire
Prix de vente 735.000€ HAI dont 5% TTC d'honoraires d'agence charge acquéreur, soit un prix net vendeur de 700.000€.
Pour toute information, contactez Anne BESSON-BROCHARD — Tél. 06 13 02 55 27
Classe énergie: C
Classe climat: C
Montant estimé des dépenses annuelles d'énergie de ce logement pour un usage standard compris entre 1.550€ et 2.140€. Prix moyens des énergies indexés sur les années 2021, 2022, 2023 (abonnement compris).
Les informations sur les risques auxquels ce bien est exposé sont disponibles sur le site Géorisques : www.georisques.gouv.fr
- Habitable : 155,39 m² Total : 208,91 m²
- 6 pièces
- 4 chambres
- 1 salle de bains
- 1 salle de douche
- Exposition Sud-ouest
- Bon état
- 1 140,00 m² de terrain
Ce qui nous séduit
- Balcon/Terrasse
- Adresse très recherchée
- Piscine
- Garage
- Lumineux
On vous en dit plus
Réglementations & éléments financiers
Les informations sur les risques auxquels ce bien est exposé sont disponibles sur le site Géorisques : www.georisques.gouv.fr
| Diagnostics |
|---|
Consommation énergie finale : a - 94.1 kWh/m²/an.
Montant estimé des dépenses annuelles d’énergie pour un usage standard : entre 1 560,00 € et 2 130,00 € /an (abonnement compris).
Prix moyen des énergies indexées au 01/01/2021.
| Éléments financiers |
|---|
Taxe foncière : 2 940,00 € /an
Détails de l’intérieur & de l’extérieur
| Pièce | Surface | Détail |
|---|---|---|
| 1x Terrain | 1140 m² |
Exposition : Sud-ouest |
| 1x Terrasse | ||
| 1x Pièce de vie | 41.43 m² |
Étage : Rez-de-chaussée Exposition : Sud-ouest Revêtement : Carrelage |
| 1x Cuisine équipée | 14.35 m² |
Étage : Rez-de-chaussée Exposition : Sud-ouest Revêtement : Carrelage |
| 1x Chambre | 12.21 m² |
Étage : Rez-de-chaussée Exposition : Nord-est Revêtement : Stratifié |
| 1x Bureau | 13.32 m² |
Étage : Rez-de-chaussée Exposition : Nord-est |
| 1x Salle de douche | 3.46 m² |
Étage : Rez-de-chaussée Revêtement : Carrelage |
| 1x Toilettes | 1.45 m² |
Étage : Rez-de-chaussée Revêtement : Carrelage |
| 1x Hall d'entrée | 10.93 m² |
Étage : Rez-de-chaussée Revêtement : Carrelage |
| 1x Dégagement | 2.04 m² |
Étage : Rez-de-chaussée Revêtement : Carrelage |
| 1x Garage | 45.94 m² |
Étage : Rez-de-chaussée Exposition : Nord-ouest Revêtement : Carrelage |
| 1x Cellier | 7.58 m² | Étage : Rez-de-chaussée |
| 1x Chambre | 15.27 m² | Étage : 1er |
| 1x Chambre | 13.51 m² | Étage : 1er |
| 1x Chambre | 11.85 m² | Étage : 1er |
| 1x Salle de bains | 7.7 m² |
Étage : 1er Exposition : Nord-est Revêtement : Carrelage |
| 1x Toilettes | 1.9 m² | Étage : 1er |
| 1x Dégagement | 5.97 m² | Étage : 1er |
Prestations
Bâtiment
| Bâtiment |
|---|
-
Construit en : 2006
-
Type : Charpente en bois, Parpaing
-
Nombre d'étages : 1
Rencontrez votre agence
Simulateur de financement
Calculez le montant des mensualités de votre prêt immobilier correspondant à l'emprunt que vous souhaitez effectuer.
Prix du bien HAI
735 000 €
€
par mois
Vous devez vendre pour acheter ?
Nos consultants immobiliers se tiennent à votre disposition pour réaliser une estimation de la valeur de votre bien. Toutes nos estimations sont offertes.
Je fais estimer mon bienUn lieu de vie à votre image
Junot vous fait visiter les quartiers dans lesquels nos agences vous accueillent, et vous présente les spécificités et bonnes adresses.
Parcourir les quartiers














