Faisons un tour d'horizon
Référence de l’annonce : 3496BTLOUV
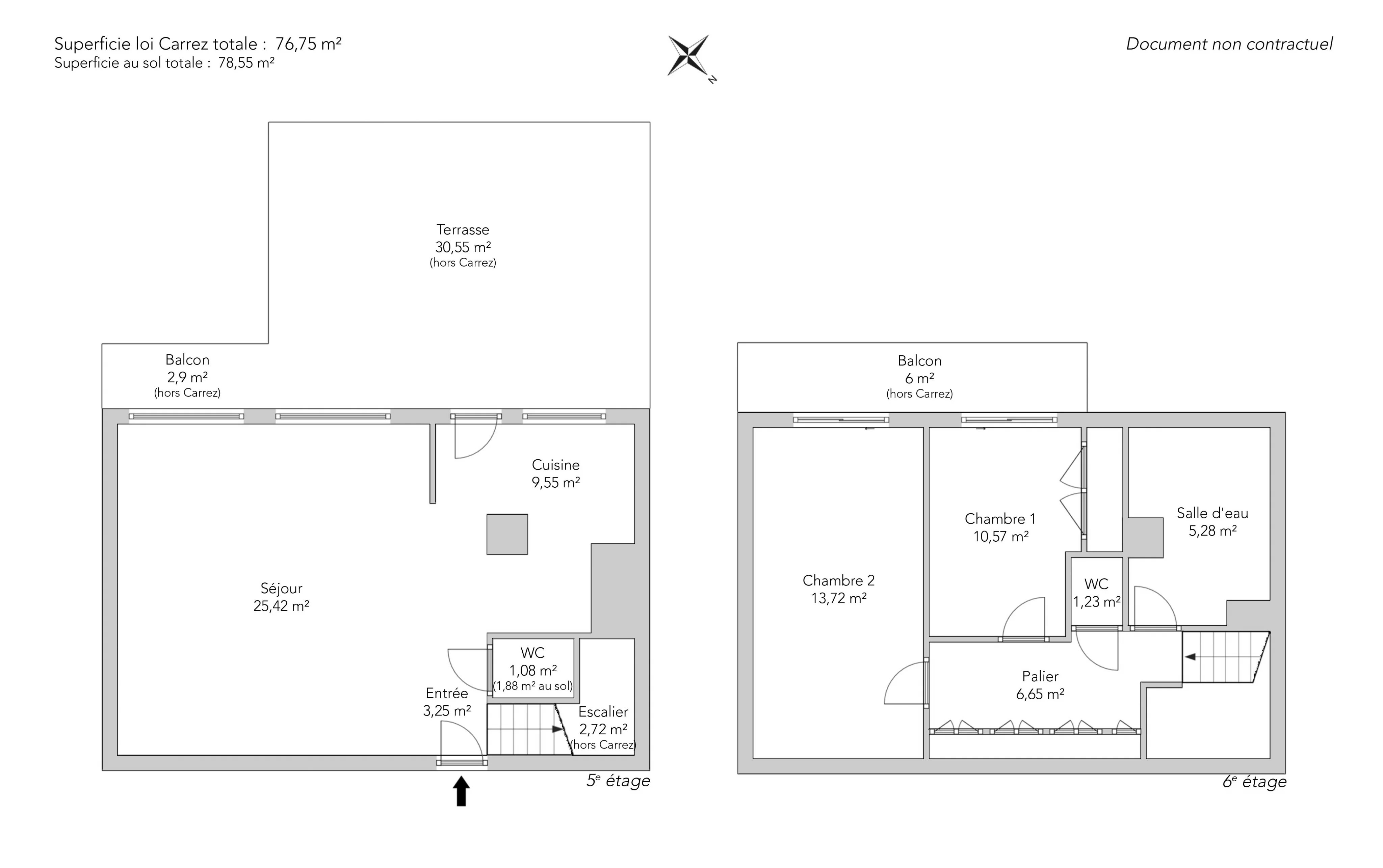
Rue Desaix, aux derniers étages par ascenseur d'un immeuble des années 70 bien entretenu, un duplex avec terrasse, balcons et vue dégagée.
Au cinquième étage, l'entrée dessert directement le séjour et la cuisine en partie ouverte. Une terrasse de 30m² de plain-pied, à l'abri des regards, orientée sud-est avec des vues plutôt dégagées et à l'abri des regards est accessible par ces deux pièces. Le séjour dispose aussi d'un balcon.
Au sixième et dernier étage accessible par un escalier intérieur, le pallier ouvre sur une salle de douche, des toilettes séparées et deux chambres. Elles bénéficient aussi d'un balcon large et de la climatisation.
Nombreux rangements. L'ensemble est en parfait état (rénovation 2017), au calme et très ensoleillé.
Deux caves. Un emplacement de parking possible en option (35000 €).
Local vélos/poussettes.
EXCLUSIVITÉ.
- Habitable : 76,75 m² Total : 78,55 m²
- 4 pièces
- 2 chambres
- 1 salle de douche
- Étage 5/6
- Exposition Sud-est
- Excellent état
Ce qui nous séduit
- Balcon/Terrasse
- Dernier étage
- Gardien
- Lumineux
- Ascenseur
- Cave
- Vue dégagée
On vous en dit plus
Réglementations & éléments financiers
Les informations sur les risques auxquels ce bien est exposé sont disponibles sur le site Géorisques : www.georisques.gouv.fr
| Diagnostics |
|---|
Consommation énergie finale : a - 243 kWh/m²/an.
Montant estimé des dépenses annuelles d’énergie pour un usage standard : entre 1 636,00 € et 2 214,00 € /an (abonnement compris).
Prix moyen des énergies indexées au 01/01/2023.
| Éléments financiers |
|---|
Taxe foncière : 2 155,00 € /an
Détails de l’intérieur & de l’extérieur
| Pièce | Surface | Détail |
|---|---|---|
| 2x Cave | Étage : Sous-sol | |
| 1x Escalier | 2.72 m² | Étage : Entresol |
| 1x Entrée | 3.25 m² | Étage : 5ème |
| 1x Séjour | 25.42 m² | Étage : 5ème |
| 1x Cuisine | 9.55 m² | Étage : 5ème |
| 1x Toilettes | 1.08 m² | Étage : 5ème |
| 1x Terrasse | 30.55 m² | Étage : 5ème |
| 1x Balcon | 2.9 m² | Étage : 5ème |
| 1x Palier | 6.65 m² | Étage : 6ème |
| 1x Salle de douche | 5.28 m² | Étage : 6ème |
| 1x Toilettes | 1.23 m² | Étage : 6ème |
| 1x Chambre | 10.57 m² | Étage : 6ème |
| 1x Chambre | 13.72 m² | Étage : 6ème |
| 1x Balcon | 6 m² | Étage : 6ème |
Prestations
Bâtiment & Copropriété
| Bâtiment |
|---|
-
Construit en : 1977
-
Type : Béton
-
Nombre d'étages : 6
-
Niveau de qualité : Luxe
| Copropriété |
|---|
112 lots d'habitation
Montant moyen annuel de la quote part de charges courantes : 5 300 €
Procédure en cours : Non
Rencontrez votre agence
Simulateur de financement
Calculez le montant des mensualités de votre prêt immobilier correspondant à l'emprunt que vous souhaitez effectuer.
Prix du bien HAI
1 490 000 €
€
par mois
Vous devez vendre pour acheter ?
Nos consultants immobiliers se tiennent à votre disposition pour réaliser une estimation de la valeur de votre bien. Toutes nos estimations sont offertes.
Je fais estimer mon bienUn lieu de vie à votre image
Junot vous fait visiter les quartiers dans lesquels nos agences vous accueillent, et vous présente les spécificités et bonnes adresses.
Parcourir les quartiers













