Faisons un tour d'horizon
Référence de l’annonce : 5827JUNVAGBAI
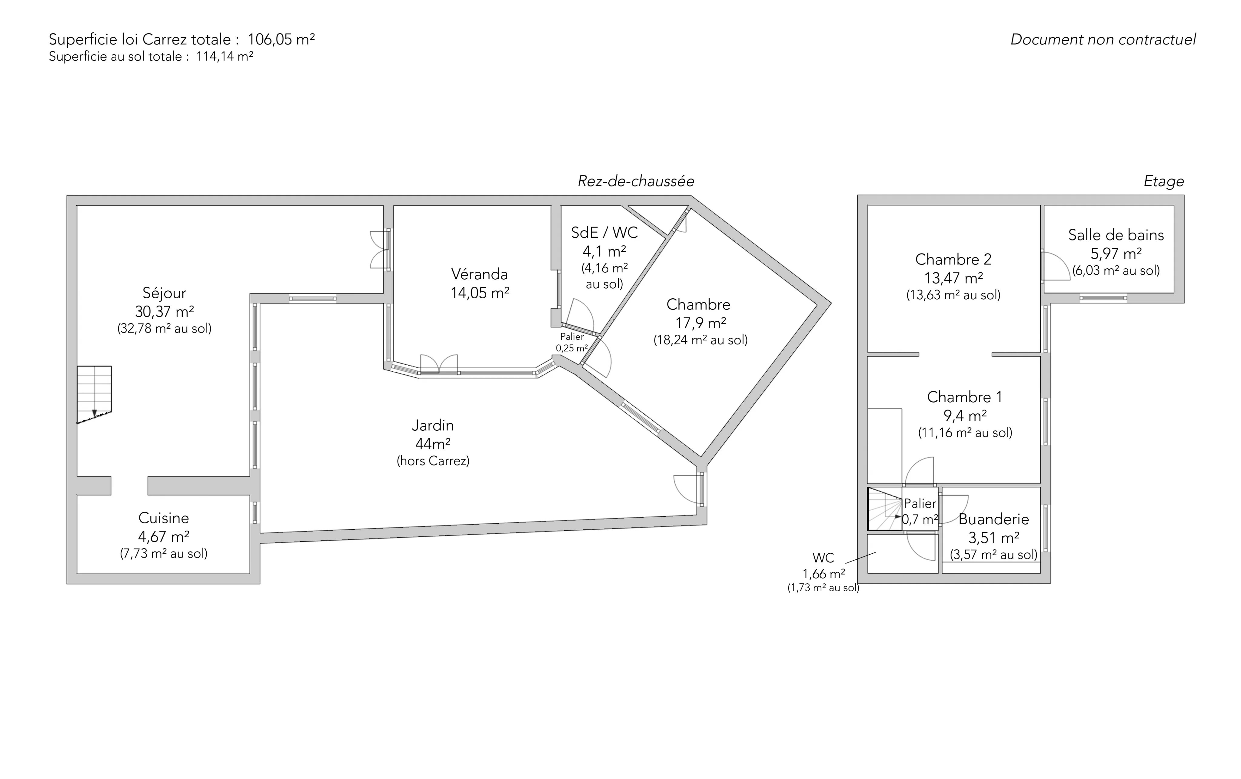
A l'abri des regards au sein d'une jolie cour arborée, charmante maison à l'esprit campagne de 114,14m² (106,05m² loi Carrez) bordée d'un jardin privatif de 44m² au calme.
Le rez-de-chaussée s'articule autour du jardin avec une belle véranda baignée de lumière, un double séjour ouvert sur l'extérieur, une cuisine avec tomettes anciennes, une chambre indépendante (ou bureau) avec sa salle de douche.
A l'étage, le palier dessert une buanderie, des toilettes séparées, ainsi que l'espace nuit avec deux chambres communicantes, une salle de bains (douche et baignoire).
A l'extérieur le jardin offre un agréable cadre de verdure avec un espace de détente privilégié au calme absolu. Ce lieu de vie rare allie confort et sérénité tout en bénéficiant d’une proximité immédiate des commerces, écoles et transports à quelques pas Lamarck–Caulaincourt.
- Habitable : 106,05 m² Total : 114,14 m²
- 6 pièces
- 3 chambres
- 1 salle de bains
- 1 salle de douche
- Exposition Nord-est, Nord-ouest
- Excellent état
Ce qui nous séduit
- Jardin
- Dernier étage
- Calme
- Vue dégagée
On vous en dit plus
Réglementations & éléments financiers
Les informations sur les risques auxquels ce bien est exposé sont disponibles sur le site Géorisques : www.georisques.gouv.fr
| Diagnostics |
|---|
Consommation énergie finale : E - 308 kWh/m²/an.
Montant estimé des dépenses annuelles d’énergie pour un usage standard : entre 2 880,00 € et 3 970,00 € /an (abonnement compris).
Prix moyen des énergies indexées au 01/01/2023.
| Éléments financiers |
|---|
Taxe foncière : 1 683,00 € /an
Détails de l’intérieur & de l’extérieur
| Pièce | Surface | Détail |
|---|---|---|
| 1x Jardin | ||
| 1x Palier | 0.25 m² |
Étage : Rez-de-chaussée Revêtement : Parquet |
| 1x Cuisine | 4.67 m² |
Étage : Rez-de-chaussée Revêtement : Terre cuite |
| 1x Véranda | 14.05 m² |
Étage : Rez-de-jardin Exposition : Est Revêtement : Carrelage |
| 1x Chambre | 17.9 m² |
Étage : Rez-de-jardin Exposition : Sud-est Revêtement : Parquet |
| 1x Salle de douche / toilettes | 4.1 m² |
Étage : Rez-de-jardin Revêtement : Carrelage |
| 1x Séjour | 30.37 m² |
Étage : Rez-de-jardin Exposition : Nord-est Revêtement : Parquet |
| 1x Palier | 0.7 m² |
Étage : 1er Revêtement : Parquet |
| 1x Buanderie | 3.51 m² |
Étage : 1er Exposition : Nord-est Revêtement : Carrelage |
| 1x Toilettes | 1.66 m² |
Étage : 1er Revêtement : Carrelage |
| 1x Chambre | 9.4 m² |
Étage : 1er Exposition : Nord-est Revêtement : Parquet |
| 1x Chambre | 13.47 m² |
Étage : 1er Exposition : Nord-est Revêtement : Parquet |
| 1x Salle de bains | 5.97 m² |
Étage : 1er Exposition : Est Revêtement : Carrelage |
Prestations
Bâtiment & Copropriété
| Bâtiment |
|---|
-
Construit en : 1900
-
Type : Pierre
-
Nombre d'étages : 1
-
Niveau de qualité : Standing
| Copropriété |
|---|
42 lots d'habitation
Montant moyen annuel de la quote part de charges courantes : 2 851 €
Procédure en cours : Non
Rencontrez votre agence
Simulateur de financement
Calculez le montant des mensualités de votre prêt immobilier correspondant à l'emprunt que vous souhaitez effectuer.
Prix du bien HAI
1 780 000 €
€
par mois
Vous devez vendre pour acheter ?
Nos consultants immobiliers se tiennent à votre disposition pour réaliser une estimation de la valeur de votre bien. Toutes nos estimations sont offertes.
Je fais estimer mon bienUn lieu de vie à votre image
Junot vous fait visiter les quartiers dans lesquels nos agences vous accueillent, et vous présente les spécificités et bonnes adresses.
Parcourir les quartiers












