Faisons un tour d'horizon
Référence de l’annonce : 3478BTLVIL/M
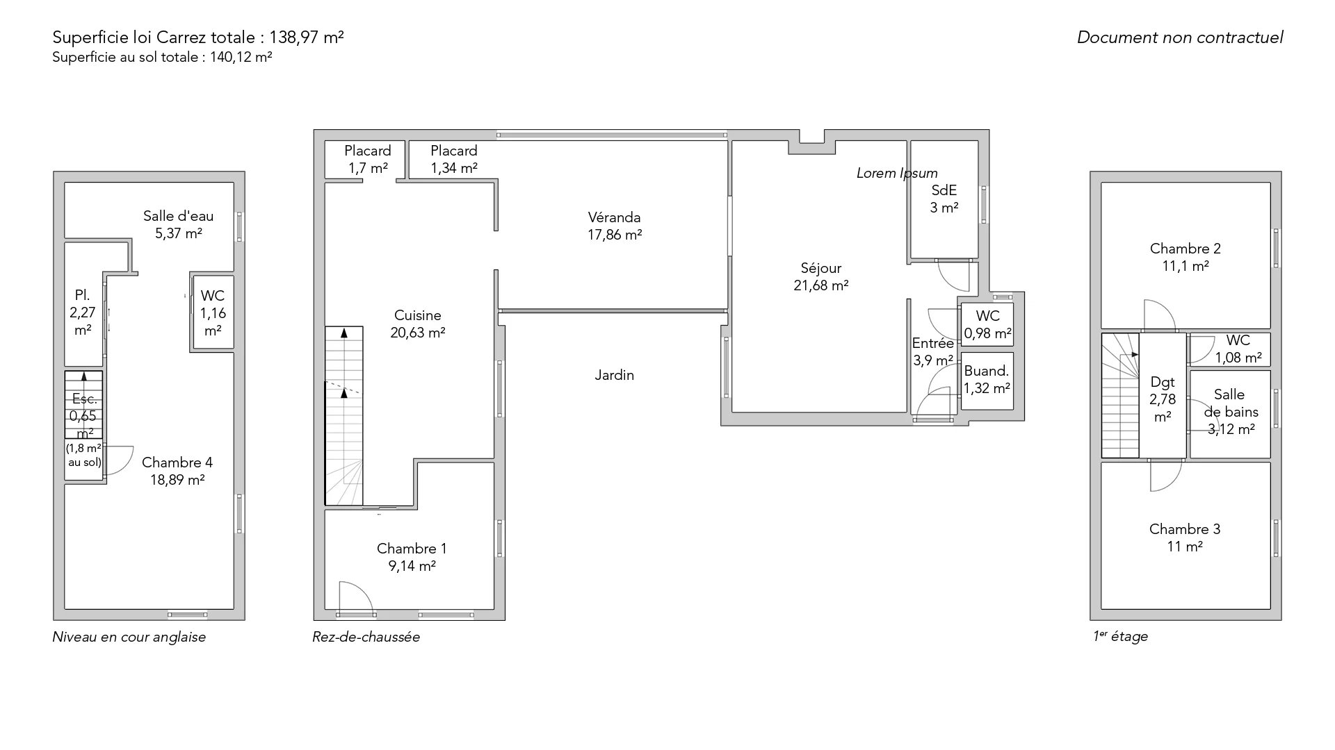
Située dans une rue calme, au sein d'une copropriété bien entretenue, cette charmante maison de 138,97m² loi Carrez et 140,12m² au sol est répartie sur trois niveaux.
La propriété se distingue par son caractère atypique et son plan fonctionnel. Elle offre au rez-de-chaussée réhaussé, deux salons, une cuisine ouverte et équipée, une salle à manger sous une splendide verrière qui relie les deux ailes du bâtiment, une première chambre, une salle de douche et des toilettes séparées.
À l'étage, deux chambres supplémentaires avec une salle de bains et des toilettes séparées.
À l'étage inférieur, une quatrième chambre, une salle de douche et des toilettes.
Les volumes sont agréables et permettent une organisation familiale optimale.
À l’extérieur, un aréable jardin arboré offre un espace de détente privilégié, au calme absolu.
Ce bien original et chaleureux, saura séduire ceux qui recherchent un lieu de vie différent, entre confort et sérénité.
Une cave complète l'ensemble.
EXCLUSIVITÉ.
- Habitable : 138,97 m² Total : 140,12 m²
- 7 pièces
- 4 chambres
- 1 salle de bains
- 2 salles de douche
- Cheminée
- Exposition Sud-ouest
- À rafraîchir
Ce qui nous séduit
- Balcon/Terrasse
- Jardin
- Calme
- Cave
On vous en dit plus
Réglementations & éléments financiers
Les informations sur les risques auxquels ce bien est exposé sont disponibles sur le site Géorisques : www.georisques.gouv.fr
| Diagnostics |
|---|
Consommation énergie finale : a - 164 kWh/m²/an.
Logement à consommation énergétique excessive : classe F
Montant estimé des dépenses annuelles d’énergie pour un usage standard : entre 3 930,00 € et 5 360,00 € /an (abonnement compris).
Prix moyen des énergies indexées au 01/01/2023.
| Éléments financiers |
|---|
Détails de l’intérieur & de l’extérieur
| Pièce | Surface | Détail |
|---|---|---|
| 1x Cave | ||
| 1x Cave | ||
| 1x Terrasse | ||
| 1x Chambre | 18.89 m² | Étage : Sous-sol |
| 1x Salle de douche | 5.37 m² | Étage : Sous-sol |
| 1x Toilettes | 1.16 m² | Étage : Sous-sol |
| 1x Escalier | 0.65 m² | Étage : Sous-sol |
| 1x Placard | 2.27 m² | Étage : Sous-sol |
| 1x Cave | Étage : Sous-sol | |
| 1x Entrée | 3.9 m² | Étage : Rez-de-chaussée |
| 1x Buanderie | 1.32 m² | Étage : Rez-de-chaussée |
| 1x Toilettes | 0.98 m² | Étage : Rez-de-chaussée |
| 1x Salle de douche | 3 m² | Étage : Rez-de-chaussée |
| 1x Salon | 21.68 m² |
Étage : Rez-de-chaussée Exposition : Sud-est |
| 1x Véranda | 17.86 m² |
Étage : Rez-de-chaussée Exposition : Ouest |
| 1x Placard | 1.34 m² | Étage : Rez-de-chaussée |
| 1x Séjour/cuisine | 20.63 m² |
Étage : Rez-de-chaussée Exposition : Nord-ouest Revêtement : Parquet |
| 1x Placard | 1.7 m² | Étage : Rez-de-chaussée |
| 1x Chambre | 9.14 m² | Étage : Rez-de-chaussée |
| 1x Jardin |
Étage : Rez-de-jardin Exposition : Sud-est |
|
| 1x Dégagement | 2.78 m² | Étage : 1er |
| 1x Chambre | 11.1 m² | Étage : 1er |
| 1x Chambre | 11 m² | Étage : 1er |
| 1x Salle de bains | 3.12 m² | Étage : 1er |
| 1x Toilettes | 1.08 m² | Étage : 1er |
Prestations
Bâtiment & Copropriété
| Bâtiment |
|---|
-
Construit en : 1900
-
Nombre d'étages : 1
| Copropriété |
|---|
56 lots d'habitation
Montant moyen annuel de la quote part de charges courantes : 3 600 €
Procédure en cours : Non
Rencontrez votre agence
Simulateur de financement
Calculez le montant des mensualités de votre prêt immobilier correspondant à l'emprunt que vous souhaitez effectuer.
Prix du bien HAI
1 690 000 €
€
par mois
Vous devez vendre pour acheter ?
Nos consultants immobiliers se tiennent à votre disposition pour réaliser une estimation de la valeur de votre bien. Toutes nos estimations sont offertes.
Je fais estimer mon bienUn lieu de vie à votre image
Junot vous fait visiter les quartiers dans lesquels nos agences vous accueillent, et vous présente les spécificités et bonnes adresses.
Parcourir les quartiers













