• Exclusivité

Maison
Colombes - Gabriel Peri / Petite Garenne

1 590 000 €

Honoraires à la charge du vendeur

Barème des prestations Simuler votre financement

Ce bien vous plaît ?

Faisons un tour d'horizon

Référence de l’annonce : 2338NEURIB

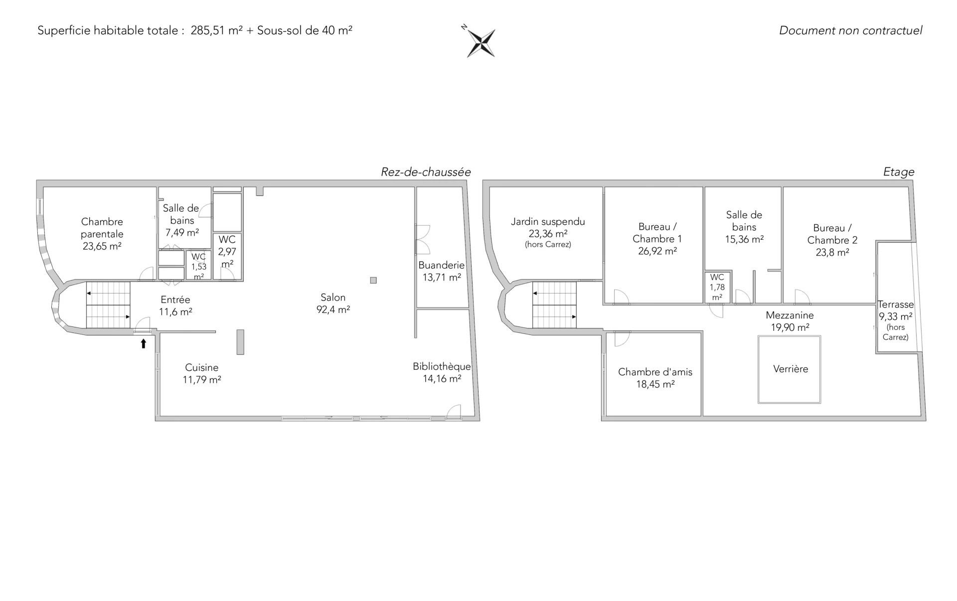
À l'abri des regards, ancienne serre d'un pépiniériste remarquablement réhabilitée par un architecte en 2010 pour devenir une magnifique maison familiale de 285 m² habitable environ, sur une parcelle de 459 m².

Dès l'entrée, la hauteur sous plafond, les larges baies vitrées et la verrière signent l'identité du lieu. Cette demeure, unique sur le secteur, se compose, au rez-de-chaussée, d'une entrée, d'un majestueux espace de réception de 106 m² avec cheminée pivotante, ouvrant sur une terrasse de 50 m² orientée sud-ouest, d'une cuisine ouverte prolongeant l'espace de vie, d'une suite parentale (avec dressing, salle de bains et toilettes séparées), d'un espace buanderie et de toilettes séparées.

Au 1er étage, une coursive sous verrière prolonge la sensation d'ouverture et de volume ; elle dessert 3 belles chambres dont 2 avec terrasse, une salle de bains et des toilettes.

Un entresol aménagé de 40 m² environ et 4 places de stationnement complètent le bien.

Ce bien singulier, aux prestations contemporaines se distingue par son architecture, ses volumes, ses extérieurs et sa discrétion.
Il constitue une opportunité rare sur Colombes.

Sectorisation scolaire Henri Martin, collège Paparemborde et institution Jeanne d'Arc à proximité.
06 70 79 21 27. iribuot-ac@junot.fr

EXCLUSIVITÉ

  • Habitable : 285,18 m² Total : 325,00 m²
  • 6 pièces
  • 4 chambres
  • 2 salles de bains
  • Cheminée
  • Exposition Nord, Sud-est, Sud-ouest
  • Bon état

Ce qui nous séduit

  • Balcon/Terrasse
  • Lumineux
  • Calme
  • Parking

On vous en dit plus

Réglementations & éléments financiers

Les informations sur les risques auxquels ce bien est exposé sont disponibles sur le site Géorisques : www.georisques.gouv.fr


Diagnostics

DPE Graph GES Graph

Consommation énergie finale : a - 57 kWh/m²/an.
Montant estimé des dépenses annuelles d’énergie pour un usage standard : entre 3 090,00 € et 4 230,00 € /an (abonnement compris).
Prix moyen des énergies indexées au 01/01/2023.


Éléments financiers

Taxe foncière : 4 867,00 € /an

Détails de l’intérieur & de l’extérieur

Pièce Surface Détail
1x Terrasse
1x Parking
1x Sous-sol
1x Séjour 92.4 m²
Revêtement : Parquet
1x Entrée 11.6 m²
Revêtement : Parquet
1x Cuisine américaine 11.8 m²
1x Bibliothèque 14.1 m²
Revêtement : Parquet
1x Chambre 23.6 m²
Revêtement : Parquet
1x Salle de bains 7.5 m²
1x Toilettes 1.5 m²
1x Toilettes 2.9 m²
1x Buanderie 13.7 m²
1x Chambre 26.9 m²
1x Chambre 23.8 m²
1x Mezzanine 19.9 m²
1x Chambre 18.4 m²
1x Salle de bains 15.3 m²
1x Toilettes 1.78 m²

Prestations

☑ Internet
☑ Cheminée
☑ Air conditionné
☑ Alarme
☑ Double vitrage
☑ Interphone
☑ Arrosage
☑ Vidéophone
☑ Éclairage extérieur
☑ Fibre optique

Bâtiment

Bâtiment
  • Niveau de qualité : Normal

Rencontrez votre consultant

Simulateur de financement

Calculez le montant des mensualités de votre prêt immobilier correspondant à l'emprunt que vous souhaitez effectuer.

Prix du bien HAI

1 590 000 €

Ce calcul prend en compte des droits d'enregistrement de 7 %.

par mois

Ceci est une simulation, seule votre banque peut vous donner une valeur précise. Nos consultants sont à votre disposition pour vous accompagner.
Être recontacté

Ces biens pourraient aussi vous intéresser

    Vous devez vendre pour acheter ?

    Nos consultants immobiliers se tiennent à votre disposition pour réaliser une estimation de la valeur de votre bien. Toutes nos estimations sont offertes.

    Je fais estimer mon bien

    Un lieu de vie à votre image

    Junot vous fait visiter les quartiers dans lesquels nos agences vous accueillent, et vous présente les spécificités et bonnes adresses.

    Parcourir les quartiers
Je souhaite visiter
Souhaitez-vous vraiment quitter la page ?
Souhaitez-vous vraiment quitter la page ?
Souhaitez-vous vraiment quitter la page ?
Souhaitez-vous vraiment quitter la page ?
Souhaitez-vous vraiment quitter la page ?
Souhaitez-vous vraiment quitter la page ?
Souhaitez-vous vraiment quitter la page ?
Souhaitez-vous vraiment quitter la page ?
Souhaitez-vous vraiment quitter la page ?
Souhaitez-vous vraiment quitter la page ?
Souhaitez-vous vraiment quitter la page ?