Faisons un tour d'horizon
Référence de l’annonce : 2998MONRAS
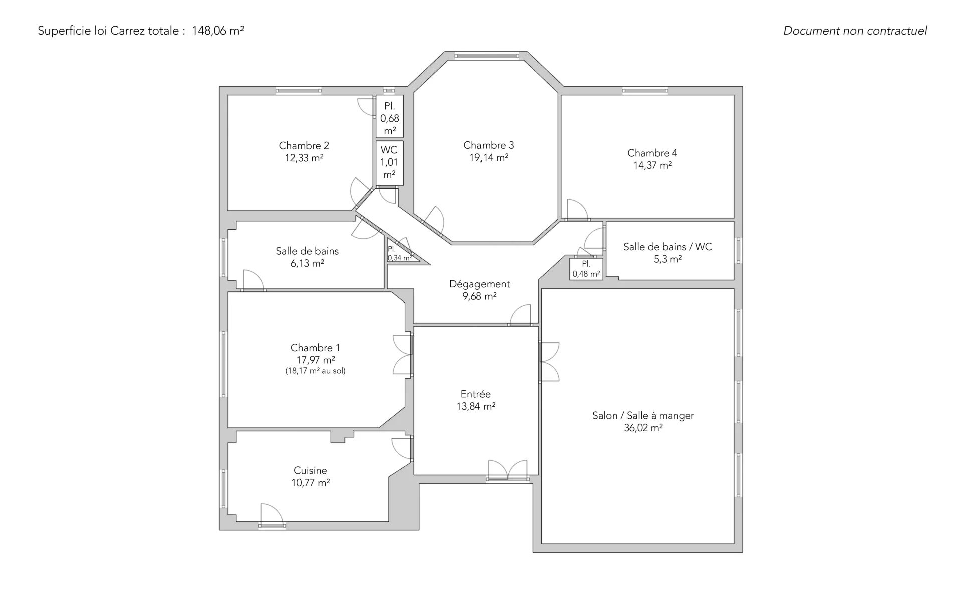
En plein cœur d’un quartier très recherché, à deux pas de la rue de Lévis et à proximité immédiate d’établissements scolaires publics et privés de renom, cet appartement de 148,06 m² loi Carrez se situe au premier étage avec ascenseur d’un immeuble année 30 de bon standing.
Au calme et bénéficiant d’un plan en étoile, il offre une distribution optimisée et de beaux volumes.
Il se compose d’une entrée desservant un élégant double séjour avec salle à manger, une cuisine indépendante, ainsi que quatre chambres, dont une suite parentale avec salle de bains (baignoire et douche) et dressings.
Un espace enfants bien distinct comprend trois belles chambres, une salle d’eau avec toilettes, ainsi que des toilettes séparées. De nombreux rangements viennent compléter l’ensemble.
Une cave complète ce bien. Gardien dans l’immeuble et local vélos à disposition.
Sectorisation scolaire Carnot.
- Habitable : 148,06 m² Total : 148,26 m²
- 6 pièces
- 4 chambres
- 1 salle de bains
- 1 salle de douche
- Étage 1/8
- Cheminée
- Exposition Sud-ouest
- Bon état
Ce qui nous séduit
- Gardien
- Calme
- Traversant
- Ascenseur
- Cave
On vous en dit plus
Réglementations & éléments financiers
Les informations sur les risques auxquels ce bien est exposé sont disponibles sur le site Géorisques : www.georisques.gouv.fr
| Diagnostics |
|---|
Consommation énergie finale : a - 225 kWh/m²/an.
Montant estimé des dépenses annuelles d’énergie pour un usage standard : entre 2 620,00 € et 3 560,00 € /an (abonnement compris).
Prix moyen des énergies indexées au 01/01/2021.
| Éléments financiers |
|---|
Taxe foncière : 3 357,00 € /an
Détails de l’intérieur & de l’extérieur
| Pièce | Surface | Détail |
|---|---|---|
| 1x Cave | Étage : Sous-sol | |
| 1x Entrée | 13.84 m² | Étage : 1er |
| 1x Double réception | 36.02 m² |
Étage : 1er Exposition : Sud-ouest |
| 1x Cuisine | 10.77 m² | Étage : 1er |
| 1x Chambre | 17.97 m² | Étage : 1er |
| 1x Salle de douche | 6.13 m² | Étage : 1er |
| 1x Chambre | 12.33 m² |
Étage : 1er Exposition : Sud-est |
| 1x Chambre | 19.14 m² |
Étage : 1er Exposition : Sud-est |
| 1x Chambre | 14.37 m² |
Étage : 1er Exposition : Sud-est |
| 1x Salle de bains / toilettes | 5.3 m² | Étage : 1er |
| 1x Toilettes | 1.01 m² | Étage : 1er |
| 1x Placard | 0.68 m² | Étage : 1er |
| 1x Dégagement | 9.68 m² | Étage : 1er |
| 1x Placard | 0.34 m² | Étage : 1er |
| 1x Placard | 0.48 m² | Étage : 1er |
Prestations
Bâtiment & Copropriété
| Bâtiment |
|---|
-
Construit en : 1930
-
Nombre d'étages : 8
| Copropriété |
|---|
52 lots d'habitation
Montant moyen annuel de la quote part de charges courantes : 8 580 €
Procédure en cours : Non
Rencontrez votre agence
Simulateur de financement
Calculez le montant des mensualités de votre prêt immobilier correspondant à l'emprunt que vous souhaitez effectuer.
Prix du bien HAI
1 645 000 €
€
par mois
Vous devez vendre pour acheter ?
Nos consultants immobiliers se tiennent à votre disposition pour réaliser une estimation de la valeur de votre bien. Toutes nos estimations sont offertes.
Je fais estimer mon bienUn lieu de vie à votre image
Junot vous fait visiter les quartiers dans lesquels nos agences vous accueillent, et vous présente les spécificités et bonnes adresses.
Parcourir les quartiers











