Faisons un tour d'horizon
Référence de l’annonce : 3499GREANN
Au cœur du quartier recherché du Gros Caillou, rue Saint-Dominique, à proximité immédiate des jardins du Champ de Mars, découvrez ce très bel appartement de trois pièces intégralement rénové, calme et lumineux.
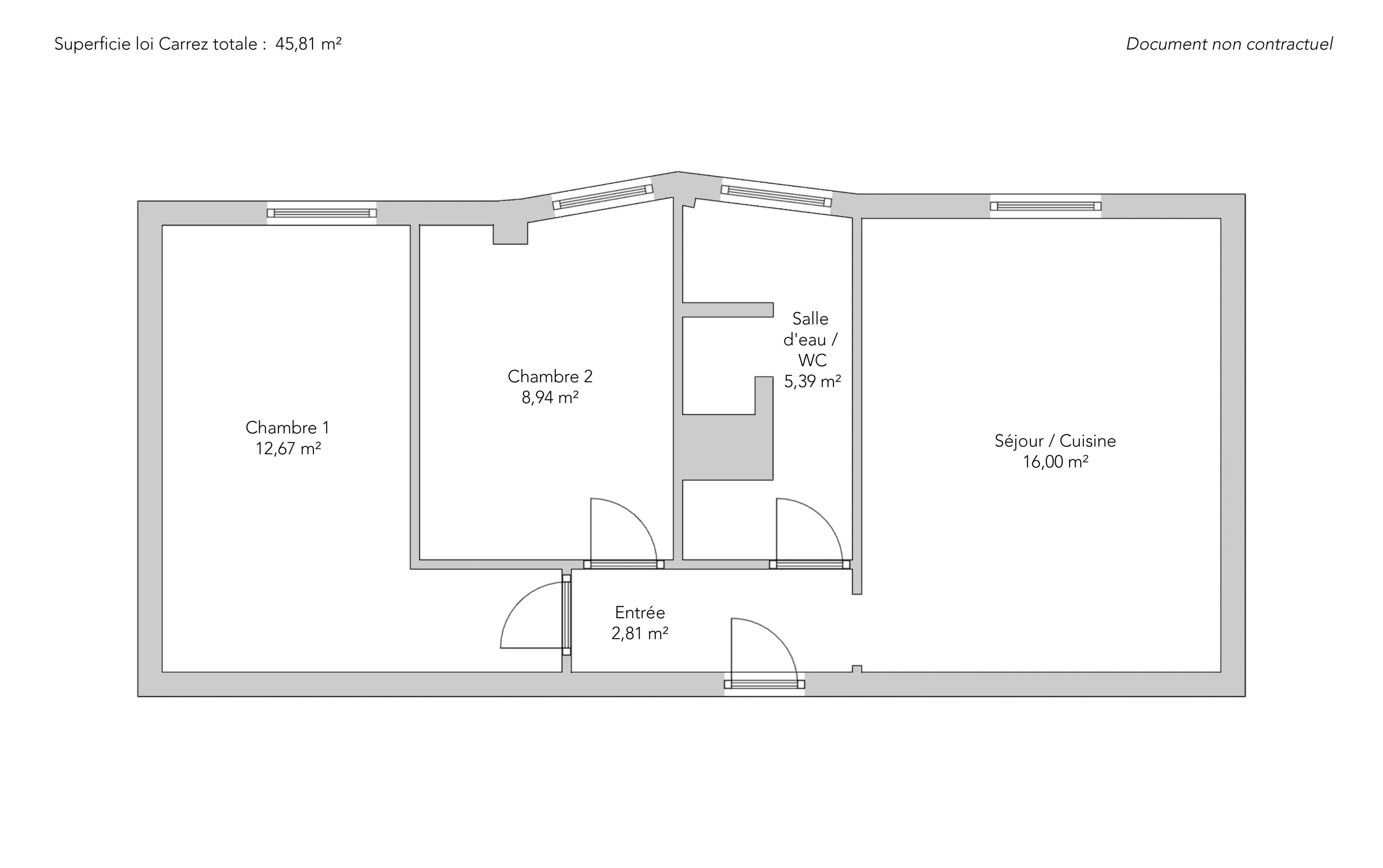
Situé au deuxième étage par ascenseur d’une élégante résidence Art déco édifiée en 1934 avec gardien, cet appartement offre une surface de 45,81m² loi Carrez.
Un très beau séjour cuisine, exposé sud, bénéficie d’un ensoleillement généreux l’après-midi grâce à ses ouvertures et profite d’une vue agréable sur la verdure d’une large cour, au calme absolu.
L’espace nuit comporte une vaste chambre ainsi qu’une deuxième chambre agrémentée d'une salle de douche spacieuse avec toilettes.
Une cave complète ce bien.
- Habitable : 45,81 m²
- 2 pièces
- 2 chambres
- 1 salle de douche
- Étage 2/7
- Cheminée
- Exposition Sud-est
- Excellent état
Ce qui nous séduit
- Adresse très recherchée
- Gardien
- Calme
- Ascenseur
- Cave
On vous en dit plus
Réglementations & éléments financiers
Les informations sur les risques auxquels ce bien est exposé sont disponibles sur le site Géorisques : www.georisques.gouv.fr
| Diagnostics |
|---|
Consommation énergie finale : D - 232 kWh/m²/an.
Montant estimé des dépenses annuelles d’énergie pour un usage standard : entre 840,00 € et 1 190,00 € /an (abonnement compris).
Prix moyen des énergies indexées au 01/01/2023.
| Éléments financiers |
|---|
Détails de l’intérieur & de l’extérieur
| Pièce | Surface | Détail |
|---|---|---|
| 1x Cave | Étage : Sous-sol | |
| 1x Entrée | 2.81 m² | Étage : 2ème |
| 1x Séjour/cuisine | 16 m² | Étage : 2ème |
| 1x Chambre | 12.67 m² | Étage : 2ème |
| 1x Chambre | 8.94 m² | Étage : 2ème |
| 1x Salle de douche / toilettes | 5.39 m² | Étage : 2ème |
Prestations
Bâtiment & Copropriété
| Bâtiment |
|---|
-
Construit en : 1934
-
Type : Brique
-
Nombre d'étages : 7
| Copropriété |
|---|
283 lots d'habitation
Montant moyen annuel de la quote part de charges courantes : 2 280 €
Procédure en cours : Non
Rencontrez votre agence
Simulateur de financement
Calculez le montant des mensualités de votre prêt immobilier correspondant à l'emprunt que vous souhaitez effectuer.
Prix du bien HAI
885 000 €
€
par mois
Vous devez vendre pour acheter ?
Nos consultants immobiliers se tiennent à votre disposition pour réaliser une estimation de la valeur de votre bien. Toutes nos estimations sont offertes.
Je fais estimer mon bienUn lieu de vie à votre image
Junot vous fait visiter les quartiers dans lesquels nos agences vous accueillent, et vous présente les spécificités et bonnes adresses.
Parcourir les quartiers











