Faisons un tour d'horizon
Référence de l’annonce : 3044WAGBOU
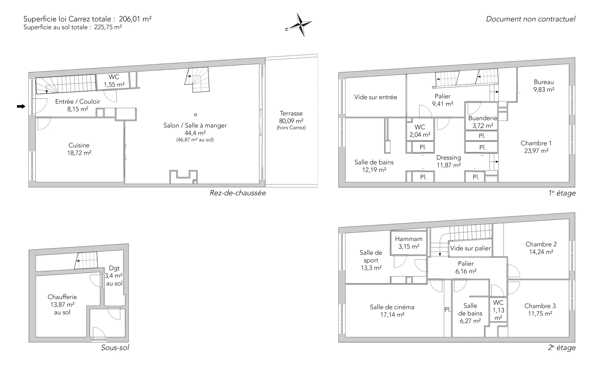
À la pointe de l'Ile-Saint-Germain, aux portes de Paris et 10 minutes du Trocadéro, nous vous proposons une villa extraordinaire de 206,01m² loi Carrez et 225,75m² au sol.
Fait unique, cette maison bénéficie d'un accès privé à la Seine avec un grand ponton permettant d'amarrer son bateau.
Imaginée par architecte en 2015, cette villa offre un séjour aux volumes exceptionnels et baigné de lumière ouvert sur une grande terrasse plein sud, un jardin arboré et son ponton privé. Une cuisine équipée Bulthaup et des toilettes invités complètent ce niveau.
À l'étage supérieur, une sublime suite parentale avec un grand dressing, un bureau, une salle de bain avec douche à l'italienne et baignoire et des toilettes indépendants.
Au dernier étage, deux chambres lumineuses, une salle de bain, des toilettes séparés, une salle de sport avec hammam et une salle de cinéma pour vos soirées en famille. Possibilité de faire 5 chambres.
Une cave, une buanderie et deux places de parking au sous-sol complètent cette offre rare.
Possibilité d'acquérir en sus, un très bel appartement adjacent à la villa. De plain-pied, d'une surface de 47m², il offre des prestations similaires : un grand séjour/cuisine, une chambre, une salle de bain (aux normes PMR), une belle terrasse, plein sud, donnant sur la Seine et une place de parking en sous-sol.
EXCLUSIVITÉ.
- Habitable : 206,01 m² Total : 225,75 m²
- 7 pièces
- 3 chambres
- 2 salles de bains
- Cheminée
- Exposition Sud
- Excellent état
Ce qui nous séduit
- Vue exceptionnelle
- Balcon/Terrasse
- Jardin
- Prestations exceptionnelles
- Dernier étage
- Lumineux
- Calme
- Traversant
- Parking
- Salle de bien être
- Cave
- Vue dégagée
On vous en dit plus
Réglementations & éléments financiers
Les informations sur les risques auxquels ce bien est exposé sont disponibles sur le site Géorisques : www.georisques.gouv.fr
| Diagnostics |
|---|
Consommation énergie finale : a - 75 kWh/m²/an.
Montant estimé des dépenses annuelles d’énergie pour un usage standard : entre 1 610,00 € et 2 210,00 € /an (abonnement compris).
Prix moyen des énergies indexées au 01/01/2023.
| Éléments financiers |
|---|
Détails de l’intérieur & de l’extérieur
| Pièce | Surface | Détail |
|---|---|---|
| 1x Buanderie | 3.72 m² | Étage : Sous-sol |
| 1x Cave | Étage : Sous-sol | |
| 2x Parking | Étage : Sous-sol | |
| 1x Entrée | 8.15 m² | Étage : Rez-de-jardin |
| 1x Séjour | 44.4 m² |
Étage : Rez-de-jardin Exposition : Sud-ouest Plafond : 3.3m |
| 1x Cuisine | 18.72 m² | Étage : Rez-de-jardin |
| 1x Toilettes | 1.55 m² | Étage : Rez-de-jardin |
| 1x Terrasse | 80.09 m² |
Étage : Rez-de-jardin Exposition : Sud-ouest |
| 1x Jardin | Étage : Rez-de-jardin | |
| 1x Palier | 9.41 m² | Étage : 1er |
| 1x Chambre | 23.97 m² | Étage : 1er |
| 1x Dressing | 11.87 m² | Étage : 1er |
| 1x Salle de bains | 12.19 m² | Étage : 1er |
| 1x Toilettes | 2.04 m² | Étage : 1er |
| 1x Palier | 6.16 m² | Étage : 2ème |
| 1x Chambre | 14.24 m² | Étage : 2ème |
| 1x Chambre | 11.75 m² | Étage : 2ème |
| 1x Cinéma | 17.14 m² | Étage : 2ème |
| 1x Salle de sport | 13.3 m² | Étage : 2ème |
| 1x Salle de bains | 6.27 m² | Étage : 2ème |
| 1x Toilettes | 1.13 m² | Étage : 2ème |
Prestations
Bâtiment & Copropriété
| Bâtiment |
|---|
-
Construit en : 2015
-
Nombre d'étages : 3
| Copropriété |
|---|
Procédure en cours : Non
Rencontrez votre agence
Simulateur de financement
Calculez le montant des mensualités de votre prêt immobilier correspondant à l'emprunt que vous souhaitez effectuer.
Prix du bien HAI
2 900 000 €
€
par mois
Vous devez vendre pour acheter ?
Nos consultants immobiliers se tiennent à votre disposition pour réaliser une estimation de la valeur de votre bien. Toutes nos estimations sont offertes.
Je fais estimer mon bienUn lieu de vie à votre image
Junot vous fait visiter les quartiers dans lesquels nos agences vous accueillent, et vous présente les spécificités et bonnes adresses.
Parcourir les quartiers











